アイコート富士見ヶ丘 101号室(1階/1K)の賃貸物件(賃貸アパート)
東京都杉並区にあるアイコート富士見ヶ丘 101号室は浴室乾燥機、シューズボックス、CATV、外国人可・相談、保証人不要などが特徴です。最寄り駅の京王井の頭線富士見ヶ丘駅から徒歩7分です。アイコート富士見ヶ丘 101号室の詳細はハウスコム 千歳烏山店までお気軽にお問い合わせください!
情報更新日:
次回更新予定日:
※次回更新予定日について:お店側では順次空室確認を行っていますが、次回更新予定日までに空室確認が行えない場合には、この物件情報は自動的に削除されます。
アイコート富士見ヶ丘 101号室の賃貸物件部屋概要
家賃 |
7.4万円
初期費用を |
|---|---|
共益費 |
4,000円
入居可能時期 |
敷金/礼金 |
- / - |
保証金/ |
- / - |
最寄駅 |
|
所在地 |
東京都杉並区高井戸西 |
部屋番号 |
101号室 |
間取り |
1K(洋7.5) |
専有面積 |
17.90㎡ |
築年数 |
2020年1月(築6年) |
階数 |
1階部分(地上3階建) |
方位・位置 |
西 / 角部屋 |
物件種別 |
賃貸アパート |
構造 |
木造 |
駐車場 |
- |
小学校学区 |
高井戸小学校 |
中学校学区 |
宮前中学校 |
他の空き部屋 |
ー |
- 学区データについて
- ※学区データは必ずしも正確とは限りません。詳細に関しては最寄店舗または各自治体の教育委員会に必ずご確認ください。
アイコート富士見ヶ丘 101号室の特徴
契約条件
この物件は、外国籍の方もご相談の上、ご契約できます。 また、ご契約時に保証人は不要です。 敷金と礼金が無料なため、初期費用が比較的安くなる傾向にあります。
セキュリティ
この物件の建物には、オートロックが設置されており、来客時には居室内のテレビモニターにて訪問者の顔を確認することができます。
室内設備
IHコンロが備え付けられています。 トイレは、温水洗浄便座機能付きになります。 洗濯に便利な設備として、室内洗濯機置場があります。浴室乾燥機も設置されているので、梅雨時の生乾き臭も比較的防ぐことができます。
居室状況
お部屋の床は、フローリングとなっており、エアコンが設置されています。 照明器具が備え付けられており、インターネットも無料で入居後すぐ生活が始められます。 収納スペースとして、基本的な居室にクローゼットを設置、玄関にはシューズボックスがあります。
建物設備共用部分
駐輪場が利用できます。
周辺施設
この物件の学区は、高井戸小学校区・宮前中学校区です。
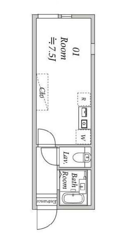
アイコート富士見ヶ丘 101号室の間取り
間取り:1K
間取詳細:1K(洋7.5)
専有面積:17.90㎡
方位:西
部屋位置:角部屋
アイコート富士見ヶ丘 101号室の設備
キッチン
IHコンロ
バス・トイレ
バス・トイレ別
浴室乾燥機
温水洗浄便座
玄関
TVモニタ付インターホン
オートロック
収納
クローゼット
シューズボックス
室内設備
エアコン
フローリング
室内洗濯機置場
照明器具付
位置・立地
1階
角部屋
インフラ
インターネット可
CATV
都市ガス
建物設備
駐輪場
入居条件
外国人可・相談
オンライン相談可
オンライン内見可
保証人不要
ライフステージ
一人暮らしに人気の設備
カップルに人気の設備
家族に人気の設備
夫婦に人気の設備
三世代で人気の設備
こだわり
雨の日でも洗濯したい
洋室で暮らしたい
お得な条件
インターネット無料
アイコート富士見ヶ丘 101号室の賃貸契約情報
毎月支払う |
家賃7.4万円/月共益費4,000円/月 |
|---|---|
初期費用 |
敷金-礼金-保証金-敷引き償却金- |
更新料 |
74,000円 |
鍵交換費用 |
37,400円 |
室内清掃費用 |
- |
駐車場料金 |
- |
損保・ |
借家賠付きの火災保険にご加入いただきます。 |
保証会社 |
加入要 保証会社:ジェイリース 保証会社利用料:初回80%、月1500円 |
契約期間 |
2年 |
入居可能日 |
相談 |
フリーレント期間 |
- |
取引形態 |
一般媒介 |
備考 |
1年未満の解約で違約金1か月 退去時清掃費34000円(税別)、エアコンクリーニング費12000円(税別) 鍵交換代 37400円 月額:火災保険 1100円 安心入居サポート 1100円 |
アイコート富士見ヶ丘 101号室の建物情報
建物名称 |
アイコート富士見ヶ丘 |
|---|---|
最寄駅 |
|
所在地 |
東京都杉並区高井戸西 |
階層 |
1階部分(地上3階建) |
構造 |
木造 |
築年数 |
2020年1月(築6年) |
駐車場 |
- |
小学校学区 |
高井戸小学校 |
中学校学区 |
宮前中学校 |
- 学区データについて
- ※学区データは必ずしも正確とは限りません。詳細に関しては最寄店舗または各自治体の教育委員会に必ずご確認ください。
無料この物件に問い合わせ
- アイコート富士見ヶ丘 101号室

-
7.4万円
(共益費
4,000円)
- 敷
- -
- 礼
- -
- 保
- -
- 償
- -
アイコート富士見ヶ丘 101号室の物件のお問い合わせ先・取り扱い店舗
ハウスコム 千歳烏山店
- アクセス
-
京王線「千歳烏山駅」北口徒歩1分
- 住所
- 〒157-0062 東京都世田谷区南烏山6丁目2−1 駅前ビル 1F
- 営業時間
- 10:00~18:00
- 定休日
- なし
- 営業エリア
- 世田谷区、杉並区、調布市、三鷹市、狛江市
- 取引態様
- 賃貸仲介業




































