クレイノRIRIKA 205号室(2階/1K)の賃貸物件(賃貸アパート)
福岡県糟屋郡宇美町にあるクレイノRIRIKA 205号室は電気コンロ、温水洗浄便座、独立洗面台、TVモニタ付インターホン、エアコンなどが特徴です。最寄り駅の香椎線宇美駅からバスで11分、六反田橋から徒歩6分です。クレイノRIRIKA 205号室の詳細はハウスコム 吉塚店までお気軽にお問い合わせください!
情報更新日:
次回更新予定日:
※次回更新予定日について:お店側では順次空室確認を行っていますが、次回更新予定日までに空室確認が行えない場合には、この物件情報は自動的に削除されます。
クレイノRIRIKA 205号室の賃貸物件部屋概要
家賃 |
5.3万円
初期費用を |
|---|---|
共益費 |
4,500円
入居可能時期 |
敷金/礼金 |
- / 53,000円 |
保証金/ |
- / - |
最寄駅 |
|
所在地 |
福岡県糟屋郡宇美町宇美東 |
部屋番号 |
205号室 |
間取り |
1K |
専有面積 |
25.89㎡ |
築年数 |
2019年2月(築7年) |
階数 |
2階部分(地上2階建) |
方位・位置 |
ー / その他 |
物件種別 |
賃貸アパート |
構造 |
木造 |
駐車場 |
4,400円 |
小学校学区 |
宇美東小学校 |
中学校学区 |
宇美東中学校 |
他の空き部屋 |
104号室 |
- 学区データについて
- ※学区データは必ずしも正確とは限りません。詳細に関しては最寄店舗または各自治体の教育委員会に必ずご確認ください。
クレイノRIRIKA 205号室の特徴
契約条件
敷金が無料なため、初期費用が比較的安くなる傾向にあります。
セキュリティ
来客時には居室内のテレビモニターにて訪問者の顔を確認することができます。
室内設備
電気コンロが備え付けられています。 トイレは、温水洗浄便座機能付きになります。 女性に嬉しい設備の独立した洗面化粧台があります。 洗濯に便利な設備として、室内洗濯機置場があります。
居室状況
エアコンが設置されています。
建物設備共用部分
居室外の専有スペースとして、洗濯物を干すなどの用途として利用できるバルコニーがあります。
周辺施設
この物件の学区は、宇美東小学校区・宇美東中学校区です。
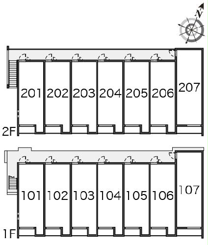
クレイノRIRIKA 205号室の間取り
間取り:1K
間取詳細:1K
専有面積:25.89㎡
方位:ー
部屋位置:その他
クレイノRIRIKA 205号室の設備
キッチン
電気コンロ
バス・トイレ
バス・トイレ別
温水洗浄便座
独立洗面台
玄関
TVモニタ付インターホン
バルコニー
バルコニー
ルーフバルコニー
室内設備
エアコン
室内洗濯機置場
位置・立地
2階以上
最上階
インフラ
インターネット可
ライフステージ
一人暮らしに人気の設備
カップルに人気の設備
家族に人気の設備
夫婦に人気の設備
三世代で人気の設備
こだわり
外で子どもと遊びたい
雨の日でも洗濯したい
寝るためだけの部屋
趣味
ガーデニングが好き
クレイノRIRIKA 205号室の賃貸契約情報
毎月支払う |
家賃5.3万円/月共益費4,500円/月 |
|---|---|
初期費用 |
敷金-礼金53,000円保証金-敷引き償却金- |
更新料 |
- |
鍵交換費用 |
16,500円 |
室内清掃費用 |
41,800円 |
抗菌施工(任意) |
23,760円 |
駐車場料金 |
4,400円 |
損保・ |
借家賠付きの火災保険にご加入いただきます。 |
保証会社 |
加入要 保証会社利用料:保証料:69590円(契約内容により100~120%で変動有)※記載金額は120%の場合 |
契約期間 |
- |
入居可能日 |
2026年03月上旬 |
フリーレント期間 |
- |
取引形態 |
一般媒介 |
備考 |
抗菌施工(任意)17712円から23328円(税込)、環境維持費540円/月 |
クレイノRIRIKA 205号室の建物情報
建物名称 |
クレイノRIRIKA |
|---|---|
最寄駅 |
|
所在地 |
福岡県糟屋郡宇美町宇美東 |
階層 |
2階部分(地上2階建) |
構造 |
木造 |
築年数 |
2019年2月(築7年) |
駐車場 |
4,400円 |
小学校学区 |
宇美東小学校 |
中学校学区 |
宇美東中学校 |
- 学区データについて
- ※学区データは必ずしも正確とは限りません。詳細に関しては最寄店舗または各自治体の教育委員会に必ずご確認ください。
無料この物件に問い合わせ
- クレイノRIRIKA 205号室

-
5.3万円
(共益費
4,500円)
- 敷
- -
- 礼
- 53,000円
- 保
- -
- 償
- -
クレイノRIRIKA 205号室の物件のお問い合わせ先・取り扱い店舗
ハウスコム 吉塚店
- アクセス
-
鹿児島本線「吉塚駅」徒歩2分
- 住所
- 〒812-0045 福岡県福岡市博多区東公園2−26
- 営業時間
- 10:00~18:00
- 定休日
- なし
- 営業エリア
- 福岡市内(全エリア)・糟屋郡・春日市・那珂川市・福津市・古賀市・大野城市
- 取引態様
- 賃貸仲介業
























