リブリ・K & W 上池台 401号室(4階/1DK)の賃貸物件(賃貸マンション)
東京都大田区にあるリブリ・K & W 上池台 401号室は温水洗浄便座、TVモニタ付インターホン、フローリング、室内洗濯機置場、都市ガスなどが特徴です。最寄り駅の東急池上線長原駅から徒歩13分です。リブリ・K & W 上池台 401号室の詳細はハウスコム 大岡山店までお気軽にお問い合わせください!
情報更新日:
次回更新予定日:
※次回更新予定日について:お店側では順次空室確認を行っていますが、次回更新予定日までに空室確認が行えない場合には、この物件情報は自動的に削除されます。
リブリ・K & W 上池台 401号室の賃貸物件部屋概要
家賃 |
12.4万円
初期費用を |
|---|---|
共益費 |
4,000円
入居可能時期 |
敷金/礼金 |
- / 1ヶ月 |
保証金/ |
- / - |
最寄駅 |
|
所在地 |
東京都大田区上池台 |
部屋番号 |
401号室 |
間取り |
1DK(洋7.8・DK7.8) |
専有面積 |
40.93㎡ |
築年数 |
2013年3月(築13年) |
階数 |
4階部分(地上4階建) |
方位・位置 |
北西 / その他 |
物件種別 |
賃貸マンション |
構造 |
RC |
駐車場 |
無 |
小学校学区 |
小池小学校 |
中学校学区 |
貝塚中学校 |
他の空き部屋 |
203号室 |
- 学区データについて
- ※学区データは必ずしも正確とは限りません。詳細に関しては最寄店舗または各自治体の教育委員会に必ずご確認ください。
リブリ・K & W 上池台 401号室の特徴
契約条件
この物件は、2人入居もご契約できます。 敷金が無料なため、初期費用が比較的安くなる傾向にあります。
セキュリティ
この物件の建物には、オートロックが設置されており、来客時には居室内のテレビモニターにて訪問者の顔を確認することができます。
室内設備
システムキッチンには、2つ以上のガスコンロが備え付けられています。 お風呂とトイレは別です。お風呂には、追い焚き機能が備わっています。 トイレは、温水洗浄便座機能付きになります。 女性に嬉しい設備の独立した洗面化粧台があります。 洗濯に便利な設備として、室内洗濯機置場があります。浴室乾燥機も設置されているので、梅雨時の生乾き臭も比較的防ぐことができます。
居室状況
お部屋の床は、フローリングとなっています。照明器具が備え付けられており、入居後すぐ生活が始められます。 収納スペースとして、玄関にはシューズボックスがあります。
建物設備共用部分
建物の共用スペースに、日々の出入に便利なエレベーターが設置されています。 駐輪場、バイク置き場が利用できます。
周辺施設
この物件の学区は、小池小学校区・貝塚中学校区です。
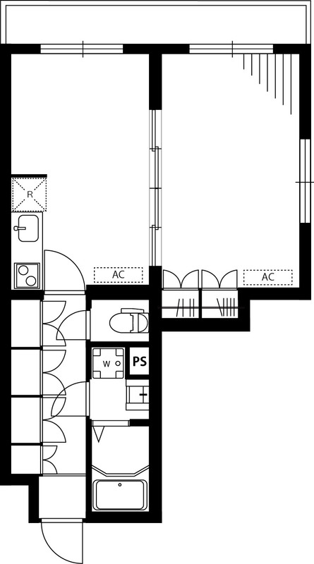
リブリ・K & W 上池台 401号室の間取り
間取り:1DK
間取詳細:1DK(洋7.8・DK7.8)
専有面積:40.93㎡
方位:北西
部屋位置:その他
リブリ・K & W 上池台 401号室の設備
キッチン
システムキッチン
ガスコンロ
ガスコンロ二口以上
バス・トイレ
バス・トイレ別
追い焚き
浴室乾燥機
温水洗浄便座
独立洗面台
玄関
TVモニタ付インターホン
オートロック
収納
シューズボックス
室内設備
フローリング
室内洗濯機置場
照明器具付
位置・立地
2階以上
最上階
インフラ
都市ガス
建物設備
エレベーター
駐輪場
バイク置き場
入居条件
2人入居可
ライフステージ
一人暮らしに人気の設備
カップルに人気の設備
家族に人気の設備
夫婦に人気の設備
三世代で人気の設備
こだわり
雨の日でも洗濯したい
洋室で暮らしたい
リブリ・K & W 上池台 401号室の賃貸契約情報
毎月支払う |
家賃12.4万円/月共益費4,000円/月 |
|---|---|
初期費用 |
敷金-礼金1ヶ月 (12.4万円)保証金-敷引き償却金- |
更新料 |
- |
鍵交換費用 |
- |
室内清掃費用 |
- |
リブリクラブ会員費(2年間) |
7,700円 |
室内消毒代 |
16,500円 |
鍵交換代 |
24,200円 |
駐車場料金 |
無 |
損保・ |
借家賠付きの火災保険にご加入いただきます。 |
保証会社 |
加入要 保証会社利用料:株式会社スマートクレジット 基本料:月額支払合計の100% 、月額料:月額支払合計の1.1%、口振手数料:330円/月 |
契約期間 |
定期借家 2年 |
入居可能日 |
2026年02月中旬 |
フリーレント期間 |
- |
取引形態 |
一般媒介 |
備考 |
- |
リブリ・K & W 上池台 401号室の建物情報
建物名称 |
リブリ・K & W 上池台 |
|---|---|
最寄駅 |
|
所在地 |
東京都大田区上池台 |
階層 |
4階部分(地上4階建) |
構造 |
RC |
築年数 |
2013年3月(築13年) |
駐車場 |
無 |
小学校学区 |
小池小学校 |
中学校学区 |
貝塚中学校 |
- 学区データについて
- ※学区データは必ずしも正確とは限りません。詳細に関しては最寄店舗または各自治体の教育委員会に必ずご確認ください。
無料この物件に問い合わせ
- リブリ・K & W 上池台 401号室

-
12.4万円
(共益費
4,000円)
- 敷
- -
- 礼
- 1ヶ月
- 保
- -
- 償
- -
リブリ・K & W 上池台 401号室の物件のお問い合わせ先・取り扱い店舗
ハウスコム 大岡山店
- アクセス
-
東急目黒線「大岡山駅」徒歩1分
- 住所
- 〒145-0062 東京都大田区北千束1丁目51−6 サンルミナスA 1階
- 営業時間
- 10:00~18:00
- 定休日
- なし
- 営業エリア
- 大田区,目黒区,品川区,世田谷区
- 取引態様
- 賃貸仲介業































