Park Lane Kujo 301号室(3階/1LDK)の賃貸物件(賃貸マンション)
大阪府大阪市西区にあるPark Lane Kujo 301号室はカウンターキッチン、バス・トイレ別、バルコニー、2階以上、オンライン相談可などが特徴です。最寄り駅の大阪メトロ 中央線九条駅から徒歩6分です。Park Lane Kujo 301号室の詳細はミニミニ FC心斎橋店までお気軽にお問い合わせください!
情報更新日:
次回更新予定日:
※次回更新予定日について:お店側では順次空室確認を行っていますが、次回更新予定日までに空室確認が行えない場合には、この物件情報は自動的に削除されます。
Park Lane Kujo 301号室の賃貸物件部屋概要
家賃 |
14.85万円
初期費用を |
|---|---|
共益費 |
10,000円
入居可能時期 |
敷金/礼金 |
1ヶ月 / - |
保証金/ |
- / - |
最寄駅 |
|
所在地 |
大阪府大阪市西区九条 |
部屋番号 |
301号室 |
間取り |
1LDK(LDK14.1・洋3.9) |
専有面積 |
26.23㎡ |
築年数 |
新築 |
階数 |
3階部分(地上14階建) |
方位・位置 |
南東 / 角部屋 |
物件種別 |
賃貸マンション |
構造 |
RC |
駐車場 |
無 |
小学校学区 |
九条南小学校 |
中学校学区 |
西中学校 |
他の空き部屋 |
***号室 1001号室 1002号室 ***号室 ***号室 1101号室 1102号室 ***号室 1201号室 ***号室 1202号室 ***号室 1301号室 ***号室 1302号室 ***号室 1401号室 ***号室 1402号室 ***号室 ***号室 201号室 ***号室 202号室 ***号室 ***号室 302号室 ***号室 401号室 ***号室 402号室 ***号室 501号室 ***号室 502号室 ***号室 601号室 ***号室 602号室 701号室 ***号室 ***号室 702号室 ***号室 801号室 802号室 ***号室 901号室 ***号室 ***号室 902号室 |
- 学区データについて
- ※学区データは必ずしも正確とは限りません。詳細に関しては最寄店舗または各自治体の教育委員会に必ずご確認ください。
Park Lane Kujo 301号室の特徴
-
一人暮らしに人気の設備

-
カップルに人気の設備

-
家族に人気の設備

-
夫婦に人気の設備

-
三世代で人気の設備

-
セキュリティ対策重視

-
外で子どもと遊びたい

-
雨の日でも洗濯したい

-
洋室で暮らしたい

-
服やおしゃれが好き

-
推し活グッズを飾りたい

-
オークション・通販が好き

-
ガーデニングが好き

契約条件
礼金が無料なため、初期費用が比較的安くなる傾向にあります。
セキュリティ
この物件の建物には、オートロックや防犯カメラや宅配ボックスが設置されており、来客時には居室内のテレビモニターにて訪問者の顔を確認することができます。
室内設備
システムキッチンには、2つ以上のガスコンロが備え付けられています。 トイレは、温水洗浄便座機能付きになります。 女性に嬉しい設備のシャワーの付いている洗面化粧台があります。 洗濯に便利な設備として、室内洗濯機置場があります。浴室乾燥機も設置されているので、梅雨時の生乾き臭も比較的防ぐことができます。
居室状況
お部屋の床は、フローリングとなっており、エアコンが設置されています。 インターネットも無料で入居後すぐ生活が始められます。 収納スペースとして、通常よりも収納力の高いウォークインクローゼット、玄関にはシューズボックスがあります。
建物設備共用部分
居室外の専有スペースとして、洗濯物を干すなどの用途として利用できるバルコニーがあります。 建物の共用スペースに、日々の出入に便利なエレベーターや、いざという時の防犯カメラや、急な外出や不在がちのご家庭の荷物受け取りに便利な宅配ボックスが設置されています。 駐輪場、バイク置き場が利用できます。
周辺施設
この物件の学区は、九条南小学校区・西中学校区です。
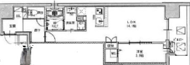
Park Lane Kujo 301号室の間取り
間取り:1LDK
間取詳細:1LDK(LDK14.1・洋3.9)
専有面積:26.23㎡
方位:南東
部屋位置:角部屋
Park Lane Kujo 301号室の設備
キッチン
システムキッチン
カウンターキッチン
ガスコンロ
ガスコンロ二口以上
バス・トイレ
バス・トイレ別
浴室乾燥機
温水洗浄便座
独立洗面台
シャワー付洗面化粧台
玄関
TVモニタ付インターホン
オートロック
宅配ボックス
収納
ウォークインクローゼット
シューズボックス
バルコニー
バルコニー
ルーフバルコニー
室内設備
エアコン
フローリング
室内洗濯機置場
位置・立地
2階以上
角部屋
インフラ
インターネット可
都市ガス
建物設備
エレベーター
防犯カメラ
駐輪場
バイク置き場
入居条件
オンライン相談可
オンライン内見可
ライフステージ
一人暮らしに人気の設備
カップルに人気の設備
家族に人気の設備
夫婦に人気の設備
三世代で人気の設備
こだわり
セキュリティ対策重視
外で子どもと遊びたい
雨の日でも洗濯したい
洋室で暮らしたい
趣味
服やおしゃれが好き
推し活グッズを飾りたい
オークション・通販が好き
ガーデニングが好き
お得な条件
インターネット無料
Park Lane Kujo 301号室の賃貸契約情報
毎月支払う |
家賃14.85万円/月共益費10,000円/月 |
|---|---|
初期費用 |
敷金1ヶ月 (14.85万円)礼金-保証金-敷引き償却金- |
更新料 |
- |
鍵交換費用 |
- |
室内清掃費用 |
44,000円 |
駐車場料金 |
無 |
損保・ |
借家賠付きの火災保険にご加入いただきます。 |
保証会社 |
加入要 保証会社:日本セーフティー 保証会社利用料:初回保証料:保証人有 総賃料の40%、保証人無し 総賃料の50%、月額保証料:880円 |
契約期間 |
2年 |
入居可能日 |
相談 |
フリーレント期間 |
- |
取引形態 |
一般媒介 |
備考 |
短期解約違約金:1年未満総賃料2ヶ月、2年未満総賃料1ヶ月 |
Park Lane Kujo 301号室の建物情報
建物名称 |
Park Lane Kujo |
|---|---|
最寄駅 |
|
所在地 |
大阪府大阪市西区九条 |
階層 |
3階部分(地上14階建) |
構造 |
RC |
築年数 |
新築 |
駐車場 |
無 |
小学校学区 |
九条南小学校 |
中学校学区 |
西中学校 |
- 学区データについて
- ※学区データは必ずしも正確とは限りません。詳細に関しては最寄店舗または各自治体の教育委員会に必ずご確認ください。
無料この物件に問い合わせ
- Park Lane Kujo 301号室

-
14.85万円
(共益費
10,000円)
- 敷
- 1ヶ月
- 礼
- -
- 保
- -
- 償
- -
Park Lane Kujo 301号室の物件のお問い合わせ先・取り扱い店舗
ミニミニ FC心斎橋店
- アクセス
-
大阪メトロ 御堂筋線「心斎橋駅」徒歩2分
大阪メトロ 長堀鶴見緑地線「心斎橋駅」徒歩2分
- 住所
- 〒542-0081 大阪府大阪市中央区南船場3-11-6 アルファビル1F
- 営業時間
- 10:00~18:00
- 定休日
- なし(12月25日~1月3日の年末年始は休業となります)
- 営業エリア
- 大阪市中央区,大阪市西区、大阪市北区、大阪市浪速区、大阪市城東区、大阪市港区、大阪市福島区
- 取引態様
- 賃貸仲介業





























