レオパレス落合 105号室(1階/1K)の賃貸物件(賃貸アパート)
東京都中野区にあるレオパレス落合 105号室は電気コンロ、エアコン、ロフト付、1階、インターネット可などが特徴です。最寄り駅の東京メトロ 東西線落合駅から徒歩4分です。レオパレス落合 105号室の詳細はハウスコム 中野店までお気軽にお問い合わせください!
情報更新日:
次回更新予定日:
※次回更新予定日について:お店側では順次空室確認を行っていますが、次回更新予定日までに空室確認が行えない場合には、この物件情報は自動的に削除されます。
レオパレス落合 105号室の賃貸物件部屋概要
家賃 |
8万円
初期費用を |
|---|---|
共益費 |
5,500円
入居可能時期 |
敷金/礼金 |
- / 80,000円 |
保証金/ |
- / - |
最寄駅 |
|
所在地 |
東京都中野区東中野 |
部屋番号 |
105号室 |
間取り |
1K |
専有面積 |
13.86㎡ |
築年数 |
1989年8月(築37年) |
階数 |
1階部分(地上2階建) |
方位・位置 |
ー / その他 |
物件種別 |
賃貸アパート |
構造 |
木造 |
駐車場 |
無 |
小学校学区 |
白桜小学校 |
中学校学区 |
中野東中学校 |
他の空き部屋 |
201号室 |
- 学区データについて
- ※学区データは必ずしも正確とは限りません。詳細に関しては最寄店舗または各自治体の教育委員会に必ずご確認ください。
レオパレス落合 105号室の特徴
契約条件
敷金が無料なため、初期費用が比較的安くなる傾向にあります。
室内設備
電気コンロが備え付けられています。
居室状況
居室には、ロフトが設置されており大規模な収納スペースやセパレートされた寝室として活用できます。 エアコンが設置されています。
周辺施設
この物件の学区は、白桜小学校区・中野東中学校区です。
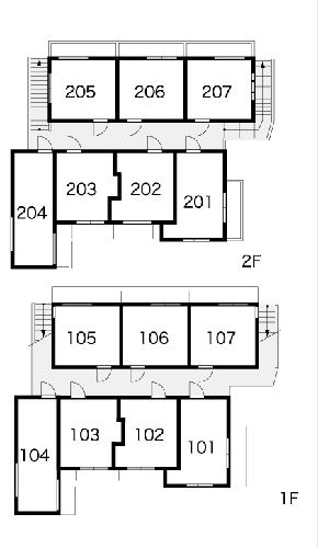
レオパレス落合 105号室の間取り
間取り:1K
間取詳細:1K
専有面積:13.86㎡
方位:ー
部屋位置:その他
レオパレス落合 105号室の設備
キッチン
電気コンロ
室内設備
エアコン
ロフト付
位置・立地
1階
インフラ
インターネット可
ライフステージ
一人暮らしに人気の設備
トレンド
ミニマリスト
レオパレス落合 105号室の賃貸契約情報
毎月支払う |
家賃8万円/月共益費5,500円/月 |
|---|---|
初期費用 |
敷金-礼金80,000円保証金-敷引き償却金- |
更新料 |
- |
鍵交換費用 |
16,500円 |
室内清掃費用 |
41,800円 |
抗菌施工(任意) |
23,760円 |
駐車場料金 |
無 |
損保・ |
借家賠付きの火災保険にご加入いただきます。 |
保証会社 |
加入要 保証会社利用料:保証料:103190円(契約内容により100~120%で変動有)※記載金額は120%の場合 |
契約期間 |
- |
入居可能日 |
2026年02月下旬 |
フリーレント期間 |
- |
取引形態 |
一般媒介 |
備考 |
- |
レオパレス落合 105号室の建物情報
建物名称 |
レオパレス落合 |
|---|---|
最寄駅 |
|
所在地 |
東京都中野区東中野 |
階層 |
1階部分(地上2階建) |
構造 |
木造 |
築年数 |
1989年8月(築37年) |
駐車場 |
無 |
小学校学区 |
白桜小学校 |
中学校学区 |
中野東中学校 |
- 学区データについて
- ※学区データは必ずしも正確とは限りません。詳細に関しては最寄店舗または各自治体の教育委員会に必ずご確認ください。
無料この物件に問い合わせ
- レオパレス落合 105号室

-
8万円
(共益費
5,500円)
- 敷
- -
- 礼
- 80,000円
- 保
- -
- 償
- -
レオパレス落合 105号室の物件のお問い合わせ先・取り扱い店舗
ハウスコム 中野店
駅徒歩1分以内
駅徒歩3分以内
駅徒歩5分以内
- アクセス
-
中央本線(JR東日本)「中野駅」徒歩1分
東京メトロ 東西線「中野駅」徒歩1分
- 住所
- 〒164-0001 東京都中野区中野2-24-9 ナカノサウステラ レジデンス棟1階
- 営業時間
- 10:00~18:00
- 定休日
- なし
- 営業エリア
- 【中野区・杉並区・新宿区・練馬区・渋谷区・世田谷区・豊島区】
- 取引態様
- 賃貸仲介業
お問い合わせNo. HC5-4942919-105-0174








