ガーデンヒルズ洋光台 307号室(3階/3LDK)の賃貸物件(賃貸マンション)
神奈川県横浜市磯子区にあるガーデンヒルズ洋光台 307号室はシステムキッチン、バルコニー、フローリング、室内洗濯機置場、都市ガスなどが特徴です。最寄り駅の根岸線洋光台駅から徒歩15分です。ガーデンヒルズ洋光台 307号室の詳細はハウスコム 金沢文庫店までお気軽にお問い合わせください!
情報更新日:
次回更新予定日:
※次回更新予定日について:お店側では順次空室確認を行っていますが、次回更新予定日までに空室確認が行えない場合には、この物件情報は自動的に削除されます。
ガーデンヒルズ洋光台 307号室の賃貸物件部屋概要
家賃 |
10.3万円
初期費用を |
|---|---|
共益費 |
7,000円
入居可能時期 |
敷金/礼金 |
1ヶ月 / 1ヶ月 |
保証金/ |
- / - |
最寄駅 |
|
所在地 |
神奈川県横浜市磯子区洋光台 |
部屋番号 |
307号室 |
間取り |
3LDK(LDK13.3・洋6.1・洋5.2・和6) |
専有面積 |
65.50㎡ |
築年数 |
2001年7月(築25年) |
階数 |
3階部分(地上3階建) |
方位・位置 |
南東 / その他 |
物件種別 |
賃貸マンション |
構造 |
RC |
駐車場 |
16,500円 |
小学校学区 |
洋光台第一小学校 |
中学校学区 |
洋光台第一中学校 |
他の空き部屋 |
ー |
- 学区データについて
- ※学区データは必ずしも正確とは限りません。詳細に関しては最寄店舗または各自治体の教育委員会に必ずご確認ください。
ガーデンヒルズ洋光台 307号室の特徴
-
一人暮らしに人気の設備

-
カップルに人気の設備

-
家族に人気の設備

-
夫婦に人気の設備

-
三世代で人気の設備

-
セキュリティ対策重視

-
収納重視

-
外で子どもと遊びたい

-
雨の日でも洗濯したい

-
洋室で暮らしたい

-
持ち物をスッキリ隠す収納部屋

-
料理が好き

-
推し活グッズを飾りたい

-
ガーデニングが好き

セキュリティ
この物件の建物には、オートロックや防犯カメラや宅配ボックスが設置されており、来客時には居室内のテレビモニターにて訪問者の顔を確認することができます。
室内設備
システムキッチンには、ガスコンロが備え付けられています。 お風呂とトイレは別です。お風呂には、追い焚き機能が備わっています。 トイレは、温水洗浄便座機能付きになります。 女性に嬉しい設備のシャワーの付いている洗面化粧台があります。 洗濯に便利な設備として、室内洗濯機置場があります。
居室状況
居室には、和室の居室もあり、子育てやリラックススペースとしての利用もできます。 お部屋の床は、フローリングとなっており、エアコンが設置されています。 収納スペースとして、基本的な居室にクローゼットを設置、玄関にはシューズボックスがあります。
建物設備共用部分
居室外の専有スペースとして、洗濯物を干すなどの用途として利用できるバルコニーがあります。 建物の共用スペースに、日々の出入に便利なエレベーターや、いざという時の防犯カメラや、急な外出や不在がちのご家庭の荷物受け取りに便利な宅配ボックスが設置されています。 駐輪場、バイク置き場が利用できます。
周辺施設
この物件の学区は、洋光台第一小学校区・洋光台第一中学校区です。
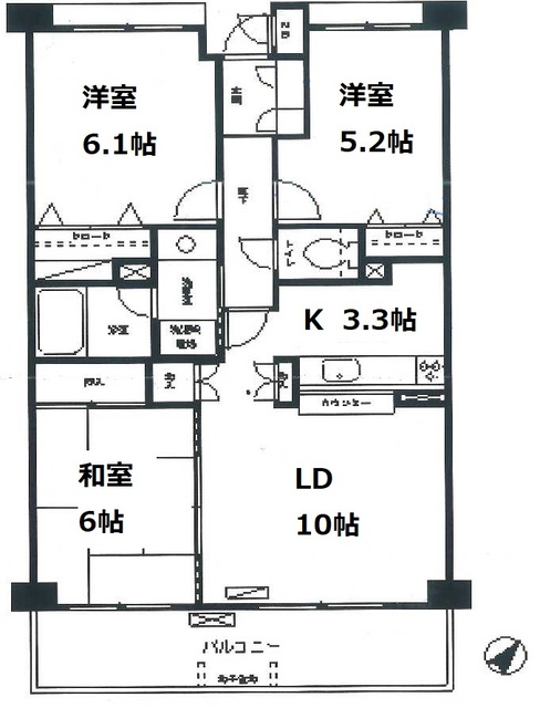
ガーデンヒルズ洋光台 307号室の間取り
間取り:3LDK
間取詳細:3LDK(LDK13.3・洋6.1・洋5.2・和6)
専有面積:65.50㎡
方位:南東
部屋位置:その他
ガーデンヒルズ洋光台 307号室の設備
キッチン
システムキッチン
カウンターキッチン
ガスコンロ
バス・トイレ
バス・トイレ別
追い焚き
温水洗浄便座
独立洗面台
シャワー付洗面化粧台
玄関
TVモニタ付インターホン
オートロック
宅配ボックス
収納
クローゼット
シューズボックス
全居室収納
バルコニー
バルコニー
ルーフバルコニー
室内設備
エアコン
フローリング
室内洗濯機置場
和室あり
位置・立地
2階以上
最上階
インフラ
インターネット可
CATV
BS
都市ガス
建物設備
エレベーター
防犯カメラ
駐輪場
バイク置き場
ライフステージ
一人暮らしに人気の設備
カップルに人気の設備
家族に人気の設備
夫婦に人気の設備
三世代で人気の設備
こだわり
セキュリティ対策重視
収納重視
外で子どもと遊びたい
雨の日でも洗濯したい
洋室で暮らしたい
持ち物をスッキリ隠す収納部屋
趣味
料理が好き
推し活グッズを飾りたい
ガーデニングが好き
ガーデンヒルズ洋光台 307号室の賃貸契約情報
毎月支払う |
家賃10.3万円/月共益費7,000円/月 |
|---|---|
初期費用 |
敷金1ヶ月 (10.3万円)礼金1ヶ月 (10.3万円)保証金-敷引き償却金- |
更新料 |
103,000円 |
鍵交換費用 |
- |
室内清掃費用 |
- |
鍵交換費 |
29,700円 |
駐車場料金 |
16,500円 |
損保・ |
借家賠付きの火災保険にご加入いただきます。 |
保証会社 |
加入要 保証会社利用料:保証会社名:クレディセゾン/【契約時】月額総支払額の60%【月額】月額総支払額の1%【更新保証料】なし |
契約期間 |
2年 |
入居可能日 |
2026年04月上旬 |
フリーレント期間 |
- |
取引形態 |
一般媒介 |
備考 |
火災保険要加入/退去時清掃代:64845円/鍵交換費:22000円 |
ガーデンヒルズ洋光台 307号室の建物情報
建物名称 |
ガーデンヒルズ洋光台 |
|---|---|
最寄駅 |
|
所在地 |
神奈川県横浜市磯子区洋光台 |
階層 |
3階部分(地上3階建) |
構造 |
RC |
築年数 |
2001年7月(築25年) |
駐車場 |
16,500円 |
小学校学区 |
洋光台第一小学校 |
中学校学区 |
洋光台第一中学校 |
- 学区データについて
- ※学区データは必ずしも正確とは限りません。詳細に関しては最寄店舗または各自治体の教育委員会に必ずご確認ください。
無料この物件に問い合わせ
- ガーデンヒルズ洋光台 307号室

-
10.3万円
(共益費
7,000円)
- 敷
- 1ヶ月
- 礼
- 1ヶ月
- 保
- -
- 償
- -
ガーデンヒルズ洋光台 307号室の物件のお問い合わせ先・取り扱い店舗
ハウスコム 金沢文庫店
- アクセス
-
京急本線「金沢文庫駅」東口徒歩1分
- 住所
- 〒236-0016 神奈川県横浜市金沢区谷津町373
- 営業時間
- 10:00~18:00
- 定休日
- 水曜日(年末年始は休業)
- 営業エリア
- 横浜市金沢区・磯子区・港南区・南区・栄区、横須賀市、逗子市、鎌倉市、葉山町
- 取引態様
- 賃貸仲介業
























