タイズ住吉 103号室(1階/1R)の賃貸物件(賃貸マンション)
東京都江東区にあるタイズ住吉 103号室はシステムキッチン、フローリング、室内洗濯機置場、1階、BSなどが特徴です。最寄り駅の東京メトロ 半蔵門線住吉駅から徒歩11分です。タイズ住吉 103号室の詳細はハウスコム 西葛西店までお気軽にお問い合わせください!
情報更新日:
次回更新予定日:
※次回更新予定日について:お店側では順次空室確認を行っていますが、次回更新予定日までに空室確認が行えない場合には、この物件情報は自動的に削除されます。
タイズ住吉 103号室の賃貸物件部屋概要
家賃 |
17.1万円
初期費用を |
|---|---|
共益費 |
15,000円
入居可能時期 |
敷金/礼金 |
1ヶ月 / - |
保証金/ |
- / - |
最寄駅 |
|
所在地 |
東京都江東区海辺 |
部屋番号 |
103号室 |
間取り |
1R(洋17.4) |
専有面積 |
39.72㎡ |
築年数 |
1995年4月(築31年) |
階数 |
1階部分(地上5階建) |
方位・位置 |
東 / その他 |
物件種別 |
賃貸マンション |
構造 |
RC |
駐車場 |
無 |
小学校学区 |
川南小学校 |
中学校学区 |
深川第四中学校 |
他の空き部屋 |
101号室 104号室 201号室 202号室 203号室 204号室 301号室 303号室 401号室 501号室 |
- 学区データについて
- ※学区データは必ずしも正確とは限りません。詳細に関しては最寄店舗または各自治体の教育委員会に必ずご確認ください。
タイズ住吉 103号室の特徴
契約条件
礼金が無料なため、初期費用が比較的安くなる傾向にあります。
セキュリティ
この物件の建物には、オートロックや宅配ボックスが設置されております。
室内設備
システムキッチンが備え付けられています。 お風呂とトイレは別です。お風呂には、追い焚き機能が備わっています。 女性に嬉しい設備の独立した洗面化粧台があります。 洗濯に便利な設備として、室内洗濯機置場があります。浴室乾燥機も設置されているので、梅雨時の生乾き臭も比較的防ぐことができます。
居室状況
お部屋の床は、フローリングとなっており、エアコンが設置されています。
建物設備共用部分
居室外の専有スペースとして、洗濯物を干すなどの用途として利用できるバルコニーがあります。 建物の共用スペースに、日々の出入に便利なエレベーターや、急な外出や不在がちのご家庭の荷物受け取りに便利な宅配ボックスが設置されています。
周辺施設
この物件の学区は、川南小学校区・深川第四中学校区です。
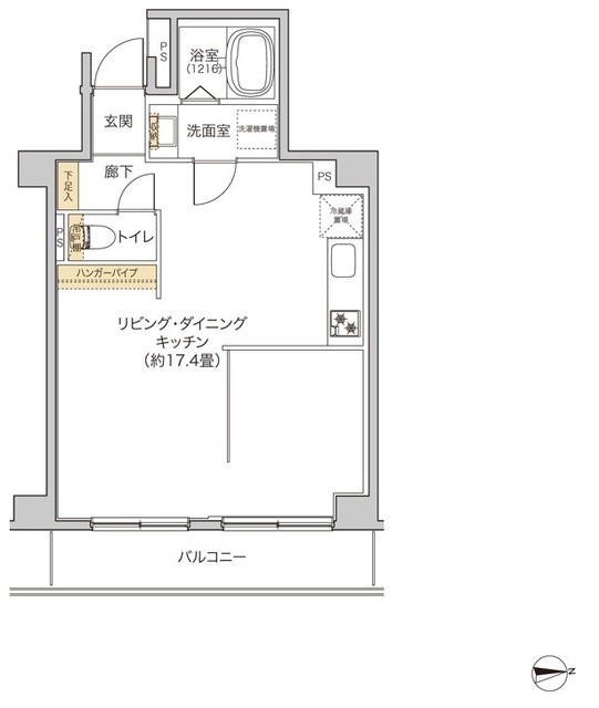
タイズ住吉 103号室の間取り
間取り:1R
間取詳細:1R(洋17.4)
専有面積:39.72㎡
方位:東
部屋位置:その他
タイズ住吉 103号室の設備
キッチン
システムキッチン
バス・トイレ
バス・トイレ別
追い焚き
浴室乾燥機
独立洗面台
玄関
オートロック
宅配ボックス
バルコニー
バルコニー
ルーフバルコニー
室内設備
エアコン
フローリング
室内洗濯機置場
位置・立地
1階
インフラ
CATV
BS
建物設備
エレベーター
入居条件
即入居可
ライフステージ
一人暮らしに人気の設備
カップルに人気の設備
家族に人気の設備
夫婦に人気の設備
三世代で人気の設備
こだわり
外で子どもと遊びたい
雨の日でも洗濯したい
洋室で暮らしたい
趣味
ガーデニングが好き
お得な条件
フリーレント
タイズ住吉 103号室の賃貸契約情報
毎月支払う |
家賃17.1万円/月共益費15,000円/月 |
|---|---|
初期費用 |
敷金1ヶ月 (17.1万円)礼金-保証金-敷引き償却金- |
更新料 |
171,000円 |
鍵交換費用 |
- |
室内清掃費用 |
- |
室内清掃費 |
48,400円 |
鍵交換費 |
22,000円 |
駐車場料金 |
無 |
損保・ |
借家賠付きの火災保険にご加入いただきます。 |
保証会社 |
加入要 保証会社利用料:保証会社名:クレディセゾン・レジデントアシスタンス株式会社/初回保証委託料(最低15000円):月額賃料等の50%、 2年目以降:10000円/年 |
契約期間 |
2年 |
入居可能日 |
即入居可 |
フリーレント期間 |
1ヶ月 |
取引形態 |
一般媒介 |
備考 |
1年未満解約時違約金あり(賃料1か月分) |
タイズ住吉 103号室の建物情報
建物名称 |
タイズ住吉 |
|---|---|
最寄駅 |
|
所在地 |
東京都江東区海辺 |
階層 |
1階部分(地上5階建) |
構造 |
RC |
築年数 |
1995年4月(築31年) |
駐車場 |
無 |
小学校学区 |
川南小学校 |
中学校学区 |
深川第四中学校 |
- 学区データについて
- ※学区データは必ずしも正確とは限りません。詳細に関しては最寄店舗または各自治体の教育委員会に必ずご確認ください。
無料この物件に問い合わせ
- タイズ住吉 103号室

-
17.1万円
(共益費
15,000円)
- 敷
- 1ヶ月
- 礼
- -
- 保
- -
- 償
- -
タイズ住吉 103号室の物件のお問い合わせ先・取り扱い店舗
ハウスコム 西葛西店
- アクセス
-
東京メトロ 東西線「西葛西駅」徒歩1分
- 住所
- 〒134-0088 東京都江戸川区西葛西6-15-3 第一荒井ビル1階
- 営業時間
- 10:00~18:00
- 定休日
- なし
- 営業エリア
- 東京都江戸川区 江東区 中央区全域 千葉県浦安市 市川市全域
- 取引態様
- 賃貸仲介業

















