ピュアシティ大泉学園Ⅰ 205号室(2階/1R)の賃貸物件(賃貸アパート)
東京都練馬区にあるピュアシティ大泉学園Ⅰ 205号室はエアコン、ロフト付、2階以上、都市ガス、駐輪場などが特徴です。最寄り駅の西武池袋線・豊島線大泉学園駅から徒歩10分です。ピュアシティ大泉学園Ⅰ 205号室の詳細はハウスコム 武蔵境店までお気軽にお問い合わせください!
情報更新日:
次回更新予定日:
※次回更新予定日について:お店側では順次空室確認を行っていますが、次回更新予定日までに空室確認が行えない場合には、この物件情報は自動的に削除されます。
ピュアシティ大泉学園Ⅰ 205号室の賃貸物件部屋概要
家賃 |
4.7万円
初期費用を |
|---|---|
共益費 |
-
入居可能時期 |
敷金/礼金 |
- / - |
保証金/ |
- / 1ヶ月 |
最寄駅 |
|
所在地 |
東京都練馬区石神井台 |
部屋番号 |
205号室 |
間取り |
1R |
専有面積 |
15.01㎡ |
築年数 |
1996年8月(築30年) |
階数 |
2階部分(地上2階建) |
方位・位置 |
南東 / その他 |
物件種別 |
賃貸アパート |
構造 |
木造 |
駐車場 |
無 |
小学校学区 |
大泉東小学校 |
中学校学区 |
石神井中学校 |
他の空き部屋 |
ー |
- 学区データについて
- ※学区データは必ずしも正確とは限りません。詳細に関しては最寄店舗または各自治体の教育委員会に必ずご確認ください。
ピュアシティ大泉学園Ⅰ 205号室の特徴
契約条件
敷金と礼金が無料なため、初期費用が比較的安くなる傾向にあります。
居室状況
居室には、ロフトが設置されており大規模な収納スペースやセパレートされた寝室として活用できます。 エアコンが設置されています。 収納スペースとして、玄関にはシューズボックスがあります。
建物設備共用部分
居室外の専有スペースとして、洗濯物を干すなどの用途として利用できるバルコニーがあります。 駐輪場が利用できます。
周辺施設
この物件の学区は、大泉東小学校区・石神井中学校区です。
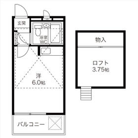
ピュアシティ大泉学園Ⅰ 205号室の間取り
間取り:1R
間取詳細:1R
専有面積:15.01㎡
方位:南東
部屋位置:その他
ピュアシティ大泉学園Ⅰ 205号室の設備
収納
シューズボックス
バルコニー
バルコニー
ルーフバルコニー
室内設備
エアコン
ロフト付
位置・立地
2階以上
最上階
インフラ
都市ガス
建物設備
駐輪場
トレンド
ミニマリスト
こだわり
外で子どもと遊びたい
寝るためだけの部屋
趣味
ガーデニングが好き
ピュアシティ大泉学園Ⅰ 205号室の賃貸契約情報
毎月支払う |
家賃4.7万円/月共益費- |
|---|---|
初期費用 |
敷金-礼金-保証金-敷引き償却金1ヶ月 |
更新料 |
58,750円 |
鍵交換費用 |
23,100円 |
室内清掃費用 |
- |
室内消毒代 |
16,500円 |
アイディサポート24 |
16,500円 |
退去時ハウスクリーニング |
55,000円 |
駐車場料金 |
無 |
損保・ |
借家賠付きの火災保険にご加入いただきます。 |
保証会社 |
加入要 保証会社利用料:契約時50%更新保証料1,000円/月更新保証料に口座振替システム利用料込 |
契約期間 |
2年 |
入居可能日 |
相談 |
フリーレント期間 |
- |
取引形態 |
一般媒介 |
備考 |
- |
ピュアシティ大泉学園Ⅰ 205号室の建物情報
建物名称 |
ピュアシティ大泉学園Ⅰ |
|---|---|
最寄駅 |
|
所在地 |
東京都練馬区石神井台 |
階層 |
2階部分(地上2階建) |
構造 |
木造 |
築年数 |
1996年8月(築30年) |
駐車場 |
無 |
小学校学区 |
大泉東小学校 |
中学校学区 |
石神井中学校 |
- 学区データについて
- ※学区データは必ずしも正確とは限りません。詳細に関しては最寄店舗または各自治体の教育委員会に必ずご確認ください。
無料この物件に問い合わせ
- ピュアシティ大泉学園Ⅰ 205号室

-
4.7万円
(共益費
-)
- 敷
- -
- 礼
- -
- 保
- -
- 償
- 1ヶ月
ピュアシティ大泉学園Ⅰ 205号室の物件のお問い合わせ先・取り扱い店舗
ハウスコム 武蔵境店
駅徒歩1分以内
駅徒歩3分以内
駅徒歩5分以内
- アクセス
-
中央本線(JR東日本)「武蔵境駅」徒歩1分
- 住所
- 〒180-0022 東京都武蔵野市境2丁目2−3 渡辺ビル 1階
- 営業時間
- 10:00~18:00
- 定休日
- 水曜日
- 営業エリア
- 武蔵野市・三鷹市・小金井市・国分寺市・西東京市・小平市・練馬区・杉並区・府中市・調布市・国立市・立川市
- 取引態様
- 賃貸仲介業
お問い合わせNo. HC4-5367732-205-0207











