Terra蚕糸の森 201号室(2階/1LDK)の賃貸物件(賃貸マンション)
東京都杉並区にあるTerra蚕糸の森 201号室はバス・トイレ別、独立洗面台、TVモニタ付インターホン、宅配ボックス、CSなどが特徴です。最寄り駅の東京メトロ 丸ノ内線東高円寺駅から徒歩1分です。Terra蚕糸の森 201号室の詳細はハウスコム 高円寺店までお気軽にお問い合わせください!
情報更新日:
次回更新予定日:
※次回更新予定日について:お店側では順次空室確認を行っていますが、次回更新予定日までに空室確認が行えない場合には、この物件情報は自動的に削除されます。
Terra蚕糸の森 201号室の賃貸物件部屋概要
家賃 |
20.7万円
初期費用を |
|---|---|
共益費 |
10,000円
入居可能時期 |
敷金/礼金 |
1ヶ月 / 2ヶ月 |
保証金/ |
- / - |
最寄駅 |
|
所在地 |
東京都杉並区和田 |
部屋番号 |
201号室 |
間取り |
1LDK |
専有面積 |
40.15㎡ |
築年数 |
新築 |
階数 |
2階部分(地上11階建) |
方位・位置 |
西 / その他 |
物件種別 |
賃貸マンション |
構造 |
RC |
駐車場 |
41,800円 |
小学校学区 |
杉並第十小学校 |
中学校学区 |
和田中学校 |
他の空き部屋 |
1001号室 1002号室 1003号室 1004号室 1005号室 1006号室 1010号室 202号室 203号室 204号室 205号室 206号室 210号室 301号室 308号室 309号室 407号室 408号室 409号室 707号室 708号室 801号室 |
- 学区データについて
- ※学区データは必ずしも正確とは限りません。詳細に関しては最寄店舗または各自治体の教育委員会に必ずご確認ください。
Terra蚕糸の森 201号室の特徴
-
一人暮らしに人気の設備

-
カップルに人気の設備

-
家族に人気の設備

-
夫婦に人気の設備

-
三世代で人気の設備

-
外で子どもと遊びたい

-
雨の日でも洗濯したい

-
洋室で暮らしたい

-
服やおしゃれが好き

-
ガーデニングが好き

セキュリティ
この物件の建物には、オートロックや宅配ボックスが設置されており、来客時には居室内のテレビモニターにて訪問者の顔を確認することができます。
室内設備
システムキッチンが備え付けられています。 女性に嬉しい設備の独立した洗面化粧台があります。 洗濯に便利な設備として、室内洗濯機置場があります。浴室乾燥機も設置されているので、梅雨時の生乾き臭も比較的防ぐことができます。
居室状況
お部屋の床は、フローリングとなっています。収納スペースとして、基本的な居室にクローゼットを設置、通常よりも収納力の高いウォークインクローゼットがあります。
建物設備共用部分
居室外の専有スペースとして、洗濯物を干すなどの用途として利用できるバルコニーがあります。 建物の共用スペースに、日々の出入に便利なエレベーターや、急な外出や不在がちのご家庭の荷物受け取りに便利な宅配ボックスが設置されています。 バイク置き場が利用できます。
周辺施設
この物件の学区は、杉並第十小学校区・和田中学校区です。
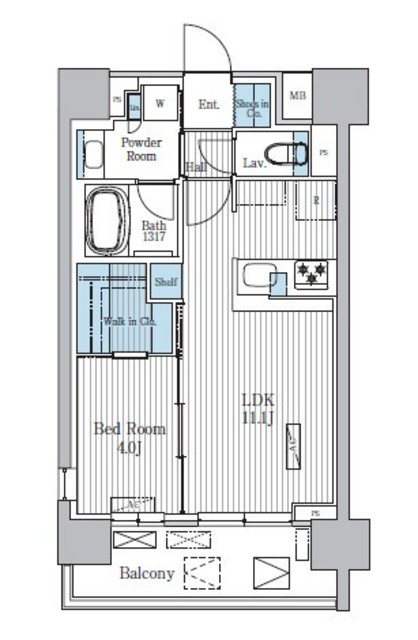
Terra蚕糸の森 201号室の間取り
間取り:1LDK
間取詳細:1LDK
専有面積:40.15㎡
方位:西
部屋位置:その他
Terra蚕糸の森 201号室の設備
キッチン
システムキッチン
バス・トイレ
バス・トイレ別
浴室乾燥機
独立洗面台
玄関
TVモニタ付インターホン
オートロック
宅配ボックス
収納
クローゼット
ウォークインクローゼット
バルコニー
バルコニー
ルーフバルコニー
室内設備
フローリング
室内洗濯機置場
位置・立地
2階以上
インフラ
BS
CS
建物設備
エレベーター
バイク置き場
ライフステージ
一人暮らしに人気の設備
カップルに人気の設備
家族に人気の設備
夫婦に人気の設備
三世代で人気の設備
こだわり
外で子どもと遊びたい
雨の日でも洗濯したい
洋室で暮らしたい
趣味
服やおしゃれが好き
ガーデニングが好き
Terra蚕糸の森 201号室の賃貸契約情報
毎月支払う |
家賃20.7万円/月共益費10,000円/月 |
|---|---|
初期費用 |
敷金1ヶ月 (20.7万円)礼金2ヶ月 (41.4万円)保証金-敷引き償却金- |
更新料 |
207,000円 |
鍵交換費用 |
- |
室内清掃費用 |
- |
室内清掃費 |
75,080円 |
駐車場料金 |
41,800円 |
損保・ |
借家賠付きの火災保険にご加入いただきます。 |
保証会社 |
加入要 保証会社利用料:保証会社名:クレディセゾン・レジデントアシスタンス株式会社/初回保証委託料(最低15000円):月額賃料等の50%、 2年目以降:10000円/年 |
契約期間 |
2年 |
入居可能日 |
2026年03月上旬 |
フリーレント期間 |
- |
取引形態 |
一般媒介 |
備考 |
- |
Terra蚕糸の森 201号室の建物情報
建物名称 |
Terra蚕糸の森 |
|---|---|
最寄駅 |
|
所在地 |
東京都杉並区和田 |
階層 |
2階部分(地上11階建) |
構造 |
RC |
築年数 |
新築 |
駐車場 |
41,800円 |
小学校学区 |
杉並第十小学校 |
中学校学区 |
和田中学校 |
- 学区データについて
- ※学区データは必ずしも正確とは限りません。詳細に関しては最寄店舗または各自治体の教育委員会に必ずご確認ください。
無料この物件に問い合わせ
- Terra蚕糸の森 201号室

-
20.7万円
(共益費
10,000円)
- 敷
- 1ヶ月
- 礼
- 2ヶ月
- 保
- -
- 償
- -
Terra蚕糸の森 201号室の物件のお問い合わせ先・取り扱い店舗
ハウスコム 高円寺店
- アクセス
-
中央本線(JR東日本)「高円寺駅」北口徒歩1分
- 住所
- 〒166-0002 東京都杉並区高円寺北2-4-5 ロータリービル2階
- 営業時間
- 10:00~18:00
- 定休日
- 水曜日
- 営業エリア
- 【杉並区・中野区・練馬区・新宿区・世田谷区・武蔵野市】
- 取引態様
- 賃貸仲介業




