関寅ビル第10 201号室(2階/2LDK)の賃貸物件(賃貸マンション)
東京都江東区にある関寅ビル第10 201号室は浴室乾燥機、宅配ボックス、フローリング、BS、エレベーターなどが特徴です。最寄り駅の東京メトロ 東西線東陽町駅から徒歩13分です。関寅ビル第10 201号室の詳細はハウスコム 事業戦略室までお気軽にお問い合わせください!
情報更新日:
次回更新予定日:
※次回更新予定日について:お店側では順次空室確認を行っていますが、次回更新予定日までに空室確認が行えない場合には、この物件情報は自動的に削除されます。
関寅ビル第10 201号室の賃貸物件部屋概要
家賃 |
21.8万円
初期費用を |
|---|---|
共益費 |
7,000円
入居可能時期 |
敷金/礼金 |
1ヶ月 / 1ヶ月 |
保証金/ |
- / - |
最寄駅 |
|
所在地 |
東京都江東区千石 |
部屋番号 |
201号室 |
間取り |
2LDK(LDK12.1・洋5.3・洋4.9) |
専有面積 |
50.13㎡ |
築年数 |
新築 |
階数 |
2階部分(地上8階建) |
方位・位置 |
西 / 角部屋 |
物件種別 |
賃貸マンション |
構造 |
RC |
駐車場 |
無 |
小学校学区 |
川南小学校 |
中学校学区 |
深川第四中学校 |
他の空き部屋 |
101号室 202号室 203号室 301号室 302号室 303号室 401号室 402号室 403号室 501号室 502号室 503号室 601号室 602号室 701号室 702号室 801号室 |
- 学区データについて
- ※学区データは必ずしも正確とは限りません。詳細に関しては最寄店舗または各自治体の教育委員会に必ずご確認ください。
関寅ビル第10 201号室の特徴
-
一人暮らしに人気の設備

-
カップルに人気の設備

-
家族に人気の設備

-
夫婦に人気の設備

-
三世代で人気の設備

-
セキュリティ対策重視

-
外で子どもと遊びたい

-
雨の日でも洗濯したい

-
洋室で暮らしたい

-
ガーデニングが好き

セキュリティ
この物件の建物には、オートロックや防犯カメラや宅配ボックスが設置されており、来客時には居室内のテレビモニターにて訪問者の顔を確認することができます。
室内設備
システムキッチンには、ガスコンロが備え付けられています。 お風呂とトイレは別です。お風呂には、追い焚き機能が備わっています。 トイレは、温水洗浄便座機能付きになります。 洗濯に便利な設備として、室内洗濯機置場があります。浴室乾燥機も設置されているので、梅雨時の生乾き臭も比較的防ぐことができます。
居室状況
お部屋の床は、フローリングとなっており、エアコンが設置されています。 収納スペースとして、基本的な居室にクローゼットを設置、玄関にはシューズボックスがあります。
建物設備共用部分
居室外の専有スペースとして、洗濯物を干すなどの用途として利用できるバルコニーがあります。 建物の共用スペースに、日々の出入に便利なエレベーターや、いざという時の防犯カメラや、急な外出や不在がちのご家庭の荷物受け取りに便利な宅配ボックスが設置されています。 駐輪場が利用できます。
周辺施設
この物件の学区は、川南小学校区・深川第四中学校区です。
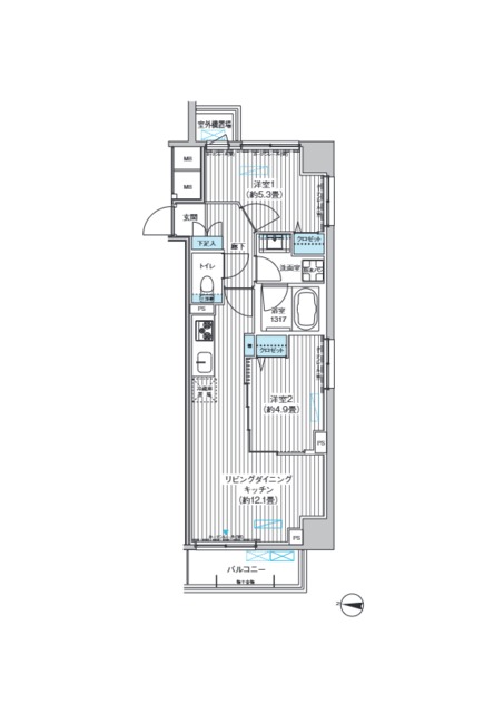
関寅ビル第10 201号室の間取り
間取り:2LDK
間取詳細:2LDK(LDK12.1・洋5.3・洋4.9)
専有面積:50.13㎡
方位:西
部屋位置:角部屋
関寅ビル第10 201号室の設備
キッチン
システムキッチン
ガスコンロ
バス・トイレ
バス・トイレ別
追い焚き
浴室乾燥機
温水洗浄便座
玄関
TVモニタ付インターホン
オートロック
宅配ボックス
収納
クローゼット
シューズボックス
バルコニー
バルコニー
ルーフバルコニー
室内設備
エアコン
フローリング
室内洗濯機置場
位置・立地
2階以上
角部屋
インフラ
インターネット可
BS
CS
都市ガス
建物設備
エレベーター
防犯カメラ
駐輪場
ライフステージ
一人暮らしに人気の設備
カップルに人気の設備
家族に人気の設備
夫婦に人気の設備
三世代で人気の設備
こだわり
セキュリティ対策重視
外で子どもと遊びたい
雨の日でも洗濯したい
洋室で暮らしたい
趣味
ガーデニングが好き
関寅ビル第10 201号室の賃貸契約情報
毎月支払う |
家賃21.8万円/月共益費7,000円/月 |
|---|---|
初期費用 |
敷金1ヶ月 (21.8万円)礼金1ヶ月 (21.8万円)保証金-敷引き償却金- |
更新料 |
218,000円 |
鍵交換費用 |
- |
室内清掃費用 |
- |
駐車場料金 |
無 |
損保・ |
借家賠付きの火災保険にご加入いただきます。 |
保証会社 |
加入要 保証会社利用料:保証会社名:大和ハウスフィナンシャル株式会社/初回保証料:総賃料等の40%、月額保証料:総賃料等の1%等。 |
契約期間 |
2年 |
入居可能日 |
2026年03月上旬 |
フリーレント期間 |
- |
取引形態 |
一般媒介 |
備考 |
- |
関寅ビル第10 201号室の建物情報
建物名称 |
関寅ビル第10 |
|---|---|
最寄駅 |
|
所在地 |
東京都江東区千石 |
階層 |
2階部分(地上8階建) |
構造 |
RC |
築年数 |
新築 |
駐車場 |
無 |
小学校学区 |
川南小学校 |
中学校学区 |
深川第四中学校 |
- 学区データについて
- ※学区データは必ずしも正確とは限りません。詳細に関しては最寄店舗または各自治体の教育委員会に必ずご確認ください。
無料この物件に問い合わせ
- 関寅ビル第10 201号室

-
21.8万円
(共益費
7,000円)
- 敷
- 1ヶ月
- 礼
- 1ヶ月
- 保
- -
- 償
- -
関寅ビル第10 201号室の物件のお問い合わせ先・取り扱い店舗
ハウスコム 事業戦略室
- アクセス
-
山手線「品川駅」港南口徒歩3分
- 住所
- 〒108-0075 東京都港区港南2-16-1 品川イーストワンタワー9階
- 営業時間
- 10:00~17:00
- 定休日
- 土曜日・日曜日(祝日定休)
- 営業エリア
- 北区、荒川区、豊島区、文京区、台東区、中央区、新宿区、千代田区、渋谷区、港区、品川区
- 取引態様
- 賃貸仲介業

