清水が丘の完工年月(2021年12月)築の賃貸アパート ***号室(2階/1R)の賃貸物件(賃貸アパート)
東京都府中市にある清水が丘の完工年月(2021年12月)築の賃貸アパート ***号室はIHコンロ、浴室乾燥機、最上階、インターネット可、即入居可などが特徴です。最寄り駅の京王線東府中駅から徒歩2分です。清水が丘の完工年月(2021年12月)築の賃貸アパート ***号室の詳細はハウスコム 向ヶ丘遊園店までお気軽にお問い合わせください!
情報更新日:
次回更新予定日:
※次回更新予定日について:お店側では順次空室確認を行っていますが、次回更新予定日までに空室確認が行えない場合には、この物件情報は自動的に削除されます。
清水が丘の完工年月(2021年12月)築の賃貸アパート ***号室の賃貸物件部屋概要
家賃 |
9.4万円
初期費用を |
|---|---|
共益費 |
3,000円
入居可能時期 |
敷金/礼金 |
- / 1ヶ月 |
保証金/ |
- / - |
最寄駅 |
|
所在地 |
東京都府中市清水が丘 |
部屋番号 |
***号室 |
間取り |
1R |
専有面積 |
33.71㎡ |
築年数 |
2021年12月(築5年) |
階数 |
2階部分(地上2階建) |
方位・位置 |
ー / その他 |
物件種別 |
賃貸アパート |
構造 |
木造 |
駐車場 |
- |
小学校学区 |
府中第八小学校 |
中学校学区 |
府中第九中学校 |
他の空き部屋 |
ー |
- 学区データについて
- ※学区データは必ずしも正確とは限りません。詳細に関しては最寄店舗または各自治体の教育委員会に必ずご確認ください。
清水が丘の完工年月(2021年12月)築の賃貸アパート ***号室の特徴
契約条件
敷金が無料なため、初期費用が比較的安くなる傾向にあります。
セキュリティ
この物件の建物には、防犯カメラが設置されております。
室内設備
システムキッチンには、IHコンロが備え付けられています。 お風呂とトイレは別です。お風呂には、追い焚き機能が備わっています。 トイレは、温水洗浄便座機能付きになります。 女性に嬉しい設備の独立した洗面化粧台があります。 洗濯に便利な設備として、室内洗濯機置場があります。浴室乾燥機も設置されているので、梅雨時の生乾き臭も比較的防ぐことができます。
居室状況
居室には、ロフトが設置されており大規模な収納スペースやセパレートされた寝室として活用できます。 お部屋の床は、フローリングとなっており、エアコンが設置されています。 照明器具が備え付けられており、インターネットも無料で入居後すぐ生活が始められます。 収納スペースとして、玄関にはシューズボックスがあります。
建物設備共用部分
建物の共用スペースに、いざという時の防犯カメラが設置されています。
周辺施設
この物件の学区は、府中第八小学校区・府中第九中学校区です。
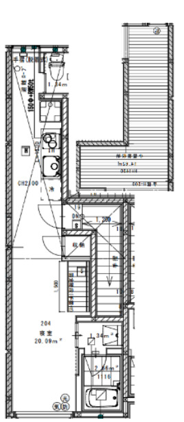
清水が丘の完工年月(2021年12月)築の賃貸アパート ***号室の間取り
間取り:1R
間取詳細:1R
専有面積:33.71㎡
方位:ー
部屋位置:その他
清水が丘の完工年月(2021年12月)築の賃貸アパート ***号室の設備
キッチン
システムキッチン
IHコンロ
バス・トイレ
バス・トイレ別
追い焚き
浴室乾燥機
温水洗浄便座
独立洗面台
収納
シューズボックス
室内設備
エアコン
フローリング
室内洗濯機置場
ロフト付
照明器具付
デザイナーズ
位置・立地
2階以上
最上階
インフラ
インターネット可
都市ガス
建物設備
防犯カメラ
入居条件
オンライン相談可
オンライン内見可
即入居可
ライフステージ
一人暮らしに人気の設備
カップルに人気の設備
家族に人気の設備
夫婦に人気の設備
三世代で人気の設備
こだわり
雨の日でも洗濯したい
洋室で暮らしたい
お得な条件
インターネット無料
清水が丘の完工年月(2021年12月)築の賃貸アパート ***号室の賃貸契約情報
毎月支払う |
家賃9.4万円/月共益費3,000円/月 |
|---|---|
初期費用 |
敷金-礼金1ヶ月 (9.4万円)保証金-敷引き償却金- |
更新料 |
94,000円 |
鍵交換費用 |
33,000円 |
室内清掃費用 |
66,000円 |
駐車場料金 |
- |
損保・ |
借家賠付きの火災保険にご加入いただきます。 |
保証会社 |
加入要 保証会社利用料:初回:総賃料の50% 800円/月 |
契約期間 |
2年 |
入居可能日 |
即入居可 |
フリーレント期間 |
- |
取引形態 |
一般媒介 |
備考 |
別途損保要 |
清水が丘の完工年月(2021年12月)築の賃貸アパート ***号室の建物情報
建物名称 |
清水が丘の完工年月(2021年12月)築の賃貸アパート |
|---|---|
最寄駅 |
|
所在地 |
東京都府中市清水が丘 |
階層 |
2階部分(地上2階建) |
構造 |
木造 |
築年数 |
2021年12月(築5年) |
駐車場 |
- |
小学校学区 |
府中第八小学校 |
中学校学区 |
府中第九中学校 |
- 学区データについて
- ※学区データは必ずしも正確とは限りません。詳細に関しては最寄店舗または各自治体の教育委員会に必ずご確認ください。
無料この物件に問い合わせ
- 清水が丘の完工年月(2021年12月)築の賃貸アパート ***号室

-
9.4万円
(共益費
3,000円)
- 敷
- -
- 礼
- 1ヶ月
- 保
- -
- 償
- -
清水が丘の完工年月(2021年12月)築の賃貸アパート ***号室の物件のお問い合わせ先・取り扱い店舗
ハウスコム 向ヶ丘遊園店
- アクセス
-
小田急小田原線「向ヶ丘遊園駅」南口徒歩1分
- 住所
- 〒214-0014 神奈川県川崎市多摩区登戸2735 中和ビル 1階
- 営業時間
- 10:00~18:00
- 定休日
- なし
- 営業エリア
- 神奈川県川崎市多摩区,神奈川県川崎市高津区,神奈川県川崎市麻生区,東京都世田谷区,東京都狛江市,東京都調布市,東京都町田市,東京都稲城市
- 取引態様
- 賃貸仲介業























