グランソフィア狭山富士見Ⅰ C号室(1階/3LDK)の賃貸物件(賃貸一戸建て)
埼玉県狭山市にあるグランソフィア狭山富士見Ⅰ C号室はシステムキッチン、バス・トイレ別、独立洗面台、室内洗濯機置場、平面駐車場などが特徴です。最寄り駅の西武新宿線狭山市駅から徒歩15分です。グランソフィア狭山富士見Ⅰ C号室の詳細はハウスコム 川越店までお気軽にお問い合わせください!
情報更新日:
次回更新予定日:
※次回更新予定日について:お店側では順次空室確認を行っていますが、次回更新予定日までに空室確認が行えない場合には、この物件情報は自動的に削除されます。
グランソフィア狭山富士見Ⅰ C号室の賃貸物件部屋概要
家賃 |
13.8万円
初期費用を |
|---|---|
共益費 |
-
入居可能時期 |
敷金/礼金 |
1ヶ月 / 1ヶ月 |
保証金/ |
- / - |
最寄駅 |
|
所在地 |
埼玉県狭山市富士見 |
部屋番号 |
C号室 |
間取り |
3LDK(LDK13.8・洋5.2・洋5.6・洋5.8) |
専有面積 |
73.07㎡ |
築年数 |
新築 |
階数 |
1階部分(地上2階建) |
方位・位置 |
南東 / その他 |
物件種別 |
賃貸一戸建て |
構造 |
木造 |
駐車場 |
空有 賃料に含む |
小学校学区 |
富士見小学校 |
中学校学区 |
狭山台中学校 |
他の空き部屋 |
A号室 B号室 |
- 学区データについて
- ※学区データは必ずしも正確とは限りません。詳細に関しては最寄店舗または各自治体の教育委員会に必ずご確認ください。
グランソフィア狭山富士見Ⅰ C号室の特徴
-
一人暮らしに人気の設備

-
カップルに人気の設備

-
家族に人気の設備

-
夫婦に人気の設備

-
三世代で人気の設備

-
外で子どもと遊びたい

-
子どもと一緒に広いお風呂に入りたい

-
雨の日でも洗濯したい

-
洋室で暮らしたい

-
料理が好き

-
推し活グッズを飾りたい

-
ガーデニングが好き

契約条件
この物件は、2人入居もご契約できます。 ペットの飼育もご相談ください。 また、ご契約時に保証人は不要です。
セキュリティ
来客時には居室内のテレビモニターにて訪問者の顔を確認することができます。
室内設備
システムキッチンには、IHコンロが備え付けられています。 お風呂とトイレは別です。お風呂には、追い焚き機能が備わっています。 トイレは、温水洗浄便座機能付きになります。 女性に嬉しい設備のシャワーの付いている洗面化粧台があります。 洗濯に便利な設備として、室内洗濯機置場があります。浴室乾燥機も設置されているので、梅雨時の生乾き臭も比較的防ぐことができます。
居室状況
お部屋の床は、フローリングとなっており、エアコンが設置されています。 照明器具が備え付けられており、入居後すぐ生活が始められます。 収納スペースとして、基本的な居室にクローゼットを設置、玄関にはシューズボックス、また、床下収納といったあれば嬉しい用途別収納があります。
建物設備共用部分
居室外の専有スペースとして、洗濯物を干すなどの用途として利用できるバルコニーがあります。 平面駐車場があり、無料で利用することができます。
周辺施設
この物件の学区は、富士見小学校区・狭山台中学校区です。
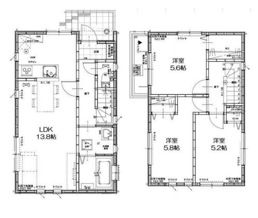
グランソフィア狭山富士見Ⅰ C号室の間取り
間取り:3LDK
間取詳細:3LDK(LDK13.8・洋5.2・洋5.6・洋5.8)
専有面積:73.07㎡
方位:南東
部屋位置:その他
グランソフィア狭山富士見Ⅰ C号室の設備
キッチン
システムキッチン
カウンターキッチン
IHコンロ
バス・トイレ
バス・トイレ別
追い焚き
浴室乾燥機
温水洗浄便座
独立洗面台
シャワー付洗面化粧台
玄関
TVモニタ付インターホン
収納
クローゼット
シューズボックス
床下収納
バルコニー
バルコニー
ルーフバルコニー
室内設備
エアコン
フローリング
室内洗濯機置場
照明器具付
位置・立地
1階
インフラ
プロパンガス
建物設備
駐車場
平面駐車場
入居条件
ペット可・相談
2人入居可
オンライン相談可
オンライン内見可
保証人不要
ライフステージ
一人暮らしに人気の設備
カップルに人気の設備
家族に人気の設備
夫婦に人気の設備
三世代で人気の設備
こだわり
外で子どもと遊びたい
子どもと一緒に広いお風呂に入りたい
雨の日でも洗濯したい
洋室で暮らしたい
趣味
料理が好き
推し活グッズを飾りたい
ガーデニングが好き
お得な条件
駐車場無料
グランソフィア狭山富士見Ⅰ C号室の賃貸契約情報
毎月支払う |
家賃13.8万円/月共益費- |
|---|---|
初期費用 |
敷金1ヶ月 (13.8万円)礼金1ヶ月 (13.8万円)保証金-敷引き償却金- |
更新料 |
138,000円 |
鍵交換費用 |
- |
室内清掃費用 |
- |
ホームマイスター24 |
16,500円 |
駐車場料金 |
空有 賃料に含む |
損保・ |
借家賠付きの火災保険にご加入いただきます。 |
保証会社 |
加入要 保証会社利用料:初回保証料:賃料等の100% 継続保証料:1年毎に賃料の15% |
契約期間 |
2年 |
入居可能日 |
2026年06月上旬 |
フリーレント期間 |
- |
取引形態 |
一般媒介 |
備考 |
短期解約違約金あり(1年未満/1ヶ月分賃料) ペット飼育時:敷金1ヶ月積み増し(頭数・種類は要相談)諸条件の変更の可能性あり 退去時クリーニング費用:115500円 町会費発生時は入居者加入と負担 |
グランソフィア狭山富士見Ⅰ C号室の建物情報
建物名称 |
グランソフィア狭山富士見Ⅰ |
|---|---|
最寄駅 |
|
所在地 |
埼玉県狭山市富士見 |
階層 |
1階部分(地上2階建) |
構造 |
木造 |
築年数 |
新築 |
駐車場 |
空有 賃料に含む |
小学校学区 |
富士見小学校 |
中学校学区 |
狭山台中学校 |
- 学区データについて
- ※学区データは必ずしも正確とは限りません。詳細に関しては最寄店舗または各自治体の教育委員会に必ずご確認ください。
無料この物件に問い合わせ
- グランソフィア狭山富士見Ⅰ C号室

-
13.8万円
(共益費
-)
- 敷
- 1ヶ月
- 礼
- 1ヶ月
- 保
- -
- 償
- -
グランソフィア狭山富士見Ⅰ C号室の物件のお問い合わせ先・取り扱い店舗
ハウスコム 川越店
- アクセス
-
東武東上線「川越駅」東口徒歩3分
- 住所
- 〒350-1122 埼玉県川越市脇田町16−6 岡村ビル 1階
- 営業時間
- 10:00~18:00
- 定休日
- なし
- 営業エリア
- ふじみ野市,坂戸市,川越市,日高市,狭山市,鶴ヶ島市,東松山市,さいたま市、上尾市、富士見市、川島町、秩父方面、寄居町
- 取引態様
- 賃貸仲介業












