中山戸建 1号室(1階/3LDK)の賃貸物件(賃貸一戸建て)
千葉県市川市にある中山戸建 1号室はIHコンロ、TVモニタ付インターホン、和室あり、南向き、駐輪場などが特徴です。最寄り駅の京成本線京成中山駅から徒歩14分です。中山戸建 1号室の詳細はハウスコム 浦安店までお気軽にお問い合わせください!
情報更新日:
次回更新予定日:
※次回更新予定日について:お店側では順次空室確認を行っていますが、次回更新予定日までに空室確認が行えない場合には、この物件情報は自動的に削除されます。
中山戸建 1号室の賃貸物件部屋概要
家賃 |
18.5万円
初期費用を |
|---|---|
共益費 |
-
入居可能時期 |
敷金/礼金 |
2ヶ月 / 1ヶ月 |
保証金/ |
- / - |
最寄駅 |
|
所在地 |
千葉県市川市中山 |
部屋番号 |
1号室 |
間取り |
3LDK(LDK17・洋12・洋12・和6) |
専有面積 |
121.58㎡ |
築年数 |
2001年8月(築25年) |
階数 |
1階部分(地上2階建) |
方位・位置 |
南 / その他 |
物件種別 |
賃貸一戸建て |
構造 |
軽量鉄骨 |
駐車場 |
- |
小学校学区 |
中山小学校 |
中学校学区 |
第四中学校 |
他の空き部屋 |
ー |
- 学区データについて
- ※学区データは必ずしも正確とは限りません。詳細に関しては最寄店舗または各自治体の教育委員会に必ずご確認ください。
中山戸建 1号室の特徴
-
一人暮らしに人気の設備

-
カップルに人気の設備

-
家族に人気の設備

-
夫婦に人気の設備

-
三世代で人気の設備

-
収納重視

-
外で子どもと遊びたい

-
雨の日でも洗濯したい

-
洋室で暮らしたい

-
持ち物をスッキリ隠す収納部屋

-
ガーデニングが好き

契約条件
この物件は、2人入居もご契約できます。 また、ご契約時に保証人は不要です。
セキュリティ
来客時には居室内のテレビモニターにて訪問者の顔を確認することができます。
室内設備
システムキッチンには、IHコンロが備え付けられています。 お風呂とトイレは別です。お風呂には、追い焚き機能が備わっています。 トイレは、温水洗浄便座機能付きになります。 女性に嬉しい設備のシャワーの付いている洗面化粧台があります。 洗濯に便利な設備として、室内洗濯機置場があります。
居室状況
居室には、和室の居室もあり、子育てやリラックススペースとしての利用もできます。 お部屋の床は、フローリングとなっており、エアコンが設置されています。 収納スペースとして、基本的な居室にクローゼットを設置、玄関にはシューズボックスがあります。
建物設備共用部分
居室外の専有スペースとして、洗濯物を干すなどの用途として利用できるバルコニーがあります。 駐輪場が利用できます。
周辺施設
この物件の学区は、中山小学校区・第四中学校区です。
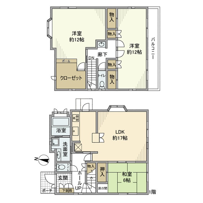
中山戸建 1号室の間取り
間取り:3LDK
間取詳細:3LDK(LDK17・洋12・洋12・和6)
専有面積:121.58㎡
方位:南
部屋位置:その他
中山戸建 1号室の設備
キッチン
システムキッチン
IHコンロ
バス・トイレ
バス・トイレ別
追い焚き
温水洗浄便座
独立洗面台
シャワー付洗面化粧台
玄関
TVモニタ付インターホン
収納
クローゼット
シューズボックス
全居室収納
バルコニー
バルコニー
ルーフバルコニー
室内設備
エアコン
フローリング
室内洗濯機置場
和室あり
位置・立地
1階
南向き
建物設備
駐輪場
入居条件
2人入居可
オンライン相談可
オンライン内見可
保証人不要
ライフステージ
一人暮らしに人気の設備
カップルに人気の設備
家族に人気の設備
夫婦に人気の設備
三世代で人気の設備
こだわり
収納重視
外で子どもと遊びたい
雨の日でも洗濯したい
洋室で暮らしたい
持ち物をスッキリ隠す収納部屋
趣味
ガーデニングが好き
中山戸建 1号室の賃貸契約情報
毎月支払う |
家賃18.5万円/月共益費- |
|---|---|
初期費用 |
敷金2ヶ月 (37万円)礼金1ヶ月 (18.5万円)保証金-敷引き償却金- |
更新料 |
- |
鍵交換費用 |
- |
室内清掃費用 |
- |
駐車場料金 |
- |
損保・ |
借家賠付きの火災保険にご加入いただきます。 |
保証会社 |
|
契約期間 |
定期借家 2年 |
入居可能日 |
2026年03月下旬 |
フリーレント期間 |
- |
取引形態 |
一般媒介 |
備考 |
短期解約違約金あり。 駐輪場:有料 |
中山戸建 1号室の建物情報
建物名称 |
中山戸建 |
|---|---|
最寄駅 |
|
所在地 |
千葉県市川市中山 |
階層 |
1階部分(地上2階建) |
構造 |
軽量鉄骨 |
築年数 |
2001年8月(築25年) |
駐車場 |
- |
小学校学区 |
中山小学校 |
中学校学区 |
第四中学校 |
- 学区データについて
- ※学区データは必ずしも正確とは限りません。詳細に関しては最寄店舗または各自治体の教育委員会に必ずご確認ください。
無料この物件に問い合わせ
- 中山戸建 1号室

-
18.5万円
(共益費
-)
- 敷
- 2ヶ月
- 礼
- 1ヶ月
- 保
- -
- 償
- -
中山戸建 1号室の物件のお問い合わせ先・取り扱い店舗
ハウスコム 浦安店
- アクセス
-
東京メトロ 東西線「浦安駅」徒歩1分
- 住所
- 〒279-0002 千葉県浦安市北栄1丁目16−12 宇田川ビル 1F
- 営業時間
- 10:00~18:00
- 定休日
- なし
- 営業エリア
- 浦安市・市川市・江戸川区・江東区
- 取引態様
- 賃貸仲介業













