ルヴァン雪谷大塚 106号室(1階/1K)の賃貸物件(賃貸マンション)
東京都大田区にあるルヴァン雪谷大塚 106号室はTVモニタ付インターホン、シューズボックス、ルーフバルコニー、CS、防犯カメラなどが特徴です。最寄り駅の東急池上線雪が谷大塚駅から徒歩8分です。ルヴァン雪谷大塚 106号室の詳細はハウスコム 自由が丘店までお気軽にお問い合わせください!
情報更新日:
次回更新予定日:
※次回更新予定日について:お店側では順次空室確認を行っていますが、次回更新予定日までに空室確認が行えない場合には、この物件情報は自動的に削除されます。
ルヴァン雪谷大塚 106号室の賃貸物件部屋概要
家賃 |
9.2万円
初期費用を |
|---|---|
共益費 |
8,000円
入居可能時期 |
敷金/礼金 |
92,000円 / 184,000円 |
保証金/ |
- / - |
最寄駅 |
|
所在地 |
東京都大田区雪谷大塚町 |
部屋番号 |
106号室 |
間取り |
1K(洋6.8・K2) |
専有面積 |
25.06㎡ |
築年数 |
2019年1月(築8年) |
階数 |
1階部分(地上5階建) |
方位・位置 |
南東 / その他 |
物件種別 |
賃貸マンション |
構造 |
RC |
駐車場 |
無 |
小学校学区 |
調布大塚小学校 |
中学校学区 |
石川台中学校 |
他の空き部屋 |
106号室 ***号室 403号室 ***号室 |
- 学区データについて
- ※学区データは必ずしも正確とは限りません。詳細に関しては最寄店舗または各自治体の教育委員会に必ずご確認ください。
ルヴァン雪谷大塚 106号室の特徴
セキュリティ
この物件の建物には、オートロックや防犯カメラや宅配ボックスが設置されており、来客時には居室内のテレビモニターにて訪問者の顔を確認することができます。
室内設備
システムキッチンには、2つ以上のガスコンロが備え付けられています。 お風呂とトイレは別です。お風呂には、追い焚き機能が備わっています。 トイレは、温水洗浄便座機能付きになります。 洗濯に便利な設備として、室内洗濯機置場があります。浴室乾燥機も設置されているので、梅雨時の生乾き臭も比較的防ぐことができます。
居室状況
お部屋の床は、フローリングとなっており、エアコンが設置されています。 収納スペースとして、基本的な居室にクローゼットを設置、玄関にはシューズボックスがあります。
建物設備共用部分
居室外の専有スペースとして、洗濯物を干すなどの用途として利用できるバルコニーがあります。 建物の共用スペースに、日々の出入に便利なエレベーターや、いざという時の防犯カメラや、急な外出や不在がちのご家庭の荷物受け取りに便利な宅配ボックスが設置されています。
周辺施設
この物件の学区は、調布大塚小学校区・石川台中学校区です。
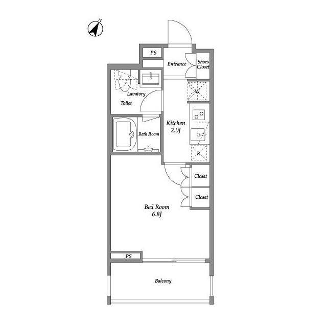
ルヴァン雪谷大塚 106号室の間取り
間取り:1K
間取詳細:1K(洋6.8・K2)
専有面積:25.06㎡
方位:南東
部屋位置:その他
ルヴァン雪谷大塚 106号室の設備
キッチン
システムキッチン
ガスコンロ
ガスコンロ二口以上
バス・トイレ
バス・トイレ別
追い焚き
浴室乾燥機
温水洗浄便座
玄関
TVモニタ付インターホン
オートロック
宅配ボックス
収納
クローゼット
シューズボックス
バルコニー
バルコニー
ルーフバルコニー
室内設備
エアコン
フローリング
室内洗濯機置場
位置・立地
1階
インフラ
インターネット可
CATV
BS
CS
都市ガス
建物設備
エレベーター
防犯カメラ
入居条件
オンライン相談可
オンライン内見可
即入居可
ライフステージ
一人暮らしに人気の設備
カップルに人気の設備
家族に人気の設備
夫婦に人気の設備
三世代で人気の設備
こだわり
外で子どもと遊びたい
雨の日でも洗濯したい
洋室で暮らしたい
趣味
ガーデニングが好き
ルヴァン雪谷大塚 106号室の賃貸契約情報
毎月支払う |
家賃9.2万円/月共益費8,000円/月 |
|---|---|
初期費用 |
敷金92,000円礼金184,000円保証金-敷引き償却金- |
更新料 |
92,000円 |
鍵交換費用 |
- |
室内清掃費用 |
- |
鍵交換代 |
44,000円 |
駐車場料金 |
無 |
損保・ |
借家賠付きの火災保険にご加入いただきます。 |
保証会社 |
加入要 保証会社利用料:レジデンシャルパートナーズ 保証料:賃料等の40%(最低2万)、月額手数料:賃料等の1%(更新料無) |
契約期間 |
2年 |
入居可能日 |
即入居可 |
フリーレント期間 |
- |
取引形態 |
一般媒介 |
備考 |
礼金0ヵ月(1年以内解約時賃料1ヶ月分違約金有) 退去時清掃費38500円 エアコン清掃費11000円 法人契約等保証会社利用不可の場合:敷金2ヶ月 SOHO利用不可 解約予告:2ヶ月前 |
ルヴァン雪谷大塚 106号室の建物情報
建物名称 |
ルヴァン雪谷大塚 |
|---|---|
最寄駅 |
|
所在地 |
東京都大田区雪谷大塚町 |
階層 |
1階部分(地上5階建) |
構造 |
RC |
築年数 |
2019年1月(築8年) |
駐車場 |
無 |
小学校学区 |
調布大塚小学校 |
中学校学区 |
石川台中学校 |
- 学区データについて
- ※学区データは必ずしも正確とは限りません。詳細に関しては最寄店舗または各自治体の教育委員会に必ずご確認ください。
無料この物件に問い合わせ
- ルヴァン雪谷大塚 106号室

-
9.2万円
(共益費
8,000円)
- 敷
- 92,000円
- 礼
- 184,000円
- 保
- -
- 償
- -
ルヴァン雪谷大塚 106号室の物件のお問い合わせ先・取り扱い店舗
ハウスコム 自由が丘店
- アクセス
-
東急東横線「自由が丘駅」徒歩3分
東急大井町線「自由が丘駅」徒歩3分
- 住所
- 〒152-0035 東京都目黒区自由が丘1丁目14ー14 原田ビル1階
- 営業時間
- 10:00~18:00
- 定休日
- なし
- 営業エリア
- 世田谷区,大田区,目黒区
- 取引態様
- 賃貸仲介業





















