カーサケイワイNo.2 403号室(4階/2LDK)の賃貸物件(賃貸マンション)
東京都荒川区にあるカーサケイワイNo.2 403号室はシステムキッチン、ガスコンロ、バス・トイレ別、角部屋、駐輪場などが特徴です。最寄り駅の東京メトロ 日比谷線三ノ輪駅から徒歩7分です。カーサケイワイNo.2 403号室の詳細はハウスコム 日暮里店までお気軽にお問い合わせください!
情報更新日:
次回更新予定日:
※次回更新予定日について:お店側では順次空室確認を行っていますが、次回更新予定日までに空室確認が行えない場合には、この物件情報は自動的に削除されます。
カーサケイワイNo.2 403号室の賃貸物件部屋概要
家賃 |
18万円
初期費用を |
|---|---|
共益費 |
10,000円
入居可能時期 |
敷金/礼金 |
1ヶ月 / 1ヶ月 |
保証金/ |
- / - |
最寄駅 |
|
所在地 |
東京都荒川区南千住 |
部屋番号 |
403号室 |
間取り |
2LDK(LDK15・洋8・洋4.5) |
専有面積 |
67.00㎡ |
築年数 |
1994年3月(築32年) |
階数 |
4階部分(地上4階建) |
方位・位置 |
南東 / 角部屋 |
物件種別 |
賃貸マンション |
構造 |
RC |
駐車場 |
- |
小学校学区 |
瑞光小学校 |
中学校学区 |
第一中学校 |
他の空き部屋 |
ー |
- 学区データについて
- ※学区データは必ずしも正確とは限りません。詳細に関しては最寄店舗または各自治体の教育委員会に必ずご確認ください。
カーサケイワイNo.2 403号室の特徴
契約条件
この物件は、2人入居もご契約できます。 また、ご契約時に保証人は不要です。
セキュリティ
この物件の建物には、オートロックが設置されております。
室内設備
システムキッチンには、2つ以上のガスコンロが備え付けられています。 お風呂とトイレは別です。お風呂には、追い焚き機能が備わっています。 トイレは、温水洗浄便座機能付きになります。 女性に嬉しい設備の独立した洗面化粧台があります。 洗濯に便利な設備として、室内洗濯機置場があります。
居室状況
お部屋の床は、フローリングとなっており、エアコンが設置されています。 収納スペースとして、基本的な居室にクローゼットを設置、玄関にはシューズボックスがあります。
建物設備共用部分
居室外の専有スペースとして、洗濯物を干すなどの用途として利用できるバルコニーがあります。 駐輪場が利用できます。
周辺施設
この物件の学区は、瑞光小学校区・第一中学校区です。
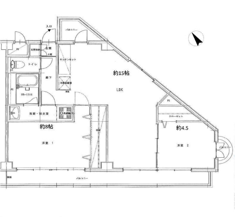
カーサケイワイNo.2 403号室の間取り
間取り:2LDK
間取詳細:2LDK(LDK15・洋8・洋4.5)
専有面積:67.00㎡
方位:南東
部屋位置:角部屋
カーサケイワイNo.2 403号室の設備
キッチン
システムキッチン
ガスコンロ
ガスコンロ二口以上
バス・トイレ
バス・トイレ別
追い焚き
温水洗浄便座
独立洗面台
玄関
オートロック
収納
クローゼット
シューズボックス
バルコニー
バルコニー
ルーフバルコニー
室内設備
エアコン
フローリング
室内洗濯機置場
位置・立地
2階以上
最上階
角部屋
インフラ
インターネット可
都市ガス
建物設備
駐輪場
入居条件
2人入居可
オンライン相談可
オンライン内見可
保証人不要
即入居可
ライフステージ
一人暮らしに人気の設備
カップルに人気の設備
家族に人気の設備
夫婦に人気の設備
三世代で人気の設備
こだわり
外で子どもと遊びたい
雨の日でも洗濯したい
洋室で暮らしたい
趣味
ガーデニングが好き
カーサケイワイNo.2 403号室の賃貸契約情報
毎月支払う |
家賃18万円/月共益費10,000円/月 |
|---|---|
初期費用 |
敷金1ヶ月 (18万円)礼金1ヶ月 (18万円)保証金-敷引き償却金- |
更新料 |
270,000円 |
鍵交換費用 |
33,000円 |
室内清掃費用 |
- |
24時間サポート |
19,800円 |
駐車場料金 |
- |
損保・ |
借家賠付きの火災保険にご加入いただきます。 |
保証会社 |
加入要 保証会社利用料:初回保証料:賃料総額の80%、継続保証料:賃料総額の1.5%(月額) |
契約期間 |
2年 |
入居可能日 |
即入居可 |
フリーレント期間 |
- |
取引形態 |
一般媒介 |
備考 |
短期解約違約金有 |
カーサケイワイNo.2 403号室の建物情報
建物名称 |
カーサケイワイNo.2 |
|---|---|
最寄駅 |
|
所在地 |
東京都荒川区南千住 |
階層 |
4階部分(地上4階建) |
構造 |
RC |
築年数 |
1994年3月(築32年) |
駐車場 |
- |
小学校学区 |
瑞光小学校 |
中学校学区 |
第一中学校 |
- 学区データについて
- ※学区データは必ずしも正確とは限りません。詳細に関しては最寄店舗または各自治体の教育委員会に必ずご確認ください。
無料この物件に問い合わせ
- カーサケイワイNo.2 403号室

-
18万円
(共益費
10,000円)
- 敷
- 1ヶ月
- 礼
- 1ヶ月
- 保
- -
- 償
- -
カーサケイワイNo.2 403号室の物件のお問い合わせ先・取り扱い店舗
ハウスコム 日暮里店
- アクセス
-
山手線「日暮里駅」東口徒歩1分
- 住所
- 〒116-0013 東京都荒川区西日暮里2丁目25−1 ステーションガーデンタワー 1階
- 営業時間
- 10:00~18:00
- 定休日
- なし
- 営業エリア
- 荒川区、台東区、文京区、足立区、葛飾区、墨田区、江東区、江戸川区、北区、豊島区
- 取引態様
- 賃貸仲介業



















