メインステージ西荻窪Ⅱ 1101号室(11階/1K)の賃貸物件(賃貸マンション)
東京都杉並区にあるメインステージ西荻窪Ⅱ 1101号室はオートロック、クローゼット、フローリング、駐輪場、オンライン内見可などが特徴です。最寄り駅の中央本線(JR東日本)西荻窪駅から徒歩4分です。メインステージ西荻窪Ⅱ 1101号室の詳細はハウスコム 武蔵境店までお気軽にお問い合わせください!
情報更新日:
次回更新予定日:
※次回更新予定日について:お店側では順次空室確認を行っていますが、次回更新予定日までに空室確認が行えない場合には、この物件情報は自動的に削除されます。
メインステージ西荻窪Ⅱ 1101号室の賃貸物件部屋概要
家賃 |
14万円
初期費用を |
|---|---|
共益費 |
20,000円
入居可能時期 |
敷金/礼金 |
- / 1ヶ月 |
保証金/ |
- / - |
最寄駅 |
|
所在地 |
東京都杉並区西荻南 |
部屋番号 |
1101号室 |
間取り |
1K(洋9.5・K2) |
専有面積 |
32.86㎡ |
築年数 |
2008年3月(築18年) |
階数 |
11階部分(地上15階建) |
方位・位置 |
南西 / 角部屋 |
物件種別 |
賃貸マンション |
構造 |
RC |
駐車場 |
- |
小学校学区 |
高井戸第四小学校 |
中学校学区 |
神明中学校 |
他の空き部屋 |
ー |
- 学区データについて
- ※学区データは必ずしも正確とは限りません。詳細に関しては最寄店舗または各自治体の教育委員会に必ずご確認ください。
メインステージ西荻窪Ⅱ 1101号室の特徴
契約条件
ご契約時に保証人は不要です。 敷金が無料なため、初期費用が比較的安くなる傾向にあります。
セキュリティ
この物件の建物には、オートロックや宅配ボックスが設置されており、来客時には居室内のテレビモニターにて訪問者の顔を確認することができます。
室内設備
システムキッチンが備え付けられています。 トイレは、温水洗浄便座機能付きになります。 女性に嬉しい設備の独立した洗面化粧台があります。 洗濯に便利な設備として、室内洗濯機置場があります。浴室乾燥機も設置されているので、梅雨時の生乾き臭も比較的防ぐことができます。
居室状況
お部屋の床は、フローリングとなっており、エアコンが設置されています。 収納スペースとして、基本的な居室にクローゼットを設置、玄関にはシューズボックスがあります。
建物設備共用部分
居室外の専有スペースとして、洗濯物を干すなどの用途として利用できるバルコニーがあります。 建物の共用スペースに、日々の出入に便利なエレベーターや、急な外出や不在がちのご家庭の荷物受け取りに便利な宅配ボックスが設置されています。 駐輪場が利用できます。
周辺施設
この物件の学区は、高井戸第四小学校区・神明中学校区です。
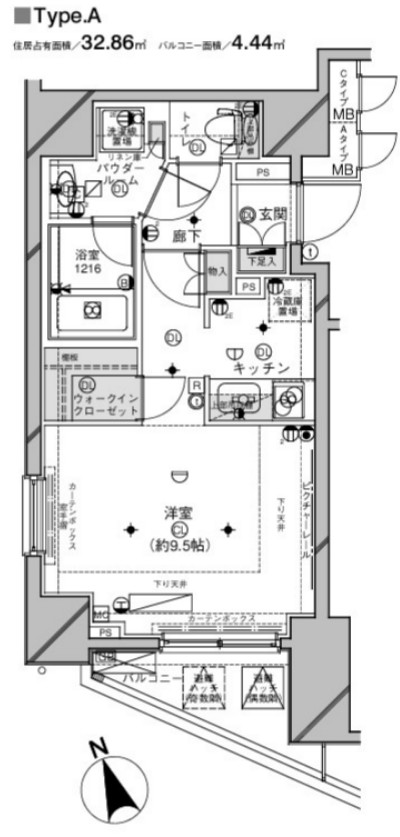
メインステージ西荻窪Ⅱ 1101号室の間取り
間取り:1K
間取詳細:1K(洋9.5・K2)
専有面積:32.86㎡
方位:南西
部屋位置:角部屋
メインステージ西荻窪Ⅱ 1101号室の設備
キッチン
システムキッチン
バス・トイレ
バス・トイレ別
浴室乾燥機
温水洗浄便座
独立洗面台
玄関
TVモニタ付インターホン
オートロック
宅配ボックス
収納
クローゼット
シューズボックス
バルコニー
バルコニー
ルーフバルコニー
室内設備
エアコン
フローリング
室内洗濯機置場
位置・立地
2階以上
角部屋
インフラ
インターネット可
CATV
都市ガス
建物設備
エレベーター
駐輪場
入居条件
オンライン相談可
オンライン内見可
保証人不要
ライフステージ
一人暮らしに人気の設備
カップルに人気の設備
家族に人気の設備
夫婦に人気の設備
三世代で人気の設備
こだわり
外で子どもと遊びたい
雨の日でも洗濯したい
洋室で暮らしたい
趣味
ガーデニングが好き
メインステージ西荻窪Ⅱ 1101号室の賃貸契約情報
毎月支払う |
家賃14万円/月共益費20,000円/月 |
|---|---|
初期費用 |
敷金-礼金1ヶ月 (14万円)保証金-敷引き償却金- |
更新料 |
140,000円 |
鍵交換費用 |
29,700円 |
室内清掃費用 |
- |
AMLクラブサポート費用 |
16,500円 |
駐車場料金 |
- |
損保・ |
借家賠付きの火災保険にご加入いただきます。 |
保証会社 |
加入要 保証会社利用料:必須 家賃総額より50%~ |
契約期間 |
2年 |
入居可能日 |
2026年03月下旬 |
フリーレント期間 |
- |
取引形態 |
一般媒介 |
備考 |
- |
メインステージ西荻窪Ⅱ 1101号室の建物情報
建物名称 |
メインステージ西荻窪Ⅱ |
|---|---|
最寄駅 |
|
所在地 |
東京都杉並区西荻南 |
階層 |
11階部分(地上15階建) |
構造 |
RC |
築年数 |
2008年3月(築18年) |
駐車場 |
- |
小学校学区 |
高井戸第四小学校 |
中学校学区 |
神明中学校 |
- 学区データについて
- ※学区データは必ずしも正確とは限りません。詳細に関しては最寄店舗または各自治体の教育委員会に必ずご確認ください。
無料この物件に問い合わせ
- メインステージ西荻窪Ⅱ 1101号室

-
14万円
(共益費
20,000円)
- 敷
- -
- 礼
- 1ヶ月
- 保
- -
- 償
- -
メインステージ西荻窪Ⅱ 1101号室の物件のお問い合わせ先・取り扱い店舗
ハウスコム 武蔵境店
- アクセス
-
中央本線(JR東日本)「武蔵境駅」徒歩1分
- 住所
- 〒180-0022 東京都武蔵野市境2丁目2−3 渡辺ビル 1階
- 営業時間
- 10:00~18:00
- 定休日
- 水曜日
- 営業エリア
- 武蔵野市・三鷹市・小金井市・国分寺市・西東京市・小平市・練馬区・杉並区・府中市・調布市・国立市・立川市
- 取引態様
- 賃貸仲介業




























