レグノ・セレーノ 604号室(6階/1R)の賃貸物件(賃貸マンション)
東京都新宿区にあるレグノ・セレーノ 604号室はバス・トイレ別、独立洗面台、ルーフバルコニー、エレベーター、オンライン相談可などが特徴です。最寄り駅の総武線・中央線各駅停車大久保駅から徒歩3分です。レグノ・セレーノ 604号室の詳細はハウスコム 新宿店までお気軽にお問い合わせください!
情報更新日:
次回更新予定日:
※次回更新予定日について:お店側では順次空室確認を行っていますが、次回更新予定日までに空室確認が行えない場合には、この物件情報は自動的に削除されます。
レグノ・セレーノ 604号室の賃貸物件部屋概要
家賃 |
12.9万円
初期費用を |
|---|---|
共益費 |
10,000円
入居可能時期 |
敷金/礼金 |
1ヶ月 / 1ヶ月 |
保証金/ |
- / - |
最寄駅 |
|
所在地 |
東京都新宿区北新宿 |
部屋番号 |
604号室 |
間取り |
1R(洋8) |
専有面積 |
28.14㎡ |
築年数 |
2008年4月(築18年) |
階数 |
6階部分(地上24階建) |
方位・位置 |
南東 / その他 |
物件種別 |
賃貸マンション |
構造 |
SRC |
駐車場 |
- |
小学校学区 |
淀橋第四小学校 |
中学校学区 |
新宿西戸山中学校 |
他の空き部屋 |
220号室 |
- 学区データについて
- ※学区データは必ずしも正確とは限りません。詳細に関しては最寄店舗または各自治体の教育委員会に必ずご確認ください。
レグノ・セレーノ 604号室の特徴
-
一人暮らしに人気の設備

-
カップルに人気の設備

-
家族に人気の設備

-
夫婦に人気の設備

-
三世代で人気の設備

-
外で子どもと遊びたい

-
身だしなみに気をつかいたい

-
雨の日でも洗濯したい

-
洋室で暮らしたい

-
ガーデニングが好き

契約条件
この物件は、外国籍の方もご相談の上、ご契約できます。
セキュリティ
この物件の建物には、オートロックが設置されており、来客時には居室内のテレビモニターにて訪問者の顔を確認することができます。
室内設備
システムキッチンには、ガスコンロが備え付けられています。 女性に嬉しい設備の独立した洗面化粧台があります。 洗濯に便利な設備として、室内洗濯機置場があります。
居室状況
お部屋の床は、フローリングとなっており、エアコンが設置されています。 収納スペースとして、基本的な居室にクローゼットを設置、玄関にはシューズボックスがあります。
建物設備共用部分
居室外の専有スペースとして、洗濯物を干すなどの用途として利用できるバルコニーがあります。 建物の共用スペースに、日々の出入に便利なエレベーターが設置されています。 駐輪場が利用できます。
周辺施設
この物件の学区は、淀橋第四小学校区・新宿西戸山中学校区です。
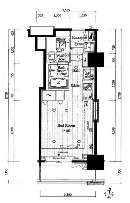
レグノ・セレーノ 604号室の間取り
間取り:1R
間取詳細:1R(洋8)
専有面積:28.14㎡
方位:南東
部屋位置:その他
レグノ・セレーノ 604号室の設備
キッチン
システムキッチン
ガスコンロ
バス・トイレ
バス・トイレ別
独立洗面台
玄関
TVモニタ付インターホン
オートロック
収納
クローゼット
シューズボックス
バルコニー
バルコニー
ルーフバルコニー
室内設備
エアコン
フローリング
室内洗濯機置場
位置・立地
2階以上
建物設備
エレベーター
駐輪場
分譲賃貸
入居条件
外国人可・相談
オンライン相談可
オンライン内見可
ライフステージ
一人暮らしに人気の設備
カップルに人気の設備
家族に人気の設備
夫婦に人気の設備
三世代で人気の設備
こだわり
外で子どもと遊びたい
身だしなみに気をつかいたい
雨の日でも洗濯したい
洋室で暮らしたい
趣味
ガーデニングが好き
レグノ・セレーノ 604号室の賃貸契約情報
毎月支払う |
家賃12.9万円/月共益費10,000円/月 |
|---|---|
初期費用 |
敷金1ヶ月 (12.9万円)礼金1ヶ月 (12.9万円)保証金-敷引き償却金- |
更新料 |
- |
鍵交換費用 |
- |
室内清掃費用 |
- |
駐車場料金 |
- |
損保・ |
借家賠付きの火災保険にご加入いただきます。 |
保証会社 |
加入要 保証会社利用料:初回保証料:月額総額の50% 保証会社更新料:15,000円/1年毎 月額保証料:月額総額の1.3% |
契約期間 |
- |
入居可能日 |
2026年03月中旬 |
フリーレント期間 |
- |
取引形態 |
一般媒介 |
備考 |
?MEIKOライフサポート倶楽部3300円 / 月 法人契約、事務所利用の場合:24時間安心サポート料 16500円/2年毎に変更 ?オプション:MEIKOライフサポートPlus (見守りサービス)4400円 / 月65歳以上は必須 [一時金] 鍵交換費用:33000円 契約事務手数料:16500円 [備考]退去時クリーニング費用:61160円 敷金退去時償却 短期解約違約金有 |
レグノ・セレーノ 604号室の建物情報
建物名称 |
レグノ・セレーノ |
|---|---|
最寄駅 |
|
所在地 |
東京都新宿区北新宿 |
階層 |
6階部分(地上24階建) |
構造 |
SRC |
築年数 |
2008年4月(築18年) |
駐車場 |
- |
小学校学区 |
淀橋第四小学校 |
中学校学区 |
新宿西戸山中学校 |
- 学区データについて
- ※学区データは必ずしも正確とは限りません。詳細に関しては最寄店舗または各自治体の教育委員会に必ずご確認ください。
無料この物件に問い合わせ
- レグノ・セレーノ 604号室

-
12.9万円
(共益費
10,000円)
- 敷
- 1ヶ月
- 礼
- 1ヶ月
- 保
- -
- 償
- -
レグノ・セレーノ 604号室の物件のお問い合わせ先・取り扱い店舗
ハウスコム 新宿店
- アクセス
-
山手線「新宿駅」徒歩1分
- 住所
- 〒160-0022 東京都新宿区新宿3-36-2 新宿キリンビル3階
- 営業時間
- 10:00~18:00
- 定休日
- 水曜日(12月25日~1月3日まで年末年始休業)
- 営業エリア
- 主に新宿区・渋谷区(その他の地域もご紹介可能です)
- 取引態様
- 賃貸仲介業


