プライムガーデン若木 516号室(5階/1LDK)の賃貸物件(賃貸マンション)
東京都板橋区にあるプライムガーデン若木 516号室は独立洗面台、室内洗濯機置場、防犯カメラ、駐輪場、2人入居可などが特徴です。最寄り駅の東武東上線東武練馬駅から徒歩10分です。プライムガーデン若木 516号室の詳細はハウスコム 成増店までお気軽にお問い合わせください!
情報更新日:
次回更新予定日:
※次回更新予定日について:お店側では順次空室確認を行っていますが、次回更新予定日までに空室確認が行えない場合には、この物件情報は自動的に削除されます。
プライムガーデン若木 516号室の賃貸物件部屋概要
家賃 |
14万円
初期費用を |
|---|---|
共益費 |
15,000円
入居可能時期 |
敷金/礼金 |
- / - |
保証金/ |
- / - |
最寄駅 |
|
所在地 |
東京都板橋区若木 |
部屋番号 |
516号室 |
間取り |
1LDK(LDK9.8・洋5.3・S4.8) |
専有面積 |
35.97㎡ |
築年数 |
2024年3月(築2年) |
階数 |
5階部分(地上5階建) |
方位・位置 |
西 / その他 |
物件種別 |
賃貸マンション |
構造 |
RC |
駐車場 |
- |
小学校学区 |
若木小学校 |
中学校学区 |
中台中学校 |
他の空き部屋 |
0116号室 0119号室 0220号室 0221号室 ***号室 0312号室 0414号室 0419号室 0421号室 0509号室 0522号室 0526号室 506号室 519号室 |
- 学区データについて
- ※学区データは必ずしも正確とは限りません。詳細に関しては最寄店舗または各自治体の教育委員会に必ずご確認ください。
プライムガーデン若木 516号室の特徴
-
一人暮らしに人気の設備

-
カップルに人気の設備

-
家族に人気の設備

-
夫婦に人気の設備

-
三世代で人気の設備

-
セキュリティ対策重視

-
外で子どもと遊びたい

-
雨の日でも洗濯したい

-
洋室で暮らしたい

-
ガーデニングが好き

契約条件
この物件は、2人入居もご契約できます。 ペットの飼育もご相談ください。 敷金と礼金が無料なため、初期費用が比較的安くなる傾向にあります。
セキュリティ
この物件の建物には、オートロックや防犯カメラや宅配ボックスが設置されており、来客時には居室内のテレビモニターにて訪問者の顔を確認することができます。
室内設備
システムキッチンには、ガスコンロが備え付けられています。 トイレは、温水洗浄便座機能付きになります。 女性に嬉しい設備の独立した洗面化粧台があります。 洗濯に便利な設備として、室内洗濯機置場があります。浴室乾燥機も設置されているので、梅雨時の生乾き臭も比較的防ぐことができます。
居室状況
お部屋の床は、フローリングとなっており、エアコンが設置されています。 収納スペースとして、基本的な居室にクローゼットを設置、玄関にはシューズボックスがあります。
建物設備共用部分
居室外の専有スペースとして、洗濯物を干すなどの用途として利用できるバルコニーがあります。 建物の共用スペースに、日々の出入に便利なエレベーターや、いざという時の防犯カメラや、急な外出や不在がちのご家庭の荷物受け取りに便利な宅配ボックスが設置されています。 駐輪場、バイク置き場が利用できます。
周辺施設
この物件の学区は、若木小学校区・中台中学校区です。
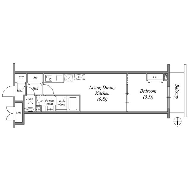
プライムガーデン若木 516号室の間取り
間取り:1LDK
間取詳細:1LDK(LDK9.8・洋5.3・S4.8)
専有面積:35.97㎡
方位:西
部屋位置:その他
プライムガーデン若木 516号室の設備
キッチン
システムキッチン
ガスコンロ
バス・トイレ
バス・トイレ別
浴室乾燥機
温水洗浄便座
独立洗面台
玄関
TVモニタ付インターホン
オートロック
宅配ボックス
収納
クローゼット
シューズボックス
バルコニー
バルコニー
ルーフバルコニー
室内設備
エアコン
フローリング
室内洗濯機置場
位置・立地
2階以上
最上階
インフラ
インターネット可
都市ガス
建物設備
エレベーター
防犯カメラ
駐輪場
バイク置き場
入居条件
ペット可・相談
2人入居可
オンライン相談可
オンライン内見可
ライフステージ
一人暮らしに人気の設備
カップルに人気の設備
家族に人気の設備
夫婦に人気の設備
三世代で人気の設備
こだわり
セキュリティ対策重視
外で子どもと遊びたい
雨の日でも洗濯したい
洋室で暮らしたい
趣味
ガーデニングが好き
プライムガーデン若木 516号室の賃貸契約情報
毎月支払う |
家賃14万円/月共益費15,000円/月 |
|---|---|
初期費用 |
敷金-礼金-保証金-敷引き償却金- |
更新料 |
140,000円 |
鍵交換費用 |
- |
室内清掃費用 |
- |
退去時RC代 |
55,000円 |
カギ費用 |
27,500円 |
駐車場料金 |
- |
損保・ |
借家賠付きの火災保険にご加入いただきます。 |
保証会社 |
加入要 保証会社利用料:株式会社エポスカード(東京) ROOM iD(個人)保証料:保証人有30% 無40% (法人)40% |
契約期間 |
2年 |
入居可能日 |
相談 |
フリーレント期間 |
- |
取引形態 |
一般媒介 |
備考 |
1年未満解約違約金:FRと同月分(FR無又は1ヶ月未満は1ヶ月分) |
プライムガーデン若木 516号室の建物情報
建物名称 |
プライムガーデン若木 |
|---|---|
最寄駅 |
|
所在地 |
東京都板橋区若木 |
階層 |
5階部分(地上5階建) |
構造 |
RC |
築年数 |
2024年3月(築2年) |
駐車場 |
- |
小学校学区 |
若木小学校 |
中学校学区 |
中台中学校 |
- 学区データについて
- ※学区データは必ずしも正確とは限りません。詳細に関しては最寄店舗または各自治体の教育委員会に必ずご確認ください。
無料この物件に問い合わせ
- プライムガーデン若木 516号室

-
14万円
(共益費
15,000円)
- 敷
- -
- 礼
- -
- 保
- -
- 償
- -
プライムガーデン若木 516号室の物件のお問い合わせ先・取り扱い店舗
ハウスコム 成増店
- アクセス
-
東武東上線「成増駅」北口徒歩1分
- 住所
- 〒175-0094 東京都板橋区成増3丁目3−11 成増アクト2 1F
- 営業時間
- 10:00~18:00
- 定休日
- なし
- 営業エリア
- 板橋区,練馬区,和光市,朝霞市,新座市,志木市
- 取引態様
- 賃貸仲介業


















