ヴィナシス金町タワーレジデンス 805号室(8階/1LDK)の賃貸物件(賃貸マンション)
東京都葛飾区にあるヴィナシス金町タワーレジデンス 805号室はシステムキッチン、ルーフバルコニー、フローリング、室内洗濯機置場、2人入居可などが特徴です。最寄り駅の常磐線各駅停車(千代田線直通)金町駅から徒歩2分です。ヴィナシス金町タワーレジデンス 805号室の詳細はハウスコム 亀有店までお気軽にお問い合わせください!
情報更新日:
次回更新予定日:
※次回更新予定日について:お店側では順次空室確認を行っていますが、次回更新予定日までに空室確認が行えない場合には、この物件情報は自動的に削除されます。
ヴィナシス金町タワーレジデンス 805号室の賃貸物件部屋概要
家賃 |
17.9万円
初期費用を |
|---|---|
共益費 |
15,000円
入居可能時期 |
敷金/礼金 |
1ヶ月 / 1ヶ月 |
保証金/ |
- / - |
最寄駅 |
|
所在地 |
東京都葛飾区金町 |
部屋番号 |
805号室 |
間取り |
1LDK(洋7・LDK11.4) |
専有面積 |
49.76㎡ |
築年数 |
2009年6月(築17年) |
階数 |
8階部分(地上41階地下2階建) |
方位・位置 |
西 / 角部屋 |
物件種別 |
賃貸マンション |
構造 |
RC |
駐車場 |
無 |
小学校学区 |
金町小学校 |
中学校学区 |
常盤中学校 |
他の空き部屋 |
ー |
- 学区データについて
- ※学区データは必ずしも正確とは限りません。詳細に関しては最寄店舗または各自治体の教育委員会に必ずご確認ください。
ヴィナシス金町タワーレジデンス 805号室の特徴
-
一人暮らしに人気の設備

-
カップルに人気の設備

-
家族に人気の設備

-
夫婦に人気の設備

-
三世代で人気の設備

-
セキュリティ対策重視

-
タイパ重視

-
外で子どもと遊びたい

-
身だしなみに気をつかいたい

-
雨の日でも洗濯したい

-
洋室で暮らしたい

-
服やおしゃれが好き

-
ガーデニングが好き

契約条件
この物件は、外国籍の方もご相談の上、2人入居もご契約できます。 また、ご契約時に保証人は不要です。
セキュリティ
この物件の建物には、オートロックや防犯カメラや宅配ボックスが設置されており、来客時には居室内のテレビモニターにて訪問者の顔を確認することができます。
室内設備
システムキッチンには、ガスコンロが設置されており、排水溝にディスポーザーが備え付けられています。 お風呂とトイレは別です。お風呂には、追い焚き機能が備わっています。 トイレは、温水洗浄便座機能付きになります。 女性に嬉しい設備のシャワーの付いている洗面化粧台があります。 洗濯に便利な設備として、室内洗濯機置場があります。浴室乾燥機も設置されているので、梅雨時の生乾き臭も比較的防ぐことができます。
居室状況
お部屋の床は、フローリングとなっており、エアコンと一部床下暖房が設置されています。 収納スペースとして、通常よりも収納力の高いウォークインクローゼット、玄関にはシューズボックスがあります。
建物設備共用部分
居室外の専有スペースとして、洗濯物を干すなどの用途として利用できるバルコニーがあります。 建物の共用スペースに、日々の出入に便利なエレベーターや、いざという時の防犯カメラや、急な外出や不在がちのご家庭の荷物受け取りに便利な宅配ボックスや、居室内を常に清潔に保てる24時間利用可能なゴミ捨て置き場が設置されています。
周辺施設
この物件の学区は、金町小学校区・常盤中学校区です。近くには、徒歩2分(90m)で金町駅があります。
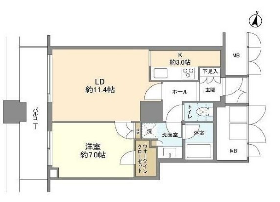
ヴィナシス金町タワーレジデンス 805号室の間取り
間取り:1LDK
間取詳細:1LDK(洋7・LDK11.4)
専有面積:49.76㎡
方位:西
部屋位置:角部屋
ヴィナシス金町タワーレジデンス 805号室の設備
キッチン
システムキッチン
ガスコンロ
ディスポーザー
バス・トイレ
バス・トイレ別
追い焚き
浴室乾燥機
温水洗浄便座
独立洗面台
シャワー付洗面化粧台
玄関
TVモニタ付インターホン
オートロック
宅配ボックス
収納
ウォークインクローゼット
シューズボックス
バルコニー
バルコニー
ルーフバルコニー
室内設備
エアコン
フローリング
床下暖房
室内洗濯機置場
位置・立地
2階以上
角部屋
インフラ
インターネット可
CS
都市ガス
建物設備
エレベーター
防犯カメラ
24時間ゴミ出しOK
分譲賃貸
入居条件
2人入居可
外国人可・相談
オンライン相談可
オンライン内見可
保証人不要
ライフステージ
一人暮らしに人気の設備
カップルに人気の設備
家族に人気の設備
夫婦に人気の設備
三世代で人気の設備
こだわり
セキュリティ対策重視
タイパ重視
外で子どもと遊びたい
身だしなみに気をつかいたい
雨の日でも洗濯したい
洋室で暮らしたい
趣味
服やおしゃれが好き
ガーデニングが好き
ヴィナシス金町タワーレジデンス 805号室の賃貸契約情報
毎月支払う |
家賃17.9万円/月共益費15,000円/月 |
|---|---|
初期費用 |
敷金1ヶ月 (17.9万円)礼金1ヶ月 (17.9万円)保証金-敷引き償却金- |
更新料 |
179,000円 |
鍵交換費用 |
- |
室内清掃費用 |
- |
駐車場料金 |
無 |
損保・ |
借家賠付きの火災保険にご加入いただきます。 |
保証会社 |
加入要 保証会社利用料:初回保証料:賃料等の50%(最低2万)、月額保証・事務手数料:賃料等の1%(更新料無) |
契約期間 |
2年 |
入居可能日 |
2026年02月中旬 |
フリーレント期間 |
- |
取引形態 |
一般媒介 |
備考 |
TV有料放送・ネット利用及び工事費有料の場合あり、浄水器カートリッジ交換費用は借主負担 |
ヴィナシス金町タワーレジデンス 805号室の建物情報
建物名称 |
ヴィナシス金町タワーレジデンス |
|---|---|
最寄駅 |
|
所在地 |
東京都葛飾区金町 |
階層 |
8階部分(地上41階地下2階建) |
構造 |
RC |
築年数 |
2009年6月(築17年) |
駐車場 |
無 |
小学校学区 |
金町小学校 |
中学校学区 |
常盤中学校 |
- 学区データについて
- ※学区データは必ずしも正確とは限りません。詳細に関しては最寄店舗または各自治体の教育委員会に必ずご確認ください。
無料この物件に問い合わせ
- ヴィナシス金町タワーレジデンス 805号室

-
17.9万円
(共益費
15,000円)
- 敷
- 1ヶ月
- 礼
- 1ヶ月
- 保
- -
- 償
- -
ヴィナシス金町タワーレジデンス 805号室の物件のお問い合わせ先・取り扱い店舗
ハウスコム 亀有店
- アクセス
-
常磐線各駅停車(千代田線直通)「亀有駅」北口徒歩1分
- 住所
- 〒125-0061 東京都葛飾区亀有5丁目32−10 マリコビル 2階
- 営業時間
- 10:00~18:00
- 定休日
- 水曜日(年末年始12/25~1/3)
- 営業エリア
- 葛飾区・足立区・八潮市・三郷市・松戸市など
- 取引態様
- 賃貸仲介業






















