パークアクシス蒲田ステーションゲート ***号室(11階/1K)の賃貸物件(賃貸マンション)
東京都大田区にあるパークアクシス蒲田ステーションゲート ***号室はルーフバルコニー、フローリング、室内洗濯機置場、CATV、バイク置き場などが特徴です。最寄り駅の京浜東北・根岸線蒲田駅から徒歩3分です。パークアクシス蒲田ステーションゲート ***号室の詳細はハウスコム 蒲田店までお気軽にお問い合わせください!
情報更新日:
次回更新予定日:
※次回更新予定日について:お店側では順次空室確認を行っていますが、次回更新予定日までに空室確認が行えない場合には、この物件情報は自動的に削除されます。
パークアクシス蒲田ステーションゲート ***号室の賃貸物件部屋概要
家賃 |
13.9万円
初期費用を |
|---|---|
共益費 |
10,000円
入居可能時期 |
敷金/礼金 |
1ヶ月 / 1ヶ月 |
保証金/ |
- / - |
最寄駅 |
|
所在地 |
東京都大田区西蒲田 |
部屋番号 |
***号室 |
間取り |
1K(洋6.7・K2.1) |
専有面積 |
23.87㎡ |
築年数 |
2012年9月(築14年) |
階数 |
11階部分(地上14階建) |
方位・位置 |
北 / その他 |
物件種別 |
賃貸マンション |
構造 |
RC |
駐車場 |
無 |
小学校学区 |
道塚小学校 |
中学校学区 |
御園中学校 |
他の空き部屋 |
***号室 1209号室 ***号室 703号室 ***号室 |
- 学区データについて
- ※学区データは必ずしも正確とは限りません。詳細に関しては最寄店舗または各自治体の教育委員会に必ずご確認ください。
パークアクシス蒲田ステーションゲート ***号室の特徴
契約条件
ペットの飼育や楽器演奏もご相談ください。
セキュリティ
この物件の建物には、オートロックや宅配ボックスが設置されております。
室内設備
システムキッチンが備え付けられています。 トイレは、温水洗浄便座機能付きになります。 女性に嬉しい設備の独立した洗面化粧台があります。 洗濯に便利な設備として、室内洗濯機置場があります。浴室乾燥機も設置されているので、梅雨時の生乾き臭も比較的防ぐことができます。
居室状況
お部屋の床は、フローリングとなっており、エアコンが設置されています。 収納スペースとして、基本的な居室にクローゼットを設置、玄関にはシューズボックスがあります。
建物設備共用部分
居室外の専有スペースとして、洗濯物を干すなどの用途として利用できるバルコニーがあります。 建物の共用スペースに、日々の出入に便利なエレベーターや、急な外出や不在がちのご家庭の荷物受け取りに便利な宅配ボックスが設置されています。 バイク置き場が利用できます。
周辺施設
この物件の学区は、道塚小学校区・御園中学校区です。近くには、徒歩4分(244m)で蒲田東急ストアがあります。
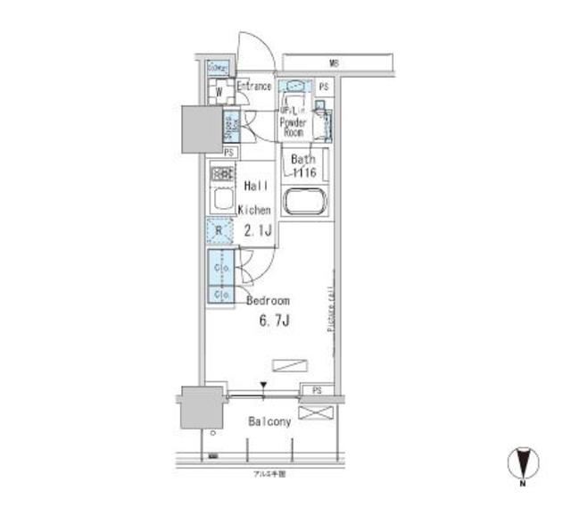
パークアクシス蒲田ステーションゲート ***号室の間取り
間取り:1K
間取詳細:1K(洋6.7・K2.1)
専有面積:23.87㎡
方位:北
部屋位置:その他
パークアクシス蒲田ステーションゲート ***号室の設備
キッチン
システムキッチン
バス・トイレ
バス・トイレ別
浴室乾燥機
温水洗浄便座
独立洗面台
玄関
オートロック
宅配ボックス
収納
クローゼット
シューズボックス
バルコニー
バルコニー
ルーフバルコニー
室内設備
エアコン
フローリング
室内洗濯機置場
位置・立地
2階以上
インフラ
インターネット可
CATV
BS
CS
都市ガス
建物設備
エレベーター
バイク置き場
入居条件
ペット可・相談
楽器可・相談
即入居可
ライフステージ
一人暮らしに人気の設備
カップルに人気の設備
家族に人気の設備
夫婦に人気の設備
三世代で人気の設備
こだわり
外で子どもと遊びたい
雨の日でも洗濯したい
洋室で暮らしたい
趣味
ガーデニングが好き
パークアクシス蒲田ステーションゲート ***号室の賃貸契約情報
毎月支払う |
家賃13.9万円/月共益費10,000円/月 |
|---|---|
初期費用 |
敷金1ヶ月 (13.9万円)礼金1ヶ月 (13.9万円)保証金-敷引き償却金- |
更新料 |
139,000円 |
鍵交換費用 |
- |
室内清掃費用 |
- |
室内清掃費 |
55,000円 |
鍵交換費 |
16,500円 |
駐車場料金 |
無 |
損保・ |
借家賠付きの火災保険にご加入いただきます。 |
保証会社 |
加入要 保証会社利用料:初回保証委託料(最低20,000円):月額賃料等の50%、 2年目以降:9,600円/年 |
契約期間 |
2年 |
入居可能日 |
即入居可 |
フリーレント期間 |
- |
取引形態 |
一般媒介 |
備考 |
1年未満解約賃料1ヶ月の違約金有 ペット飼育敷金積み増し料金(償却)有り バイク置き場:有料 |
パークアクシス蒲田ステーションゲート ***号室の建物情報
建物名称 |
パークアクシス蒲田ステーションゲート |
|---|---|
最寄駅 |
|
所在地 |
東京都大田区西蒲田 |
階層 |
11階部分(地上14階建) |
構造 |
RC |
築年数 |
2012年9月(築14年) |
駐車場 |
無 |
小学校学区 |
道塚小学校 |
中学校学区 |
御園中学校 |
- 学区データについて
- ※学区データは必ずしも正確とは限りません。詳細に関しては最寄店舗または各自治体の教育委員会に必ずご確認ください。
無料この物件に問い合わせ
- パークアクシス蒲田ステーションゲート ***号室

-
13.9万円
(共益費
10,000円)
- 敷
- 1ヶ月
- 礼
- 1ヶ月
- 保
- -
- 償
- -
パークアクシス蒲田ステーションゲート ***号室の物件のお問い合わせ先・取り扱い店舗
ハウスコム 蒲田店
- アクセス
-
京浜東北・根岸線「蒲田駅」西口徒歩1分
- 住所
- 〒144-0051 東京都大田区西蒲田7丁目5−8 コパンビル 1階
- 営業時間
- 10:00~18:00
- 定休日
- なし
- 営業エリア
- 大田区、品川区、川崎市
- 取引態様
- 賃貸仲介業






































