スプランディッド梅田WEST 402号室(4階/2LDK)の賃貸物件(賃貸マンション)
大阪府大阪市北区にあるスプランディッド梅田WEST 402号室は独立洗面台、シューズボックス、エアコン、インターネット可、駐車2台以上可などが特徴です。最寄り駅の大阪環状線福島駅から徒歩10分です。スプランディッド梅田WEST 402号室の詳細はミニミニ FC江坂店までお気軽にお問い合わせください!
情報更新日:
次回更新予定日:
※次回更新予定日について:お店側では順次空室確認を行っていますが、次回更新予定日までに空室確認が行えない場合には、この物件情報は自動的に削除されます。
スプランディッド梅田WEST 402号室の賃貸物件部屋概要
家賃 |
20.45万円
初期費用を |
|---|---|
共益費 |
15,000円
入居可能時期 |
敷金/礼金 |
- / 1ヶ月 |
保証金/ |
- / - |
最寄駅 |
|
所在地 |
大阪府大阪市北区大淀南 |
部屋番号 |
402号室 |
間取り |
2LDK |
専有面積 |
50.74㎡ |
築年数 |
新築 |
階数 |
4階部分(地上13階建) |
方位・位置 |
東 / 角部屋 |
物件種別 |
賃貸マンション |
構造 |
RC |
駐車場 |
38,500円 |
小学校学区 |
大淀小学校 |
中学校学区 |
大淀中学校 |
他の空き部屋 |
***号室 1002号室 ***号室 ***号室 1102号室 ***号室 ***号室 1202号室 ***号室 ***号室 1302号室 ***号室 ***号室 ***号室 202号室 ***号室 ***号室 302号室 ***号室 ***号室 ***号室 ***号室 ***号室 502号室 ***号室 ***号室 ***号室 602号室 ***号室 ***号室 702号室 ***号室 ***号室 802号室 ***号室 ***号室 902号室 |
- 学区データについて
- ※学区データは必ずしも正確とは限りません。詳細に関しては最寄店舗または各自治体の教育委員会に必ずご確認ください。
スプランディッド梅田WEST 402号室の特徴
-
一人暮らしに人気の設備

-
カップルに人気の設備

-
家族に人気の設備

-
夫婦に人気の設備

-
三世代で人気の設備

-
外で子どもと遊びたい

-
急な来客でも駐車したい

-
雨の日でも洗濯したい

-
洋室で暮らしたい

-
料理が好き

-
推し活グッズを飾りたい

-
オークション・通販が好き

-
ガーデニングが好き

契約条件
ペットの飼育もご相談ください。 また、ご契約時に保証人は不要です。 敷金が無料なため、初期費用が比較的安くなる傾向にあります。
セキュリティ
この物件の建物には、防犯カメラや宅配ボックスが設置されております。
室内設備
カウンターキッチンには、ガスコンロが備え付けられています。 トイレは、温水洗浄便座機能付きになります。 女性に嬉しい設備の独立した洗面化粧台があります。 洗濯に便利な設備として、室内洗濯機置場があります。浴室乾燥機も設置されているので、梅雨時の生乾き臭も比較的防ぐことができます。
居室状況
お部屋の床は、フローリングとなっており、エアコンが設置されています。 インターネットも無料で入居後すぐ生活が始められます。 収納スペースとして、玄関にはシューズボックスがあります。
建物設備共用部分
居室外の専有スペースとして、洗濯物を干すなどの用途として利用できるバルコニーがあります。 建物の共用スペースに、日々の出入に便利なエレベーターや、いざという時の防犯カメラや、急な外出や不在がちのご家庭の荷物受け取りに便利な宅配ボックスが設置されています。 駐車場があり2台以上の車で利用することができます。駐輪場、バイク置き場が利用できます。
周辺施設
この物件の学区は、大淀小学校区・大淀中学校区です。
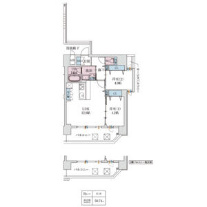
スプランディッド梅田WEST 402号室の間取り
間取り:2LDK
間取詳細:2LDK
専有面積:50.74㎡
方位:東
部屋位置:角部屋
スプランディッド梅田WEST 402号室の設備
キッチン
カウンターキッチン
ガスコンロ
バス・トイレ
バス・トイレ別
浴室乾燥機
温水洗浄便座
独立洗面台
玄関
宅配ボックス
収納
シューズボックス
バルコニー
バルコニー
ルーフバルコニー
室内設備
エアコン
フローリング
室内洗濯機置場
位置・立地
2階以上
角部屋
インフラ
インターネット可
BS
CS
都市ガス
建物設備
エレベーター
防犯カメラ
駐車2台以上可
駐輪場
バイク置き場
入居条件
ペット可・相談
保証人不要
ライフステージ
一人暮らしに人気の設備
カップルに人気の設備
家族に人気の設備
夫婦に人気の設備
三世代で人気の設備
こだわり
外で子どもと遊びたい
急な来客でも駐車したい
雨の日でも洗濯したい
洋室で暮らしたい
趣味
料理が好き
推し活グッズを飾りたい
オークション・通販が好き
ガーデニングが好き
お得な条件
インターネット無料
スプランディッド梅田WEST 402号室の賃貸契約情報
毎月支払う |
家賃20.45万円/月共益費15,000円/月 |
|---|---|
初期費用 |
敷金-礼金1ヶ月 (20.45万円)保証金-敷引き償却金- |
更新料 |
- |
鍵交換費用 |
11,000円 |
室内清掃費用 |
- |
アクト安心ライフ24 |
16,500円 |
バイク置場(1台) |
4,400円 |
原付置場(5台) |
2,200円 |
駐車場料金 |
38,500円 |
損保・ |
借家賠付きの火災保険にご加入いただきます。 |
保証会社 |
加入要 保証会社利用料:【個人】連帯保証人不要 ・全保連 初回保証料:月額総額60% 月額保証料:1,700円 |
契約期間 |
2年 |
入居可能日 |
2026年07月下旬 |
フリーレント期間 |
- |
取引形態 |
一般媒介 |
備考 |
- |
スプランディッド梅田WEST 402号室の建物情報
建物名称 |
スプランディッド梅田WEST |
|---|---|
最寄駅 |
|
所在地 |
大阪府大阪市北区大淀南 |
階層 |
4階部分(地上13階建) |
構造 |
RC |
築年数 |
新築 |
駐車場 |
38,500円 |
小学校学区 |
大淀小学校 |
中学校学区 |
大淀中学校 |
- 学区データについて
- ※学区データは必ずしも正確とは限りません。詳細に関しては最寄店舗または各自治体の教育委員会に必ずご確認ください。
無料この物件に問い合わせ
- スプランディッド梅田WEST 402号室

-
20.45万円
(共益費
15,000円)
- 敷
- -
- 礼
- 1ヶ月
- 保
- -
- 償
- -
スプランディッド梅田WEST 402号室の物件のお問い合わせ先・取り扱い店舗
ミニミニ FC江坂店
- アクセス
-
大阪メトロ 御堂筋線「江坂駅」徒歩1分
- 住所
- 〒564-0063 大阪府吹田市江坂町1-23-34 第二梓ビル2F
- 営業時間
- 10:00~18:00
- 定休日
- なし
- 営業エリア
- 大阪府下全域
- 取引態様
- 賃貸仲介業


