ミハス田園調布Ⅱ 203号室(2階/1DK)の賃貸物件(賃貸アパート)
東京都大田区にあるミハス田園調布Ⅱ 203号室はガスコンロ、バス・トイレ別、TVモニタ付インターホン、エアコン、保証人不要などが特徴です。最寄り駅の東急池上線雪が谷大塚駅から徒歩9分です。ミハス田園調布Ⅱ 203号室の詳細はハウスコム 大岡山店までお気軽にお問い合わせください!
情報更新日:
次回更新予定日:
※次回更新予定日について:お店側では順次空室確認を行っていますが、次回更新予定日までに空室確認が行えない場合には、この物件情報は自動的に削除されます。
ミハス田園調布Ⅱ 203号室の賃貸物件部屋概要
家賃 |
9.6万円
初期費用を |
|---|---|
共益費 |
6,000円
入居可能時期 |
敷金/礼金 |
- / 1ヶ月 |
保証金/ |
- / - |
最寄駅 |
|
所在地 |
東京都大田区田園調布 |
部屋番号 |
203号室 |
間取り |
1DK(DK7.3・洋3.2) |
専有面積 |
28.56㎡ |
築年数 |
2020年4月(築6年) |
階数 |
2階部分(地上3階建) |
方位・位置 |
東 / その他 |
物件種別 |
賃貸アパート |
構造 |
木造 |
駐車場 |
- |
小学校学区 |
調布大塚小学校 |
中学校学区 |
田園調布中学校 |
他の空き部屋 |
ー |
- 学区データについて
- ※学区データは必ずしも正確とは限りません。詳細に関しては最寄店舗または各自治体の教育委員会に必ずご確認ください。
ミハス田園調布Ⅱ 203号室の特徴
契約条件
この物件は、外国籍の方もご相談の上、ご契約できます。 また、ご契約時に保証人は不要です。 敷金が無料なため、初期費用が比較的安くなる傾向にあります。
セキュリティ
来客時には居室内のテレビモニターにて訪問者の顔を確認することができます。
室内設備
システムキッチンには、2つ以上のガスコンロが備え付けられています。 女性に嬉しい設備の独立した洗面化粧台があります。 洗濯に便利な設備として、室内洗濯機置場があります。浴室乾燥機も設置されているので、梅雨時の生乾き臭も比較的防ぐことができます。
居室状況
お部屋の床は、フローリングとなっており、エアコンが設置されています。 収納スペースとして、基本的な居室にクローゼットを設置、玄関にはシューズボックスがあります。
建物設備共用部分
駐輪場が利用できます。
周辺施設
この物件の学区は、調布大塚小学校区・田園調布中学校区です。
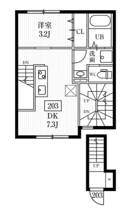
ミハス田園調布Ⅱ 203号室の間取り
間取り:1DK
間取詳細:1DK(DK7.3・洋3.2)
専有面積:28.56㎡
方位:東
部屋位置:その他
ミハス田園調布Ⅱ 203号室の設備
キッチン
システムキッチン
ガスコンロ
ガスコンロ二口以上
バス・トイレ
バス・トイレ別
浴室乾燥機
独立洗面台
玄関
TVモニタ付インターホン
収納
クローゼット
シューズボックス
室内設備
エアコン
フローリング
室内洗濯機置場
位置・立地
2階以上
建物設備
駐輪場
入居条件
外国人可・相談
オンライン相談可
オンライン内見可
保証人不要
ライフステージ
一人暮らしに人気の設備
カップルに人気の設備
家族に人気の設備
夫婦に人気の設備
三世代で人気の設備
こだわり
雨の日でも洗濯したい
洋室で暮らしたい
ミハス田園調布Ⅱ 203号室の賃貸契約情報
毎月支払う |
家賃9.6万円/月共益費6,000円/月 |
|---|---|
初期費用 |
敷金-礼金1ヶ月 (9.6万円)保証金-敷引き償却金- |
更新料 |
96,000円 |
鍵交換費用 |
19,800円 |
室内清掃費用 |
44,000円 |
駐車場料金 |
- |
損保・ |
借家賠付きの火災保険にご加入いただきます。 |
保証会社 |
加入要 保証会社利用料:初回:総賃料100% 月額:1.5% |
契約期間 |
2年 |
入居可能日 |
即入居可 |
フリーレント期間 |
- |
取引形態 |
一般媒介 |
備考 |
- |
ミハス田園調布Ⅱ 203号室の建物情報
建物名称 |
ミハス田園調布Ⅱ |
|---|---|
最寄駅 |
|
所在地 |
東京都大田区田園調布 |
階層 |
2階部分(地上3階建) |
構造 |
木造 |
築年数 |
2020年4月(築6年) |
駐車場 |
- |
小学校学区 |
調布大塚小学校 |
中学校学区 |
田園調布中学校 |
- 学区データについて
- ※学区データは必ずしも正確とは限りません。詳細に関しては最寄店舗または各自治体の教育委員会に必ずご確認ください。
無料この物件に問い合わせ
- ミハス田園調布Ⅱ 203号室

-
9.6万円
(共益費
6,000円)
- 敷
- -
- 礼
- 1ヶ月
- 保
- -
- 償
- -
ミハス田園調布Ⅱ 203号室の物件のお問い合わせ先・取り扱い店舗
ハウスコム 大岡山店
- アクセス
-
東急目黒線「大岡山駅」徒歩1分
- 住所
- 〒145-0062 東京都大田区北千束1丁目51−6 サンルミナスA 1階
- 営業時間
- 10:00~18:00
- 定休日
- なし
- 営業エリア
- 大田区,目黒区,品川区,世田谷区
- 取引態様
- 賃貸仲介業






















