インブルーメンハイン 300号室(3階/2LDK)の賃貸物件(賃貸マンション)
東京都品川区にあるインブルーメンハイン 300号室は追い焚き、独立洗面台、シャワー付洗面化粧台、オートロック、エレベーターなどが特徴です。最寄り駅の東急大井町線戸越公園駅から徒歩8分です。インブルーメンハイン 300号室の詳細はハウスコム 五反田店までお気軽にお問い合わせください!
情報更新日:
次回更新予定日:
※次回更新予定日について:お店側では順次空室確認を行っていますが、次回更新予定日までに空室確認が行えない場合には、この物件情報は自動的に削除されます。
インブルーメンハイン 300号室の賃貸物件部屋概要
家賃 |
18万円
初期費用を |
|---|---|
共益費 |
2,000円
入居可能時期 |
敷金/礼金 |
1ヶ月 / 1ヶ月 |
保証金/ |
- / - |
最寄駅 |
|
所在地 |
東京都品川区戸越 |
部屋番号 |
300号室 |
間取り |
2LDK(洋7.1・洋6.4・LDK15.2) |
専有面積 |
69.89㎡ |
築年数 |
2008年11月(築18年) |
階数 |
3階部分(地上3階建) |
方位・位置 |
南東 / 角部屋 |
物件種別 |
賃貸マンション |
構造 |
鉄骨造 |
駐車場 |
無 |
小学校学区 |
ー |
中学校学区 |
ー |
他の空き部屋 |
ー |
- 学区データについて
- ※学区データは必ずしも正確とは限りません。詳細に関しては最寄店舗または各自治体の教育委員会に必ずご確認ください。
インブルーメンハイン 300号室の特徴
契約条件
この物件は、2人入居もご契約できます。
セキュリティ
この物件の建物には、オートロックが設置されており、来客時には居室内のテレビモニターにて訪問者の顔を確認することができます。
室内設備
システムキッチンには、IHコンロが設置されており、キッチン設備として食洗機が備え付けられています。 お風呂とトイレは別です。お風呂には、追い焚き機能が備わっています。 トイレは、温水洗浄便座機能付きになります。 女性に嬉しい設備のシャワーの付いている洗面化粧台があります。 洗濯に便利な設備として、室内洗濯機置場があります。浴室乾燥機も設置されているので、梅雨時の生乾き臭も比較的防ぐことができます。
居室状況
エアコンが設置されています。 収納スペースとして、基本的な居室にクローゼットを設置、玄関にはシューズボックスがあります。
建物設備共用部分
居室外の専有スペースとして、洗濯物を干すなどの用途として利用できるバルコニーがあります。 建物の共用スペースに、日々の出入に便利なエレベーターが設置されています。 駐輪場が利用できます。
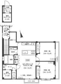
インブルーメンハイン 300号室の間取り
間取り:2LDK
間取詳細:2LDK(洋7.1・洋6.4・LDK15.2)
専有面積:69.89㎡
方位:南東
部屋位置:角部屋
インブルーメンハイン 300号室の設備
キッチン
システムキッチン
IHコンロ
食洗機
バス・トイレ
バス・トイレ別
追い焚き
浴室乾燥機
温水洗浄便座
独立洗面台
シャワー付洗面化粧台
玄関
TVモニタ付インターホン
オートロック
収納
クローゼット
シューズボックス
バルコニー
バルコニー
ルーフバルコニー
室内設備
エアコン
室内洗濯機置場
位置・立地
2階以上
最上階
角部屋
インフラ
都市ガス
建物設備
エレベーター
駐輪場
入居条件
2人入居可
ライフステージ
一人暮らしに人気の設備
カップルに人気の設備
家族に人気の設備
夫婦に人気の設備
三世代で人気の設備
こだわり
外で子どもと遊びたい
雨の日でも洗濯したい
趣味
ガーデニングが好き
インブルーメンハイン 300号室の賃貸契約情報
毎月支払う |
家賃18万円/月共益費2,000円/月 |
|---|---|
初期費用 |
敷金1ヶ月 (18万円)礼金1ヶ月 (18万円)保証金-敷引き償却金- |
更新料 |
180,000円 |
鍵交換費用 |
- |
室内清掃費用 |
- |
管理サポート料(2年分) |
26,000円 |
鍵交換代 |
55,000円 |
駐車場料金 |
無 |
損保・ |
借家賠付きの火災保険にご加入いただきます。 |
保証会社 |
|
契約期間 |
2年 |
入居可能日 |
2026年04月上旬 |
フリーレント期間 |
- |
取引形態 |
一般媒介 |
備考 |
- |
インブルーメンハイン 300号室の建物情報
建物名称 |
インブルーメンハイン |
|---|---|
最寄駅 |
|
所在地 |
東京都品川区戸越 |
階層 |
3階部分(地上3階建) |
構造 |
鉄骨造 |
築年数 |
2008年11月(築18年) |
駐車場 |
無 |
小学校学区 |
ー |
中学校学区 |
ー |
- 学区データについて
- ※学区データは必ずしも正確とは限りません。詳細に関しては最寄店舗または各自治体の教育委員会に必ずご確認ください。
無料この物件に問い合わせ
- インブルーメンハイン 300号室

-
18万円
(共益費
2,000円)
- 敷
- 1ヶ月
- 礼
- 1ヶ月
- 保
- -
- 償
- -
インブルーメンハイン 300号室の物件のお問い合わせ先・取り扱い店舗
ハウスコム 五反田店
- アクセス
-
山手線「五反田駅」東口徒歩1分
都営浅草線「五反田駅」A6出口より徒歩1分
- 住所
- 〒141-0022 東京都品川区東五反田1丁目12−12 落合ビル 2F
- 営業時間
- 10:00~18:00
- 定休日
- なし(年末年始は休業)
- 営業エリア
- 品川区,大田区,港区,目黒区
- 取引態様
- 賃貸仲介業























