アザーレ・パッシオ平和台 ***号室(2階/1K)の賃貸物件(賃貸マンション)
東京都練馬区にあるアザーレ・パッシオ平和台 ***号室はガスコンロ、TVモニタ付インターホン、2階以上、CATV、保証人不要などが特徴です。最寄り駅の東京メトロ 有楽町線平和台駅から徒歩10分です。アザーレ・パッシオ平和台 ***号室の詳細はハウスコム 成増店までお気軽にお問い合わせください!
情報更新日:
次回更新予定日:
※次回更新予定日について:お店側では順次空室確認を行っていますが、次回更新予定日までに空室確認が行えない場合には、この物件情報は自動的に削除されます。
アザーレ・パッシオ平和台 ***号室の賃貸物件部屋概要
家賃 |
8万円
初期費用を |
|---|---|
共益費 |
5,000円
入居可能時期 |
敷金/礼金 |
- / - |
保証金/ |
- / - |
最寄駅 |
|
所在地 |
東京都練馬区北町 |
部屋番号 |
***号室 |
間取り |
1K(洋6.3) |
専有面積 |
20.15㎡ |
築年数 |
1989年12月(築37年) |
階数 |
2階部分(地上3階建) |
方位・位置 |
西 / 角部屋 |
物件種別 |
賃貸マンション |
構造 |
RC |
駐車場 |
- |
小学校学区 |
北町西小学校 |
中学校学区 |
練馬東中学校 |
他の空き部屋 |
ー |
- 学区データについて
- ※学区データは必ずしも正確とは限りません。詳細に関しては最寄店舗または各自治体の教育委員会に必ずご確認ください。
アザーレ・パッシオ平和台 ***号室の特徴
契約条件
ご契約時に保証人は不要です。 敷金と礼金が無料なため、初期費用が比較的安くなる傾向にあります。
セキュリティ
この物件の建物には、防犯カメラが設置されており、来客時には居室内のテレビモニターにて訪問者の顔を確認することができます。
室内設備
システムキッチンには、2つ以上のガスコンロが備え付けられています。 トイレは、温水洗浄便座機能付きになります。 女性に嬉しい設備の独立した洗面化粧台があります。 洗濯に便利な設備として、室内洗濯機置場があります。浴室乾燥機も設置されているので、梅雨時の生乾き臭も比較的防ぐことができます。
居室状況
お部屋の床は、フローリングとなっており、エアコンが設置されています。 照明器具が備え付けられており、入居後すぐ生活が始められます。 収納スペースとして、基本的な居室にクローゼットを設置、玄関にはシューズボックスがあります。
建物設備共用部分
建物の共用スペースに、いざという時の防犯カメラが設置されています。 駐輪場が利用できます。
周辺施設
この物件の学区は、北町西小学校区・練馬東中学校区です。
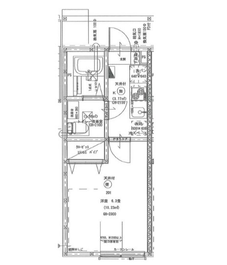
アザーレ・パッシオ平和台 ***号室の間取り
間取り:1K
間取詳細:1K(洋6.3)
専有面積:20.15㎡
方位:西
部屋位置:角部屋
アザーレ・パッシオ平和台 ***号室の設備
キッチン
システムキッチン
ガスコンロ
ガスコンロ二口以上
バス・トイレ
バス・トイレ別
浴室乾燥機
温水洗浄便座
独立洗面台
玄関
TVモニタ付インターホン
収納
クローゼット
シューズボックス
室内設備
エアコン
フローリング
室内洗濯機置場
照明器具付
位置・立地
2階以上
角部屋
インフラ
インターネット可
CATV
プロパンガス
建物設備
防犯カメラ
駐輪場
入居条件
オンライン相談可
オンライン内見可
保証人不要
ライフステージ
一人暮らしに人気の設備
カップルに人気の設備
家族に人気の設備
夫婦に人気の設備
三世代で人気の設備
こだわり
雨の日でも洗濯したい
洋室で暮らしたい
アザーレ・パッシオ平和台 ***号室の賃貸契約情報
毎月支払う |
家賃8万円/月共益費5,000円/月 |
|---|---|
初期費用 |
敷金-礼金-保証金-敷引き償却金- |
更新料 |
80,000円 |
鍵交換費用 |
31,680円 |
室内清掃費用 |
- |
駐車場料金 |
- |
損保・ |
借家賠付きの火災保険にご加入いただきます。 |
保証会社 |
加入要 保証会社:ジェイリース 保証会社利用料:初回保証料:月額支払額の80% 月額保証料:1,500円 |
契約期間 |
2年 |
入居可能日 |
2026年04月上旬 |
フリーレント期間 |
- |
取引形態 |
一般媒介 |
備考 |
ハウスクリーニング費用:37400円(退去時) エアコンクリーニング費用:13200円(退去時) |
アザーレ・パッシオ平和台 ***号室の建物情報
建物名称 |
アザーレ・パッシオ平和台 |
|---|---|
最寄駅 |
|
所在地 |
東京都練馬区北町 |
階層 |
2階部分(地上3階建) |
構造 |
RC |
築年数 |
1989年12月(築37年) |
駐車場 |
- |
小学校学区 |
北町西小学校 |
中学校学区 |
練馬東中学校 |
- 学区データについて
- ※学区データは必ずしも正確とは限りません。詳細に関しては最寄店舗または各自治体の教育委員会に必ずご確認ください。
無料この物件に問い合わせ
- アザーレ・パッシオ平和台 ***号室

-
8万円
(共益費
5,000円)
- 敷
- -
- 礼
- -
- 保
- -
- 償
- -
アザーレ・パッシオ平和台 ***号室の物件のお問い合わせ先・取り扱い店舗
ハウスコム 成増店
- アクセス
-
東武東上線「成増駅」北口徒歩1分
- 住所
- 〒175-0094 東京都板橋区成増3丁目3−11 成増アクト2 1F
- 営業時間
- 10:00~18:00
- 定休日
- なし
- 営業エリア
- 板橋区,練馬区,和光市,朝霞市,新座市,志木市
- 取引態様
- 賃貸仲介業


























