MOKKU HOUSE D号室(1階/1SK)の賃貸物件(賃貸アパート)
東京都町田市にあるMOKKU HOUSE D号室はシステムキッチン、TVモニタ付インターホン、CATV、プロパンガス、保証人不要などが特徴です。最寄り駅の横浜線町田駅から徒歩12分です。MOKKU HOUSE D号室の詳細はハウスコム 町田駅前店までお気軽にお問い合わせください!
情報更新日:
次回更新予定日:
※次回更新予定日について:お店側では順次空室確認を行っていますが、次回更新予定日までに空室確認が行えない場合には、この物件情報は自動的に削除されます。
MOKKU HOUSE D号室の賃貸物件部屋概要
家賃 |
7.6万円
初期費用を |
|---|---|
共益費 |
4,000円
入居可能時期 |
敷金/礼金 |
- / - |
保証金/ |
- / - |
最寄駅 |
|
所在地 |
東京都町田市原町田 |
部屋番号 |
D号室 |
間取り |
1SK |
専有面積 |
28.00㎡ |
築年数 |
2015年3月(築11年) |
階数 |
1階部分(地上2階建) |
方位・位置 |
南西 / その他 |
物件種別 |
賃貸アパート |
構造 |
木造 |
駐車場 |
無 |
小学校学区 |
南第三小学校 |
中学校学区 |
南中学校 |
他の空き部屋 |
ー |
- 学区データについて
- ※学区データは必ずしも正確とは限りません。詳細に関しては最寄店舗または各自治体の教育委員会に必ずご確認ください。
MOKKU HOUSE D号室の特徴
契約条件
ご契約時に保証人は不要です。 敷金と礼金が無料なため、初期費用が比較的安くなる傾向にあります。
セキュリティ
来客時には居室内のテレビモニターにて訪問者の顔を確認することができます。
室内設備
システムキッチンには、2つ以上のガスコンロが備え付けられています。 お風呂とトイレは別です。お風呂には、追い焚き機能が備わっています。 女性に嬉しい設備の独立した洗面化粧台があります。 洗濯に便利な設備として、室内洗濯機置場があります。
居室状況
居室には、ロフトが設置されており大規模な収納スペースやセパレートされた寝室として活用できます。 お部屋の床は、フローリングとなっており、エアコンが設置されています。 収納スペースとして、玄関にはシューズボックス、また、床下収納といったあれば嬉しい用途別収納があります。
周辺施設
この物件の学区は、南第三小学校区・南中学校区です。近くには、徒歩4分(316m)でセブンイレブン原町田店があります。
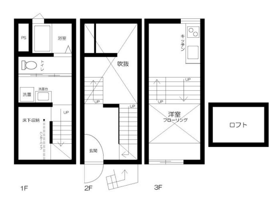
MOKKU HOUSE D号室の間取り
間取り:1SK
間取詳細:1SK
専有面積:28.00㎡
方位:南西
部屋位置:その他
MOKKU HOUSE D号室の設備
キッチン
システムキッチン
ガスコンロ
ガスコンロ二口以上
バス・トイレ
バス・トイレ別
追い焚き
独立洗面台
玄関
TVモニタ付インターホン
収納
シューズボックス
床下収納
室内設備
エアコン
フローリング
室内洗濯機置場
ロフト付
位置・立地
1階
インフラ
CATV
CATV無料
プロパンガス
入居条件
オンライン相談可
保証人不要
ライフステージ
一人暮らしに人気の設備
カップルに人気の設備
家族に人気の設備
夫婦に人気の設備
三世代で人気の設備
こだわり
雨の日でも洗濯したい
洋室で暮らしたい
MOKKU HOUSE D号室の賃貸契約情報
毎月支払う |
家賃7.6万円/月共益費4,000円/月 |
|---|---|
初期費用 |
敷金-礼金-保証金-敷引き償却金- |
更新料 |
76,000円 |
鍵交換費用 |
26,400円 |
室内清掃費用 |
55,000円 |
入居者サポート料 |
22,000円 |
プロパンガス保証金 |
10,000円 |
駐車場料金 |
無 |
損保・ |
借家賠付きの火災保険にご加入いただきます。 |
保証会社 |
加入要 保証会社利用料:初回月額総賃料50% 以降14000円/年 |
契約期間 |
2年 |
入居可能日 |
相談 |
フリーレント期間 |
- |
取引形態 |
一般媒介 |
備考 |
短期解約違約金有り(1年未満の解約で賃料の1ヶ月分) |
MOKKU HOUSE D号室の建物情報
建物名称 |
MOKKU HOUSE |
|---|---|
最寄駅 |
|
所在地 |
東京都町田市原町田 |
階層 |
1階部分(地上2階建) |
構造 |
木造 |
築年数 |
2015年3月(築11年) |
駐車場 |
無 |
小学校学区 |
南第三小学校 |
中学校学区 |
南中学校 |
- 学区データについて
- ※学区データは必ずしも正確とは限りません。詳細に関しては最寄店舗または各自治体の教育委員会に必ずご確認ください。
無料この物件に問い合わせ
- MOKKU HOUSE D号室

-
7.6万円
(共益費
4,000円)
- 敷
- -
- 礼
- -
- 保
- -
- 償
- -
MOKKU HOUSE D号室の物件のお問い合わせ先・取り扱い店舗
ハウスコム 町田駅前店
- アクセス
-
小田急小田原線「町田駅」西口徒歩1分
横浜線「町田駅」徒歩3分
- 住所
- 〒194-0013 東京都町田市原町田6丁目3−3 町映ビル 3F
- 営業時間
- 10:00~18:00
- 定休日
- なし
- 営業エリア
- 町田市、相模原市南区、相模原市中央区、座間市、大和市、川崎市麻生区
- 取引態様
- 賃貸仲介業




































