レジディア玉造(旧AMARE長堀通) ***号室(8階/2LDK)の賃貸物件(賃貸マンション)
大阪府大阪市東成区にあるレジディア玉造(旧AMARE長堀通) ***号室はオートロック、クローゼット、シューズボックス、防犯カメラ、駐輪場などが特徴です。最寄り駅の大阪環状線玉造駅から徒歩7分です。レジディア玉造(旧AMARE長堀通) ***号室の詳細はミニミニ FC天満橋店までお気軽にお問い合わせください!
情報更新日:
次回更新予定日:
※次回更新予定日について:お店側では順次空室確認を行っていますが、次回更新予定日までに空室確認が行えない場合には、この物件情報は自動的に削除されます。
レジディア玉造(旧AMARE長堀通) ***号室の賃貸物件部屋概要
家賃 |
18.2万円
初期費用を |
|---|---|
共益費 |
12,000円
入居可能時期 |
敷金/礼金 |
182,000円 / 364,000円 |
保証金/ |
- / - |
最寄駅 |
|
所在地 |
大阪府大阪市東成区玉津 |
部屋番号 |
***号室 |
間取り |
2LDK(LDK17.1・洋5.6・洋5.8) |
専有面積 |
68.65㎡ |
築年数 |
2015年2月(築11年) |
階数 |
8階部分(地上11階建) |
方位・位置 |
南 / その他 |
物件種別 |
賃貸マンション |
構造 |
RC |
駐車場 |
空無し |
小学校学区 |
中道小学校 |
中学校学区 |
玉津中学校 |
他の空き部屋 |
***号室 605号室 |
- 学区データについて
- ※学区データは必ずしも正確とは限りません。詳細に関しては最寄店舗または各自治体の教育委員会に必ずご確認ください。
レジディア玉造(旧AMARE長堀通) ***号室の特徴
-
一人暮らしに人気の設備

-
カップルに人気の設備

-
家族に人気の設備

-
夫婦に人気の設備

-
三世代で人気の設備

-
セキュリティ対策重視

-
外で子どもと遊びたい

-
雨の日でも洗濯したい

-
洋室で暮らしたい

-
料理が好き

-
服やおしゃれが好き

-
推し活グッズを飾りたい

-
オークション・通販が好き

-
ガーデニングが好き

契約条件
ペットの飼育もご相談ください。
セキュリティ
この物件の建物には、オートロックや防犯カメラや宅配ボックスが設置されており、来客時には居室内のテレビモニターにて訪問者の顔を確認することができます。
室内設備
システムキッチンには、ガスコンロが備え付けられています。 トイレは、温水洗浄便座機能付きになります。 女性に嬉しい設備のシャワーの付いている洗面化粧台があります。 洗濯に便利な設備として、室内洗濯機置場があります。浴室乾燥機も設置されているので、梅雨時の生乾き臭も比較的防ぐことができます。
居室状況
お部屋の床は、フローリングとなっており、エアコンが設置されています。 インターネットも無料で入居後すぐ生活が始められます。 収納スペースとして、基本的な居室にクローゼットを設置、通常よりも収納力の高いウォークインクローゼット、玄関にはシューズボックスがあります。
建物設備共用部分
居室外の専有スペースとして、洗濯物を干すなどの用途として利用できるバルコニーがあります。 建物の共用スペースに、日々の出入に便利なエレベーターや、いざという時の防犯カメラや、急な外出や不在がちのご家庭の荷物受け取りに便利な宅配ボックスが設置されています。 駐輪場、バイク置き場が利用できます。
周辺施設
この物件の学区は、中道小学校区・玉津中学校区です。
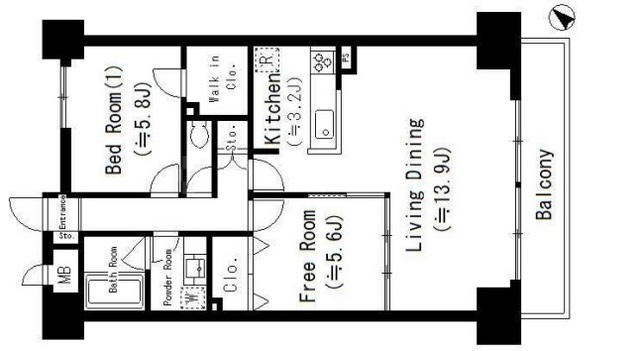
レジディア玉造(旧AMARE長堀通) ***号室の間取り
間取り:2LDK
間取詳細:2LDK(LDK17.1・洋5.6・洋5.8)
専有面積:68.65㎡
方位:南
部屋位置:その他
レジディア玉造(旧AMARE長堀通) ***号室の設備
キッチン
システムキッチン
カウンターキッチン
ガスコンロ
バス・トイレ
バス・トイレ別
浴室乾燥機
温水洗浄便座
独立洗面台
シャワー付洗面化粧台
玄関
TVモニタ付インターホン
オートロック
宅配ボックス
収納
クローゼット
ウォークインクローゼット
シューズボックス
バルコニー
バルコニー
ルーフバルコニー
室内設備
エアコン
フローリング
室内洗濯機置場
デザイナーズ
位置・立地
2階以上
南向き
インフラ
インターネット可
CATV
BS
CS
都市ガス
建物設備
エレベーター
防犯カメラ
駐輪場
バイク置き場
入居条件
ペット可・相談
オンライン相談可
オンライン内見可
ライフステージ
一人暮らしに人気の設備
カップルに人気の設備
家族に人気の設備
夫婦に人気の設備
三世代で人気の設備
こだわり
セキュリティ対策重視
外で子どもと遊びたい
雨の日でも洗濯したい
洋室で暮らしたい
趣味
料理が好き
服やおしゃれが好き
推し活グッズを飾りたい
オークション・通販が好き
ガーデニングが好き
お得な条件
インターネット無料
レジディア玉造(旧AMARE長堀通) ***号室の賃貸契約情報
毎月支払う |
家賃18.2万円/月共益費12,000円/月 |
|---|---|
初期費用 |
敷金182,000円礼金364,000円保証金-敷引き償却金- |
更新料 |
182,000円 |
鍵交換費用 |
16,500円 |
室内清掃費用 |
48,400円 |
退去時エアコンクリーニング費用 |
13,200円 |
駐車場料金 |
空無し |
損保・ |
借家賠付きの火災保険にご加入いただきます。 |
保証会社 |
加入要 保証会社利用料:内容:保証人有30%、保証人無50%/1年 (初回のみ最低保証委託料2万円) 更新料、 25%/1年口振手数料 220円(税込)/月 |
契約期間 |
2年 |
入居可能日 |
相談 |
フリーレント期間 |
- |
取引形態 |
一般媒介 |
備考 |
- |
レジディア玉造(旧AMARE長堀通) ***号室の建物情報
建物名称 |
レジディア玉造(旧AMARE長堀通) |
|---|---|
最寄駅 |
|
所在地 |
大阪府大阪市東成区玉津 |
階層 |
8階部分(地上11階建) |
構造 |
RC |
築年数 |
2015年2月(築11年) |
駐車場 |
空無し |
小学校学区 |
中道小学校 |
中学校学区 |
玉津中学校 |
- 学区データについて
- ※学区データは必ずしも正確とは限りません。詳細に関しては最寄店舗または各自治体の教育委員会に必ずご確認ください。
無料この物件に問い合わせ
- レジディア玉造(旧AMARE長堀通) ***号室

-
18.2万円
(共益費
12,000円)
- 敷
- 182,000円
- 礼
- 364,000円
- 保
- -
- 償
- -
レジディア玉造(旧AMARE長堀通) ***号室の物件のお問い合わせ先・取り扱い店舗
ミニミニ FC天満橋店
- アクセス
-
大阪メトロ 谷町線「天満橋駅」徒歩1分
京阪本線「天満橋駅」徒歩1分
- 住所
- 〒540-0008 大阪府大阪市中央区大手前1-6-2
- 営業時間
- 10:00~18:00
- 定休日
- なし
- 営業エリア
- 大阪市中央区,大阪市北区,大阪市都島区,大阪市旭区,大阪市淀川区,大阪市福島区,大阪市西区,大阪市東淀川区
- 取引態様
- 賃貸仲介業





























