アプトK3 B号室(1階/2LDK)の賃貸物件(賃貸一戸建て)
静岡県浜松市中央区にあるアプトK3 B号室はカウンターキッチン、温水洗浄便座、クローゼット、バルコニー、平面駐車場などが特徴です。最寄り駅の東海道本線(JR東海)浜松駅から2.4kmです。アプトK3 B号室の詳細はハウスコム 浜松西店までお気軽にお問い合わせください!
情報更新日:
次回更新予定日:
※次回更新予定日について:お店側では順次空室確認を行っていますが、次回更新予定日までに空室確認が行えない場合には、この物件情報は自動的に削除されます。
アプトK3 B号室の賃貸物件部屋概要
家賃 |
8.5万円
初期費用を |
|---|---|
共益費 |
2,000円
入居可能時期 |
敷金/礼金 |
3ヶ月 / - |
保証金/ |
- / 2ヶ月 |
最寄駅 |
|
所在地 |
静岡県浜松市中央区南浅田 |
部屋番号 |
B号室 |
間取り |
2LDK(洋8.1・洋7.2・LDK18.7) |
専有面積 |
77.46㎡ |
築年数 |
2009年8月(築17年) |
階数 |
1階部分(地上2階建) |
方位・位置 |
南 / 角部屋 |
物件種別 |
賃貸一戸建て |
構造 |
木造 |
駐車場 |
空有 賃料に含む |
小学校学区 |
ー |
中学校学区 |
ー |
他の空き部屋 |
ー |
- 学区データについて
- ※学区データは必ずしも正確とは限りません。詳細に関しては最寄店舗または各自治体の教育委員会に必ずご確認ください。
アプトK3 B号室の特徴
-
一人暮らしに人気の設備

-
カップルに人気の設備

-
家族に人気の設備

-
夫婦に人気の設備

-
三世代で人気の設備

-
外で子どもと遊びたい

-
急な来客でも駐車したい

-
雨の日でも洗濯したい

-
洋室で暮らしたい

-
推し活グッズを飾りたい

-
ガーデニングが好き

契約条件
この物件は、2人入居もご契約できます。 また、ご契約時に保証人は不要です。 礼金が無料なため、初期費用が比較的安くなる傾向にあります。
セキュリティ
来客時には居室内のテレビモニターにて訪問者の顔を確認することができます。
室内設備
システムキッチンには、ガスコンロが備え付けられています。 お風呂とトイレは別です。お風呂には、追い焚き機能が備わっています。 トイレは、温水洗浄便座機能付きになります。 女性に嬉しい設備のシャワーの付いている洗面化粧台があります。 洗濯に便利な設備として、室内洗濯機置場があります。
居室状況
お部屋の床は、フローリングとなっており、エアコンが設置されています。 照明器具が備え付けられており、入居後すぐ生活が始められます。 収納スペースとして、基本的な居室にクローゼットを設置、玄関にはシューズボックスがあります。
建物設備共用部分
居室外の専有スペースとして、洗濯物を干すなどの用途として利用できるバルコニーがあります。 平面駐車場があり、無料で2台以上の車で利用することができます。
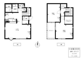
アプトK3 B号室の間取り
間取り:2LDK
間取詳細:2LDK(洋8.1・洋7.2・LDK18.7)
専有面積:77.46㎡
方位:南
部屋位置:角部屋
アプトK3 B号室の設備
キッチン
システムキッチン
カウンターキッチン
ガスコンロ
バス・トイレ
バス・トイレ別
追い焚き
温水洗浄便座
独立洗面台
シャワー付洗面化粧台
玄関
TVモニタ付インターホン
収納
クローゼット
シューズボックス
バルコニー
バルコニー
ルーフバルコニー
室内設備
エアコン
フローリング
室内洗濯機置場
照明器具付
位置・立地
1階
角部屋
南向き
インフラ
CATV
建物設備
駐車場
平面駐車場
駐車2台以上可
メゾネット
入居条件
2人入居可
オンライン相談可
オンライン内見可
保証人不要
ライフステージ
一人暮らしに人気の設備
カップルに人気の設備
家族に人気の設備
夫婦に人気の設備
三世代で人気の設備
こだわり
外で子どもと遊びたい
急な来客でも駐車したい
雨の日でも洗濯したい
洋室で暮らしたい
趣味
推し活グッズを飾りたい
ガーデニングが好き
お得な条件
駐車場無料
アプトK3 B号室の賃貸契約情報
毎月支払う |
家賃8.5万円/月共益費2,000円/月 |
|---|---|
初期費用 |
敷金3ヶ月 (25.5万円)礼金-保証金-敷引き償却金2ヶ月 |
更新料 |
- |
鍵交換費用 |
- |
室内清掃費用 |
- |
エアコンクリーニング |
16,500円 |
自治会入会金 |
2,000円 |
駐車場料金 |
空有 賃料に含む |
損保・ |
借家賠付きの火災保険にご加入いただきます。 |
保証会社 |
加入要 保証会社:ジェイリース 保証会社利用料:初回:賃料等40% 月額:800円(引き落とし手数料含む) |
契約期間 |
2年 |
入居可能日 |
2026年03月 |
フリーレント期間 |
- |
取引形態 |
一般媒介 |
備考 |
火災保険要加入 エアコンクリーニング代:16500円 自治会入会金:2000円 自治会費:500円/月 駐車場料2台込 |
アプトK3 B号室の建物情報
建物名称 |
アプトK3 |
|---|---|
最寄駅 |
|
所在地 |
静岡県浜松市中央区南浅田 |
階層 |
1階部分(地上2階建) |
構造 |
木造 |
築年数 |
2009年8月(築17年) |
駐車場 |
空有 賃料に含む |
小学校学区 |
ー |
中学校学区 |
ー |
- 学区データについて
- ※学区データは必ずしも正確とは限りません。詳細に関しては最寄店舗または各自治体の教育委員会に必ずご確認ください。
無料この物件に問い合わせ
- アプトK3 B号室

-
8.5万円
(共益費
2,000円)
- 敷
- 3ヶ月
- 礼
- -
- 保
- -
- 償
- 2ヶ月
アプトK3 B号室の物件のお問い合わせ先・取り扱い店舗
ハウスコム 浜松西店
- アクセス
- 住所
- 〒432-8038 静岡県浜松市中央区西伊場町56−12
- 営業時間
- 10:00~18:00
- 定休日
- 水曜日
- 営業エリア
- 浜松市中央区、,湖西市
- 取引態様
- 賃貸仲介業
















