アリカ曳舟Ⅱ 0701号室(7階/1LDK)の賃貸物件(賃貸マンション)
東京都墨田区にあるアリカ曳舟Ⅱ 0701号室はシステムキッチン、温水洗浄便座、ルーフバルコニー、角部屋、バイク置き場などが特徴です。最寄り駅の京成押上線京成曳舟駅から徒歩7分です。アリカ曳舟Ⅱ 0701号室の詳細はハウスコム 事業戦略室までお気軽にお問い合わせください!
情報更新日:
次回更新予定日:
※次回更新予定日について:お店側では順次空室確認を行っていますが、次回更新予定日までに空室確認が行えない場合には、この物件情報は自動的に削除されます。
アリカ曳舟Ⅱ 0701号室の賃貸物件部屋概要
家賃 |
14.7万円
初期費用を |
|---|---|
共益費 |
10,000円
入居可能時期 |
敷金/礼金 |
- / - |
保証金/ |
- / - |
最寄駅 |
|
所在地 |
東京都墨田区八広 |
部屋番号 |
0701号室 |
間取り |
1LDK |
専有面積 |
32.89㎡ |
築年数 |
新築 |
階数 |
7階部分(地上8階建) |
方位・位置 |
東 / 角部屋 |
物件種別 |
賃貸マンション |
構造 |
RC |
駐車場 |
- |
小学校学区 |
第三吾嬬小学校 |
中学校学区 |
寺島中学校 |
他の空き部屋 |
0202号室 0302号室 0302号室 0401号室 0401号室 0402号室 0501号室 0501号室 0502号室 0502号室 0601号室 0602号室 0602号室 0701号室 0801号室 0801号室 0802号室 0802号室 202号室 302号室 401号室 402号室 501号室 502号室 601号室 602号室 701号室 801号室 802号室 |
- 学区データについて
- ※学区データは必ずしも正確とは限りません。詳細に関しては最寄店舗または各自治体の教育委員会に必ずご確認ください。
アリカ曳舟Ⅱ 0701号室の特徴
-
一人暮らしに人気の設備

-
カップルに人気の設備

-
家族に人気の設備

-
夫婦に人気の設備

-
三世代で人気の設備

-
外で子どもと遊びたい

-
雨の日でも洗濯したい

-
洋室で暮らしたい

-
オークション・通販が好き

-
ガーデニングが好き

契約条件
敷金と礼金が無料なため、初期費用が比較的安くなる傾向にあります。
セキュリティ
この物件の建物には、オートロックや宅配ボックスが設置されております。
室内設備
システムキッチンには、2つ以上のガスコンロが備え付けられています。 トイレは、温水洗浄便座機能付きになります。 洗濯に便利な設備として、室内洗濯機置場があります。浴室乾燥機も設置されているので、梅雨時の生乾き臭も比較的防ぐことができます。
居室状況
お部屋の床は、フローリングとなっており、エアコンが設置されています。 インターネットも無料で入居後すぐ生活が始められます。 収納スペースとして、玄関にはシューズボックスがあります。
建物設備共用部分
居室外の専有スペースとして、洗濯物を干すなどの用途として利用できるバルコニーがあります。 建物の共用スペースに、日々の出入に便利なエレベーターや、急な外出や不在がちのご家庭の荷物受け取りに便利な宅配ボックスが設置されています。 駐輪場、バイク置き場が利用できます。
周辺施設
この物件の学区は、第三吾嬬小学校区・寺島中学校区です。
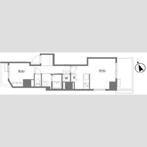
アリカ曳舟Ⅱ 0701号室の間取り
間取り:1LDK
間取詳細:1LDK
専有面積:32.89㎡
方位:東
部屋位置:角部屋
アリカ曳舟Ⅱ 0701号室の設備
キッチン
システムキッチン
ガスコンロ
ガスコンロ二口以上
バス・トイレ
バス・トイレ別
浴室乾燥機
温水洗浄便座
玄関
オートロック
宅配ボックス
収納
シューズボックス
バルコニー
バルコニー
ルーフバルコニー
室内設備
エアコン
フローリング
室内洗濯機置場
位置・立地
2階以上
角部屋
インフラ
インターネット可
BS
CS
都市ガス
建物設備
エレベーター
駐輪場
バイク置き場
入居条件
即入居可
ライフステージ
一人暮らしに人気の設備
カップルに人気の設備
家族に人気の設備
夫婦に人気の設備
三世代で人気の設備
こだわり
外で子どもと遊びたい
雨の日でも洗濯したい
洋室で暮らしたい
趣味
オークション・通販が好き
ガーデニングが好き
お得な条件
インターネット無料
アリカ曳舟Ⅱ 0701号室の賃貸契約情報
毎月支払う |
家賃14.7万円/月共益費10,000円/月 |
|---|---|
初期費用 |
敷金-礼金-保証金-敷引き償却金- |
更新料 |
147,000円 |
鍵交換費用 |
- |
室内清掃費用 |
- |
プレミアデスク(2年/税込) |
22,000円 |
契約時ルームクリーニング費用(税込) |
88,000円 |
駐車場料金 |
- |
損保・ |
借家賠付きの火災保険にご加入いただきます。 |
保証会社 |
加入要 保証会社:エポスカード 保証会社利用料:※エポス ルームIDからの審査になります。 【ルームID】月額総賃料の50%/月次保証料、月額総賃料の1.5%/1年毎10,000円 【アーク賃貸保証】月額総賃料の40%/次年度以降10,000円※ |
契約期間 |
2年 |
入居可能日 |
即入居可 |
フリーレント期間 |
- |
取引形態 |
一般媒介 |
備考 |
- |
アリカ曳舟Ⅱ 0701号室の建物情報
建物名称 |
アリカ曳舟Ⅱ |
|---|---|
最寄駅 |
|
所在地 |
東京都墨田区八広 |
階層 |
7階部分(地上8階建) |
構造 |
RC |
築年数 |
新築 |
駐車場 |
- |
小学校学区 |
第三吾嬬小学校 |
中学校学区 |
寺島中学校 |
- 学区データについて
- ※学区データは必ずしも正確とは限りません。詳細に関しては最寄店舗または各自治体の教育委員会に必ずご確認ください。
無料この物件に問い合わせ
- アリカ曳舟Ⅱ 0701号室

-
14.7万円
(共益費
10,000円)
- 敷
- -
- 礼
- -
- 保
- -
- 償
- -
アリカ曳舟Ⅱ 0701号室の物件のお問い合わせ先・取り扱い店舗
ハウスコム 事業戦略室
- アクセス
-
山手線「品川駅」港南口徒歩3分
- 住所
- 〒108-0075 東京都港区港南2-16-1 品川イーストワンタワー9階
- 営業時間
- 10:00~17:00
- 定休日
- 土曜日・日曜日(祝日定休)
- 営業エリア
- 北区、荒川区、豊島区、文京区、台東区、中央区、新宿区、千代田区、渋谷区、港区、品川区
- 取引態様
- 賃貸仲介業


















