野火止戸建 1号室(5DK)の賃貸物件(賃貸一戸建て)
埼玉県新座市にある野火止戸建 1号室は温水洗浄便座、ルーフバルコニー、フローリング、和室あり、プロパンガスなどが特徴です。最寄り駅の武蔵野線新座駅から徒歩13分です。野火止戸建 1号室の詳細はハウスコム 志木店までお気軽にお問い合わせください!
情報更新日:
次回更新予定日:
※次回更新予定日について:お店側では順次空室確認を行っていますが、次回更新予定日までに空室確認が行えない場合には、この物件情報は自動的に削除されます。
野火止戸建 1号室の賃貸物件部屋概要
家賃 |
14万円
初期費用を |
|---|---|
共益費 |
-
入居可能時期 |
敷金/礼金 |
2ヶ月 / - |
保証金/ |
- / - |
最寄駅 |
|
所在地 |
埼玉県新座市野火止 |
部屋番号 |
1号室 |
間取り |
5DK(DK8・洋8・洋8・和4.5・和6・和8) |
専有面積 |
98.52㎡ |
築年数 |
1983年10月(築43年) |
階数 |
地上2階建 |
方位・位置 |
南西 / その他 |
物件種別 |
賃貸一戸建て |
構造 |
木造 |
駐車場 |
空有 賃料に含む |
小学校学区 |
大和田小学校 |
中学校学区 |
第二中学校 |
他の空き部屋 |
ー |
- 学区データについて
- ※学区データは必ずしも正確とは限りません。詳細に関しては最寄店舗または各自治体の教育委員会に必ずご確認ください。
野火止戸建 1号室の特徴
契約条件
礼金が無料なため、初期費用が比較的安くなる傾向にあります。
室内設備
お風呂とトイレは別です。お風呂には、追い焚き機能が備わっています。 トイレは、温水洗浄便座機能付きになります。 女性に嬉しい設備の独立した洗面化粧台があります。 洗濯に便利な設備として、室内洗濯機置場があります。
居室状況
居室には、和室の居室もあり、子育てやリラックススペースとしての利用もできます。 お部屋の床は、フローリングとなっており、エアコンが設置されています。 照明器具が備え付けられており、入居後すぐ生活が始められます。
建物設備共用部分
居室外の専有スペースとして、洗濯物を干すなどの用途として利用できるバルコニーがあります。 駐車場があり、無料で利用することができます。
周辺施設
この物件の学区は、大和田小学校区・第二中学校区です。
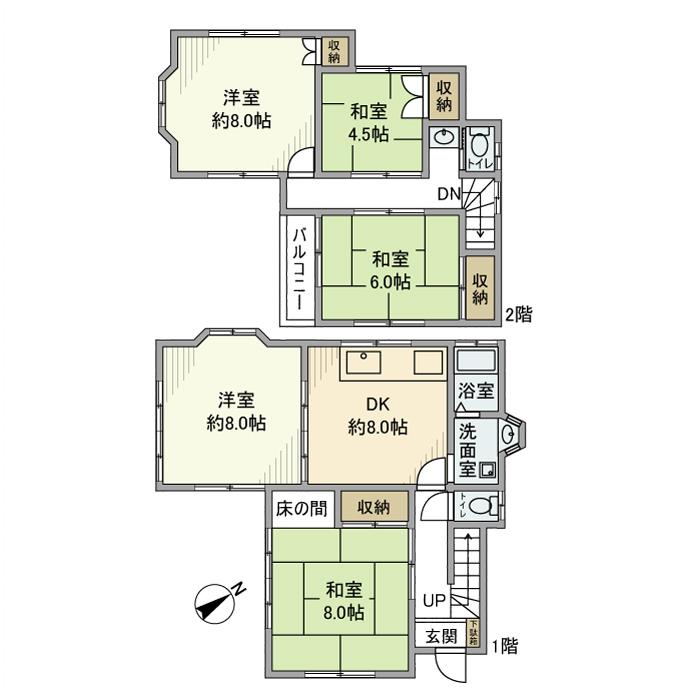
野火止戸建 1号室の間取り
間取り:5DK
間取詳細:5DK(DK8・洋8・洋8・和4.5・和6・和8)
専有面積:98.52㎡
方位:南西
部屋位置:その他
野火止戸建 1号室の設備
バス・トイレ
バス・トイレ別
追い焚き
温水洗浄便座
独立洗面台
バルコニー
バルコニー
ルーフバルコニー
室内設備
エアコン
フローリング
室内洗濯機置場
照明器具付
和室あり
インフラ
プロパンガス
ライフステージ
一人暮らしに人気の設備
カップルに人気の設備
家族に人気の設備
夫婦に人気の設備
三世代で人気の設備
こだわり
外で子どもと遊びたい
雨の日でも洗濯したい
洋室で暮らしたい
趣味
ガーデニングが好き
お得な条件
駐車場無料
野火止戸建 1号室の賃貸契約情報
毎月支払う |
家賃14万円/月共益費- |
|---|---|
初期費用 |
敷金2ヶ月 (28万円)礼金-保証金-敷引き償却金- |
更新料 |
140,000円 |
鍵交換費用 |
- |
室内清掃費用 |
- |
駐車場登録料 1台(利用時のみ) |
11,000円 |
除菌施工料(契約時のみ) |
19,800円 |
駐車場料金 |
空有 賃料に含む |
損保・ |
借家賠付きの火災保険にご加入いただきます。 |
保証会社 |
加入要 保証会社利用料:保証会社 要:初回 賃料総額100%+月額 賃料総額2%(最低1,000円) |
契約期間 |
2年 |
入居可能日 |
相談 |
フリーレント期間 |
- |
取引形態 |
一般媒介 |
備考 |
- |
野火止戸建 1号室の建物情報
建物名称 |
野火止戸建 |
|---|---|
最寄駅 |
|
所在地 |
埼玉県新座市野火止 |
階層 |
地上2階建 |
構造 |
木造 |
築年数 |
1983年10月(築43年) |
駐車場 |
空有 賃料に含む |
小学校学区 |
大和田小学校 |
中学校学区 |
第二中学校 |
- 学区データについて
- ※学区データは必ずしも正確とは限りません。詳細に関しては最寄店舗または各自治体の教育委員会に必ずご確認ください。
無料この物件に問い合わせ
- 野火止戸建 1号室

-
14万円
(共益費
-)
- 敷
- 2ヶ月
- 礼
- -
- 保
- -
- 償
- -
野火止戸建 1号室の物件のお問い合わせ先・取り扱い店舗
ハウスコム 志木店
- アクセス
-
東武東上線「志木駅」南口徒歩1分
- 住所
- 〒352-0001 埼玉県新座市東北2丁目31−14 第八みずほ館 1階
- 営業時間
- 10:00~18:00
- 定休日
- 水曜日
- 営業エリア
- 志木市,新座市,朝霞市,和光市,富士見市,ふじみ野市,入間郡みよし町
- 取引態様
- 賃貸仲介業


























