三田の完工年月(2003年1月)築の賃貸マンション ***号室(12階/1LDK)の賃貸物件(賃貸マンション)
東京都港区にある三田の完工年月(2003年1月)築の賃貸マンション ***号室は浴室乾燥機、2階以上、南向き、エレベーター、防犯カメラなどが特徴です。最寄り駅の都営大江戸線麻布十番駅から徒歩3分です。三田の完工年月(2003年1月)築の賃貸マンション ***号室の詳細はハウスコム 五反田店までお気軽にお問い合わせください!
情報更新日:
次回更新予定日:
※次回更新予定日について:お店側では順次空室確認を行っていますが、次回更新予定日までに空室確認が行えない場合には、この物件情報は自動的に削除されます。
三田の完工年月(2003年1月)築の賃貸マンション ***号室の賃貸物件部屋概要
家賃 |
34.8万円
初期費用を |
|---|---|
共益費 |
25,000円
入居可能時期 |
敷金/礼金 |
1ヶ月 / 1ヶ月 |
保証金/ |
- / - |
最寄駅 |
|
所在地 |
東京都港区三田 |
部屋番号 |
***号室 |
間取り |
1LDK |
専有面積 |
55.07㎡ |
築年数 |
2003年1月(築24年) |
階数 |
12階部分(地上25階地下2階建) |
方位・位置 |
南 / その他 |
物件種別 |
賃貸マンション |
構造 |
RC |
駐車場 |
55,000円 |
小学校学区 |
赤羽小学校 |
中学校学区 |
三田中学校 |
他の空き部屋 |
***号室 ***号室 ***号室 ***号室 ***号室 ***号室 ***号室 |
- 学区データについて
- ※学区データは必ずしも正確とは限りません。詳細に関しては最寄店舗または各自治体の教育委員会に必ずご確認ください。
三田の完工年月(2003年1月)築の賃貸マンション ***号室の特徴
セキュリティ
この物件の建物には、オートロックや防犯カメラや宅配ボックスが設置されており、来客時には居室内のテレビモニターにて訪問者の顔を確認することができます。
室内設備
システムキッチンが備え付けられています。 お風呂とトイレは別です。お風呂には、追い焚き機能が備わっています。 トイレは、温水洗浄便座機能付きになります。 洗濯に便利な設備として、浴室乾燥機も設置されているので、梅雨時の生乾き臭も比較的防ぐことができます。
居室状況
お部屋の床は、フローリングとなっており、エアコンが設置されています。 収納スペースとして、基本的な居室にクローゼットがあります。
建物設備共用部分
建物の共用スペースに、日々の出入に便利なエレベーターや、いざという時の防犯カメラや、急な外出や不在がちのご家庭の荷物受け取りに便利な宅配ボックスが設置されています。 この物件の建物は、建物と地面の間に設置した免震装置によって、地震の揺れを建物に伝えにくくするように設計された免震構造の建築物です。
周辺施設
この物件の学区は、赤羽小学校区・三田中学校区です。
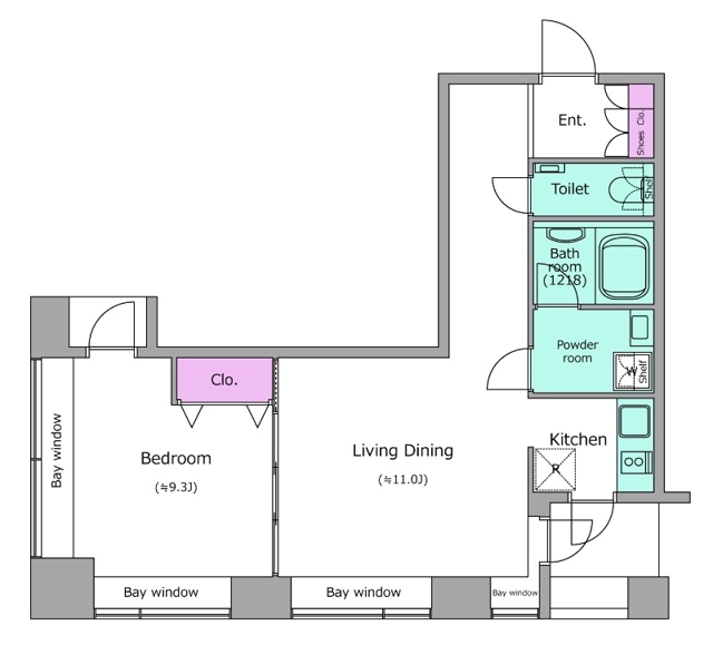
三田の完工年月(2003年1月)築の賃貸マンション ***号室の間取り
間取り:1LDK
間取詳細:1LDK
専有面積:55.07㎡
方位:南
部屋位置:その他
三田の完工年月(2003年1月)築の賃貸マンション ***号室の設備
キッチン
システムキッチン
バス・トイレ
バス・トイレ別
追い焚き
浴室乾燥機
温水洗浄便座
玄関
TVモニタ付インターホン
オートロック
宅配ボックス
収納
クローゼット
室内設備
エアコン
フローリング
位置・立地
2階以上
南向き
インフラ
CATV
BS
CS
建物設備
エレベーター
防犯カメラ
免震構造
制震構造
ライフステージ
一人暮らしに人気の設備
カップルに人気の設備
家族に人気の設備
夫婦に人気の設備
三世代で人気の設備
トレンド
地震対策された建物
こだわり
セキュリティ対策重視
雨の日でも洗濯したい
洋室で暮らしたい
三田の完工年月(2003年1月)築の賃貸マンション ***号室の賃貸契約情報
毎月支払う |
家賃34.8万円/月共益費25,000円/月 |
|---|---|
初期費用 |
敷金1ヶ月 (34.8万円)礼金1ヶ月 (34.8万円)保証金-敷引き償却金- |
更新料 |
- |
鍵交換費用 |
49,500円 |
室内清掃費用 |
- |
入居者限定会員サービス/2年 |
11,000円 |
駐車場料金 |
55,000円 |
損保・ |
借家賠付きの火災保険にご加入いただきます。 |
保証会社 |
加入要 保証会社利用料:【IRS③】IUCレジデンシャルサポート |
契約期間 |
定期借家 2年 |
入居可能日 |
2026年04月中旬 |
フリーレント期間 |
- |
取引形態 |
一般媒介 |
備考 |
- |
三田の完工年月(2003年1月)築の賃貸マンション ***号室の建物情報
建物名称 |
三田の完工年月(2003年1月)築の賃貸マンション |
|---|---|
最寄駅 |
|
所在地 |
東京都港区三田 |
階層 |
12階部分(地上25階地下2階建) |
構造 |
RC |
築年数 |
2003年1月(築24年) |
駐車場 |
55,000円 |
小学校学区 |
赤羽小学校 |
中学校学区 |
三田中学校 |
- 学区データについて
- ※学区データは必ずしも正確とは限りません。詳細に関しては最寄店舗または各自治体の教育委員会に必ずご確認ください。
無料この物件に問い合わせ
- 三田の完工年月(2003年1月)築の賃貸マンション ***号室

-
34.8万円
(共益費
25,000円)
- 敷
- 1ヶ月
- 礼
- 1ヶ月
- 保
- -
- 償
- -
三田の完工年月(2003年1月)築の賃貸マンション ***号室の物件のお問い合わせ先・取り扱い店舗
ハウスコム 五反田店
- アクセス
-
山手線「五反田駅」東口徒歩1分
都営浅草線「五反田駅」A6出口より徒歩1分
- 住所
- 〒141-0022 東京都品川区東五反田1丁目12−12 落合ビル 2F
- 営業時間
- 10:00~18:00
- 定休日
- なし
- 営業エリア
- 品川区,大田区,港区,目黒区
- 取引態様
- 賃貸仲介業


























