ミリアレジデンス広尾 0901号室(9階/1K)の賃貸物件(賃貸マンション)
東京都渋谷区にあるミリアレジデンス広尾 0901号室は浴室乾燥機、TVモニタ付インターホン、エアコン、照明器具付、バイク置き場などが特徴です。最寄り駅の東京メトロ 日比谷線広尾駅から徒歩8分です。ミリアレジデンス広尾 0901号室の詳細はハウスコム 事業戦略室までお気軽にお問い合わせください!
情報更新日:
次回更新予定日:
※次回更新予定日について:お店側では順次空室確認を行っていますが、次回更新予定日までに空室確認が行えない場合には、この物件情報は自動的に削除されます。
ミリアレジデンス広尾 0901号室の賃貸物件部屋概要
家賃 |
17.4万円
初期費用を |
|---|---|
共益費 |
10,000円
入居可能時期 |
敷金/礼金 |
- / - |
保証金/ |
- / - |
最寄駅 |
|
所在地 |
東京都渋谷区広尾 |
部屋番号 |
0901号室 |
間取り |
1K(洋7.1) |
専有面積 |
25.44㎡ |
築年数 |
2023年4月(築3年) |
階数 |
9階部分(地上12階建) |
方位・位置 |
北 / その他 |
物件種別 |
賃貸マンション |
構造 |
RC |
駐車場 |
無 |
小学校学区 |
臨川小学校 |
中学校学区 |
広尾中学校 |
他の空き部屋 |
0501号室 0502号室 0802号室 |
- 学区データについて
- ※学区データは必ずしも正確とは限りません。詳細に関しては最寄店舗または各自治体の教育委員会に必ずご確認ください。
ミリアレジデンス広尾 0901号室の特徴
契約条件
ペットの飼育もご相談ください。 敷金と礼金が無料なため、初期費用が比較的安くなる傾向にあります。
セキュリティ
この物件の建物には、オートロックや防犯カメラや宅配ボックスが設置されており、来客時には居室内のテレビモニターにて訪問者の顔を確認することができます。
室内設備
トイレは、温水洗浄便座機能付きになります。 洗濯に便利な設備として、浴室乾燥機も設置されているので、梅雨時の生乾き臭も比較的防ぐことができます。
居室状況
エアコンが設置されています。 照明器具が備え付けられており、インターネットも無料で入居後すぐ生活が始められます。 収納スペースとして、玄関にはシューズボックスがあります。
建物設備共用部分
建物の共用スペースに、日々の出入に便利なエレベーターや、いざという時の防犯カメラや、急な外出や不在がちのご家庭の荷物受け取りに便利な宅配ボックスが設置されています。 駐輪場、バイク置き場が利用できます。
周辺施設
この物件の学区は、臨川小学校区・広尾中学校区です。
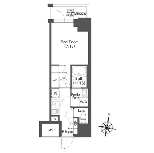
ミリアレジデンス広尾 0901号室の間取り
間取り:1K
間取詳細:1K(洋7.1)
専有面積:25.44㎡
方位:北
部屋位置:その他
ミリアレジデンス広尾 0901号室の設備
バス・トイレ
浴室乾燥機
温水洗浄便座
玄関
TVモニタ付インターホン
オートロック
宅配ボックス
収納
シューズボックス
室内設備
エアコン
照明器具付
位置・立地
2階以上
建物設備
エレベーター
防犯カメラ
駐輪場
バイク置き場
入居条件
ペット可・相談
ライフステージ
一人暮らしに人気の設備
カップルに人気の設備
こだわり
セキュリティ対策重視
雨の日でも洗濯したい
趣味
オークション・通販が好き
お得な条件
インターネット無料
ミリアレジデンス広尾 0901号室の賃貸契約情報
毎月支払う |
家賃17.4万円/月共益費10,000円/月 |
|---|---|
初期費用 |
敷金-礼金-保証金-敷引き償却金- |
更新料 |
174,000円 |
鍵交換費用 |
- |
室内清掃費用 |
- |
鍵交換代 |
33,000円 |
駐車場料金 |
無 |
損保・ |
借家賠付きの火災保険にご加入いただきます。 |
保証会社 |
加入要 保証会社:オリコ 保証会社利用料:オリコフォレントインシュア 保証料:賃料等の50%(最低2万)、月次保証料:賃料等の1%(更新料無) |
契約期間 |
定期借家 3年 |
入居可能日 |
2026年05月下旬 |
フリーレント期間 |
- |
取引形態 |
一般媒介 |
備考 |
清掃費:60500円(退去時請求).エアコン清掃費:16500円(退去時請求) |
ミリアレジデンス広尾 0901号室の建物情報
建物名称 |
ミリアレジデンス広尾 |
|---|---|
最寄駅 |
|
所在地 |
東京都渋谷区広尾 |
階層 |
9階部分(地上12階建) |
構造 |
RC |
築年数 |
2023年4月(築3年) |
駐車場 |
無 |
小学校学区 |
臨川小学校 |
中学校学区 |
広尾中学校 |
- 学区データについて
- ※学区データは必ずしも正確とは限りません。詳細に関しては最寄店舗または各自治体の教育委員会に必ずご確認ください。
無料この物件に問い合わせ
- ミリアレジデンス広尾 0901号室

-
17.4万円
(共益費
10,000円)
- 敷
- -
- 礼
- -
- 保
- -
- 償
- -
ミリアレジデンス広尾 0901号室の物件のお問い合わせ先・取り扱い店舗
ハウスコム 事業戦略室
- アクセス
-
山手線「品川駅」港南口徒歩3分
- 住所
- 〒108-0075 東京都港区港南2-16-1 品川イーストワンタワー9階
- 営業時間
- 10:00~17:00
- 定休日
- 土曜日・日曜日(祝日定休)
- 営業エリア
- 北区、荒川区、豊島区、文京区、台東区、中央区、新宿区、千代田区、渋谷区、港区、品川区
- 取引態様
- 賃貸仲介業





























