レオネクストジュピター 107号室(1階/1K)の賃貸物件(賃貸マンション)
埼玉県さいたま市見沼区にあるレオネクストジュピター 107号室は電気コンロ、追い焚き、TVモニタ付インターホン、1階、インターネット可などが特徴です。最寄り駅の東北本線東大宮駅から徒歩27分です。レオネクストジュピター 107号室の詳細はハウスコム 大宮東口店までお気軽にお問い合わせください!
情報更新日:
次回更新予定日:
※次回更新予定日について:お店側では順次空室確認を行っていますが、次回更新予定日までに空室確認が行えない場合には、この物件情報は自動的に削除されます。
レオネクストジュピター 107号室の賃貸物件部屋概要
家賃 |
5.3万円
初期費用を |
|---|---|
共益費 |
7,000円
入居可能時期 |
敷金/礼金 |
- / 53,000円 |
保証金/ |
- / - |
最寄駅 |
|
所在地 |
埼玉県さいたま市見沼区春岡 |
部屋番号 |
107号室 |
間取り |
1K |
専有面積 |
29.81㎡ |
築年数 |
2010年6月(築16年) |
階数 |
1階部分(地上3階建) |
方位・位置 |
ー / その他 |
物件種別 |
賃貸マンション |
構造 |
鉄骨造 |
駐車場 |
8,800円 |
小学校学区 |
春岡小学校 |
中学校学区 |
春野中学校 |
他の空き部屋 |
102号室 206号室 |
- 学区データについて
- ※学区データは必ずしも正確とは限りません。詳細に関しては最寄店舗または各自治体の教育委員会に必ずご確認ください。
レオネクストジュピター 107号室の特徴
契約条件
敷金が無料なため、初期費用が比較的安くなる傾向にあります。
セキュリティ
来客時には居室内のテレビモニターにて訪問者の顔を確認することができます。
室内設備
電気コンロが備え付けられています。 お風呂とトイレは別です。お風呂には、追い焚き機能が備わっています。 トイレは、温水洗浄便座機能付きになります。 洗濯に便利な設備として、室内洗濯機置場があります。
居室状況
エアコンが設置されています。
建物設備共用部分
居室外の専有スペースとして、洗濯物を干すなどの用途として利用できるバルコニーがあります。
周辺施設
この物件の学区は、春岡小学校区・春野中学校区です。
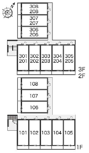
レオネクストジュピター 107号室の間取り
間取り:1K
間取詳細:1K
専有面積:29.81㎡
方位:ー
部屋位置:その他
レオネクストジュピター 107号室の設備
キッチン
電気コンロ
バス・トイレ
バス・トイレ別
追い焚き
温水洗浄便座
玄関
TVモニタ付インターホン
バルコニー
バルコニー
ルーフバルコニー
室内設備
エアコン
室内洗濯機置場
位置・立地
1階
インフラ
インターネット可
ライフステージ
一人暮らしに人気の設備
カップルに人気の設備
家族に人気の設備
夫婦に人気の設備
三世代で人気の設備
こだわり
外で子どもと遊びたい
雨の日でも洗濯したい
寝るためだけの部屋
趣味
ガーデニングが好き
レオネクストジュピター 107号室の賃貸契約情報
毎月支払う |
家賃5.3万円/月共益費7,000円/月 |
|---|---|
初期費用 |
敷金-礼金53,000円保証金-敷引き償却金- |
更新料 |
- |
鍵交換費用 |
16,500円 |
室内清掃費用 |
38,500円 |
抗菌施工(任意) |
23,760円 |
駐車場料金 |
8,800円 |
損保・ |
借家賠付きの火災保険にご加入いただきます。 |
保証会社 |
加入要 保証会社利用料:保証料:63590円(契約内容により100~120%で変動有)※記載金額は120%の場合 |
契約期間 |
- |
入居可能日 |
即入居可 |
フリーレント期間 |
- |
取引形態 |
一般媒介 |
備考 |
- |
レオネクストジュピター 107号室の建物情報
建物名称 |
レオネクストジュピター |
|---|---|
最寄駅 |
|
所在地 |
埼玉県さいたま市見沼区春岡 |
階層 |
1階部分(地上3階建) |
構造 |
鉄骨造 |
築年数 |
2010年6月(築16年) |
駐車場 |
8,800円 |
小学校学区 |
春岡小学校 |
中学校学区 |
春野中学校 |
- 学区データについて
- ※学区データは必ずしも正確とは限りません。詳細に関しては最寄店舗または各自治体の教育委員会に必ずご確認ください。
無料この物件に問い合わせ
- レオネクストジュピター 107号室

-
5.3万円
(共益費
7,000円)
- 敷
- -
- 礼
- 53,000円
- 保
- -
- 償
- -
レオネクストジュピター 107号室の物件のお問い合わせ先・取り扱い店舗
ハウスコム 大宮東口店
- アクセス
-
京浜東北・根岸線「大宮駅」東口(北)徒歩1分
- 住所
- 〒330-0846 埼玉県さいたま市大宮区大門町1丁目92−7 ハイカラ堂ビル 2階
- 営業時間
- 10:00~18:00
- 定休日
- 水曜日
- 営業エリア
- さいたま市大宮区、中央区、北区、西区、見沼区、西区、浦和区、岩槻区、上尾市、蓮田市、白岡市、伊奈町 etc.
- 取引態様
- 賃貸仲介業




















