ブルックサイドレジデンス木場 410号室(4階/1LDK)の賃貸物件(賃貸マンション)
東京都江東区にあるブルックサイドレジデンス木場 410号室は宅配ボックス、バルコニー、2階以上、エレベーター、ペット可・相談などが特徴です。最寄り駅の東京メトロ 東西線木場駅から徒歩9分です。ブルックサイドレジデンス木場 410号室の詳細はハウスコム 事業戦略室までお気軽にお問い合わせください!
情報更新日:
次回更新予定日:
※次回更新予定日について:お店側では順次空室確認を行っていますが、次回更新予定日までに空室確認が行えない場合には、この物件情報は自動的に削除されます。
ブルックサイドレジデンス木場 410号室の賃貸物件部屋概要
- 学区データについて
- ※学区データは必ずしも正確とは限りません。詳細に関しては最寄店舗または各自治体の教育委員会に必ずご確認ください。
ブルックサイドレジデンス木場 410号室の特徴
契約条件
ペットの飼育もご相談ください。 礼金が無料なため、初期費用が比較的安くなる傾向にあります。
セキュリティ
この物件の建物には、オートロックや宅配ボックスが設置されております。
室内設備
システムキッチンが備え付けられています。 お風呂とトイレは別です。お風呂には、追い焚き機能が備わっています。 女性に嬉しい設備の独立した洗面化粧台があります。 洗濯に便利な設備として、室内洗濯機置場があります。浴室乾燥機も設置されているので、梅雨時の生乾き臭も比較的防ぐことができます。
居室状況
お部屋の床は、フローリングとなっており、エアコンが設置されています。
建物設備共用部分
居室外の専有スペースとして、洗濯物を干すなどの用途として利用できるバルコニーがあります。 建物の共用スペースに、日々の出入に便利なエレベーターや、急な外出や不在がちのご家庭の荷物受け取りに便利な宅配ボックスが設置されています。 バイク置き場が利用できます。
周辺施設
この物件の学区は、枝川小学校区・深川第八中学校区です。
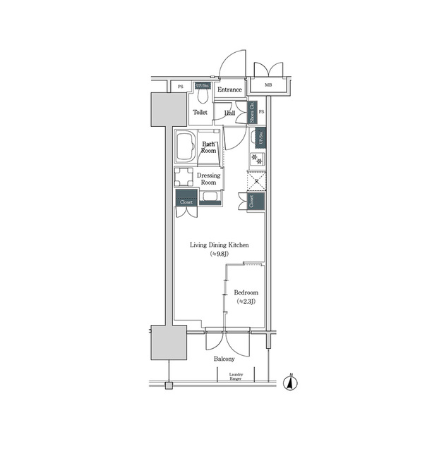
ブルックサイドレジデンス木場 410号室の間取り
間取り:1LDK
間取詳細:1LDK
専有面積:30.94㎡
方位:南
部屋位置:その他
ブルックサイドレジデンス木場 410号室の設備
キッチン
システムキッチン
バス・トイレ
バス・トイレ別
追い焚き
浴室乾燥機
独立洗面台
玄関
オートロック
宅配ボックス
バルコニー
バルコニー
ルーフバルコニー
室内設備
エアコン
フローリング
室内洗濯機置場
位置・立地
2階以上
南向き
インフラ
CATV
建物設備
エレベーター
バイク置き場
入居条件
ペット可・相談
ライフステージ
一人暮らしに人気の設備
カップルに人気の設備
家族に人気の設備
夫婦に人気の設備
三世代で人気の設備
こだわり
外で子どもと遊びたい
雨の日でも洗濯したい
洋室で暮らしたい
趣味
ガーデニングが好き
ブルックサイドレジデンス木場 410号室の賃貸契約情報
毎月支払う |
家賃15.1万円/月共益費20,000円/月 |
|---|---|
初期費用 |
敷金1ヶ月 (15.1万円)礼金-保証金-敷引き償却金- |
更新料 |
151,000円 |
鍵交換費用 |
- |
室内清掃費用 |
- |
室内清掃費 |
48,400円 |
駐車場料金 |
無 |
損保・ |
借家賠付きの火災保険にご加入いただきます。 |
保証会社 |
加入要 保証会社利用料:保証会社名:株式会社CASA/初回保証料(最低二万円):月額賃料等の50%、2年目以降:一万円/年、決済手数料三百円(税込)/月 |
契約期間 |
2年 |
入居可能日 |
2026年03月中旬 |
フリーレント期間 |
- |
取引形態 |
一般媒介 |
備考 |
- |
ブルックサイドレジデンス木場 410号室の建物情報
建物名称 |
ブルックサイドレジデンス木場 |
|---|---|
最寄駅 |
|
所在地 |
東京都江東区塩浜 |
階層 |
4階部分(地上18階建) |
構造 |
RC |
築年数 |
新築 |
駐車場 |
無 |
小学校学区 |
枝川小学校 |
中学校学区 |
深川第八中学校 |
- 学区データについて
- ※学区データは必ずしも正確とは限りません。詳細に関しては最寄店舗または各自治体の教育委員会に必ずご確認ください。
無料この物件に問い合わせ
- ブルックサイドレジデンス木場 410号室

-
15.1万円
(共益費
20,000円)
- 敷
- 1ヶ月
- 礼
- -
- 保
- -
- 償
- -
ブルックサイドレジデンス木場 410号室の物件のお問い合わせ先・取り扱い店舗
ハウスコム 事業戦略室
- アクセス
-
山手線「品川駅」港南口徒歩3分
- 住所
- 〒108-0075 東京都港区港南2-16-1 品川イーストワンタワー9階
- 営業時間
- 10:00~17:00
- 定休日
- 土曜日・日曜日(祝日定休)
- 営業エリア
- 北区、荒川区、豊島区、文京区、台東区、中央区、新宿区、千代田区、渋谷区、港区、品川区
- 取引態様
- 賃貸仲介業










