苅田の完工年月(2026年5月)築の賃貸アパート ***号室(2階/1LDK)の賃貸物件(賃貸アパート)
大阪府大阪市住吉区にある苅田の完工年月(2026年5月)築の賃貸アパート ***号室はIHコンロ、温水洗浄便座、オートロック、クローゼット、角部屋などが特徴です。最寄り駅の大阪メトロ 御堂筋線長居駅から徒歩9分です。苅田の完工年月(2026年5月)築の賃貸アパート ***号室の詳細はクラスモ FC天王寺駅前店までお気軽にお問い合わせください!
情報更新日:
次回更新予定日:
※次回更新予定日について:お店側では順次空室確認を行っていますが、次回更新予定日までに空室確認が行えない場合には、この物件情報は自動的に削除されます。
苅田の完工年月(2026年5月)築の賃貸アパート ***号室の賃貸物件部屋概要
家賃 |
7.3万円
初期費用を |
|---|---|
共益費 |
5,300円
入居可能時期 |
敷金/礼金 |
- / 150,000円 |
保証金/ |
- / - |
最寄駅 |
|
所在地 |
大阪府大阪市住吉区苅田 |
部屋番号 |
***号室 |
間取り |
1LDK(洋9.8・DK5.5) |
専有面積 |
36.10㎡ |
築年数 |
新築 |
階数 |
2階部分(地上3階建) |
方位・位置 |
東 / 角部屋 |
物件種別 |
賃貸アパート |
構造 |
木造 |
駐車場 |
18,700円 |
小学校学区 |
苅田北小学校 |
中学校学区 |
東我孫子中学校 |
他の空き部屋 |
***号室 ***号室 ***号室 ***号室 ***号室 ***号室 ***号室 ***号室 ***号室 |
- 学区データについて
- ※学区データは必ずしも正確とは限りません。詳細に関しては最寄店舗または各自治体の教育委員会に必ずご確認ください。
苅田の完工年月(2026年5月)築の賃貸アパート ***号室の特徴
契約条件
この物件は、2人入居もご契約できます。 また、ご契約時に保証人は不要です。 敷金が無料なため、初期費用が比較的安くなる傾向にあります。
セキュリティ
この物件の建物には、オートロックや宅配ボックスが設置されており、来客時には居室内のテレビモニターにて訪問者の顔を確認することができます。
室内設備
システムキッチンには、IHコンロが備え付けられています。 トイレは、温水洗浄便座機能付きになります。 女性に嬉しい設備のシャワーの付いている洗面化粧台があります。 洗濯に便利な設備として、室内洗濯機置場があります。浴室乾燥機も設置されているので、梅雨時の生乾き臭も比較的防ぐことができます。
居室状況
お部屋の床は、全居室フローリングとなっており、エアコンが設置されています。 照明器具が備え付けられており、インターネットも無料で入居後すぐ生活が始められます。 収納スペースとして、基本的な居室にクローゼットがあります。
建物設備共用部分
建物の共用スペースに、急な外出や不在がちのご家庭の荷物受け取りに便利な宅配ボックスが設置されています。
周辺施設
この物件の学区は、苅田北小学校区・東我孫子中学校区です。近くには、徒歩6分(410m)でドラッグストアがあります。
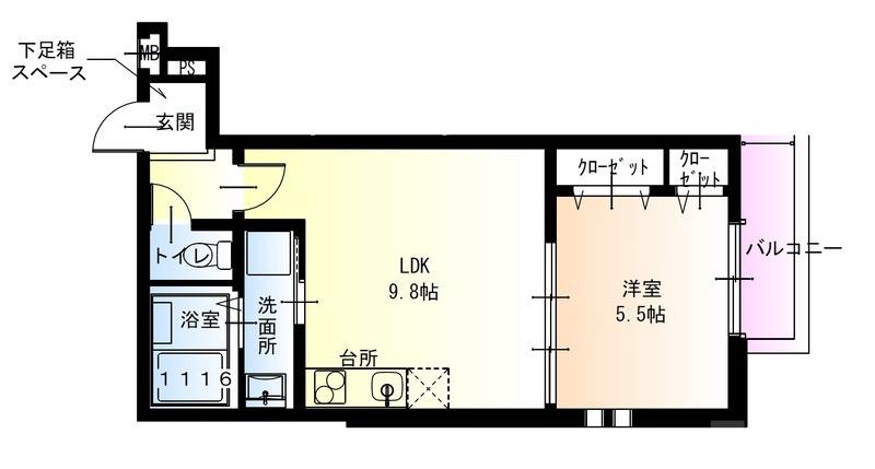
苅田の完工年月(2026年5月)築の賃貸アパート ***号室の間取り
間取り:1LDK
間取詳細:1LDK(洋9.8・DK5.5)
専有面積:36.10㎡
方位:東
部屋位置:角部屋
苅田の完工年月(2026年5月)築の賃貸アパート ***号室の設備
キッチン
システムキッチン
IHコンロ
バス・トイレ
バス・トイレ別
浴室乾燥機
温水洗浄便座
独立洗面台
シャワー付洗面化粧台
玄関
TVモニタ付インターホン
オートロック
宅配ボックス
収納
クローゼット
室内設備
エアコン
フローリング
全居室フローリング
室内洗濯機置場
照明器具付
位置・立地
2階以上
角部屋
インフラ
インターネット可
BS
入居条件
2人入居可
保証人不要
ライフステージ
一人暮らしに人気の設備
カップルに人気の設備
家族に人気の設備
夫婦に人気の設備
三世代で人気の設備
こだわり
雨の日でも洗濯したい
洋室で暮らしたい
趣味
オークション・通販が好き
お得な条件
インターネット無料
苅田の完工年月(2026年5月)築の賃貸アパート ***号室の賃貸契約情報
毎月支払う |
家賃7.3万円/月共益費5,300円/月 |
|---|---|
初期費用 |
敷金-礼金150,000円保証金-敷引き償却金- |
更新料 |
- |
鍵交換費用 |
11,000円 |
室内清掃費用 |
33,000円 |
駐車場料金 |
18,700円 |
損保・ |
借家賠付きの火災保険にご加入いただきます。 |
保証会社 |
加入要 保証会社:オリコフォレントインシュア 保証会社利用料:初回契約時:50%、更新時:1% |
契約期間 |
1年 |
入居可能日 |
2026年05月上旬 |
フリーレント期間 |
- |
取引形態 |
仲介 |
備考 |
- |
苅田の完工年月(2026年5月)築の賃貸アパート ***号室の建物情報
建物名称 |
苅田の完工年月(2026年5月)築の賃貸アパート |
|---|---|
最寄駅 |
|
所在地 |
大阪府大阪市住吉区苅田 |
階層 |
2階部分(地上3階建) |
構造 |
木造 |
築年数 |
新築 |
駐車場 |
18,700円 |
小学校学区 |
苅田北小学校 |
中学校学区 |
東我孫子中学校 |
- 学区データについて
- ※学区データは必ずしも正確とは限りません。詳細に関しては最寄店舗または各自治体の教育委員会に必ずご確認ください。
無料この物件に問い合わせ
- 苅田の完工年月(2026年5月)築の賃貸アパート ***号室

-
7.3万円
(共益費
5,300円)
- 敷
- -
- 礼
- 150,000円
- 保
- -
- 償
- -
苅田の完工年月(2026年5月)築の賃貸アパート ***号室の物件のお問い合わせ先・取り扱い店舗
クラスモ FC天王寺駅前店
- アクセス
-
大阪メトロ 御堂筋線「天王寺駅」徒歩1分
大阪環状線「天王寺駅」徒歩1分
大阪メトロ 谷町線「天王寺駅」徒歩3分
- 住所
- 〒543-0056 大阪府大阪市天王寺区堀越町16-9 毎日シルバービル1階
- 営業時間
- 09:30~18:30
- 定休日
- なし(年末年始)
- 営業エリア
- 吹田市・豊中市・淀川区・東淀川区・西淀川区 天王寺区・阿倍野区・中央区・浪速区
- 取引態様
- 賃貸仲介業・物件売買業・FC店





















