下高井戸4丁目戸建 1号室(1階/2SLDK)の賃貸物件(賃貸一戸建て)
東京都杉並区にある下高井戸4丁目戸建 1号室はバス・トイレ別、温水洗浄便座、クローゼット、フローリング、南向きなどが特徴です。最寄り駅の京王線桜上水駅から徒歩11分です。下高井戸4丁目戸建 1号室の詳細はハウスコム 明大前店までお気軽にお問い合わせください!
情報更新日:
次回更新予定日:
※次回更新予定日について:お店側では順次空室確認を行っていますが、次回更新予定日までに空室確認が行えない場合には、この物件情報は自動的に削除されます。
下高井戸4丁目戸建 1号室の賃貸物件部屋概要
家賃 |
25万円
初期費用を |
|---|---|
共益費 |
-
入居可能時期 |
敷金/礼金 |
- / 1ヶ月 |
保証金/ |
- / - |
最寄駅 |
|
所在地 |
東京都杉並区下高井戸 |
部屋番号 |
1号室 |
間取り |
2SLDK(洋6・洋4.1・洋3.8・LDK14.8) |
専有面積 |
66.55㎡ |
築年数 |
2023年10月(築3年) |
階数 |
1階部分(地上2階建) |
方位・位置 |
南 / 角部屋 |
物件種別 |
賃貸一戸建て |
構造 |
木造 |
駐車場 |
空有 賃料に含む |
小学校学区 |
高井戸第三小学校 |
中学校学区 |
向陽中学校 |
他の空き部屋 |
ー |
- 学区データについて
- ※学区データは必ずしも正確とは限りません。詳細に関しては最寄店舗または各自治体の教育委員会に必ずご確認ください。
下高井戸4丁目戸建 1号室の特徴
-
一人暮らしに人気の設備

-
カップルに人気の設備

-
家族に人気の設備

-
夫婦に人気の設備

-
三世代で人気の設備

-
外で子どもと遊びたい

-
雨の日でも洗濯したい

-
洋室で暮らしたい

-
料理が好き

-
推し活グッズを飾りたい

-
ガーデニングが好き

契約条件
敷金が無料なため、初期費用が比較的安くなる傾向にあります。
セキュリティ
来客時には居室内のテレビモニターにて訪問者の顔を確認することができます。
室内設備
システムキッチンには、IHコンロが備え付けられています。 お風呂とトイレは別です。お風呂には、追い焚き機能が備わっています。 トイレは、温水洗浄便座機能付きになります。 女性に嬉しい設備の独立した洗面化粧台があります。 洗濯に便利な設備として、室内洗濯機置場があります。浴室乾燥機も設置されているので、梅雨時の生乾き臭も比較的防ぐことができます。
居室状況
お部屋の床は、フローリングとなっており、エアコンと一部床下暖房が設置されています。 収納スペースとして、基本的な居室にクローゼットを設置、玄関にはシューズボックスがあります。
建物設備共用部分
居室外の専有スペースとして、洗濯物を干すなどの用途として利用できるバルコニーがあります。 駐車場があり、無料で利用することができます。駐輪場、バイク置き場が利用できます。
周辺施設
この物件の学区は、高井戸第三小学校区・向陽中学校区です。
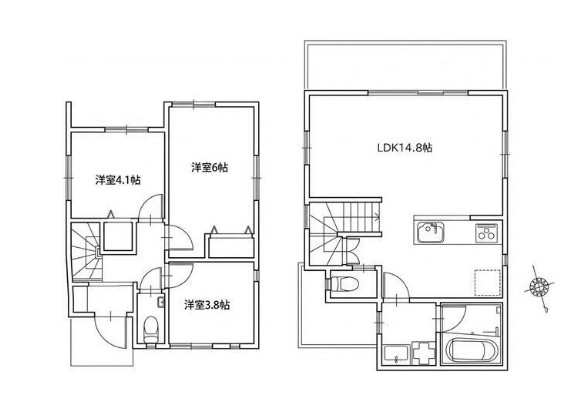
下高井戸4丁目戸建 1号室の間取り
間取り:2SLDK
間取詳細:2SLDK(洋6・洋4.1・洋3.8・LDK14.8)
専有面積:66.55㎡
方位:南
部屋位置:角部屋
下高井戸4丁目戸建 1号室の設備
キッチン
システムキッチン
カウンターキッチン
IHコンロ
バス・トイレ
バス・トイレ別
追い焚き
浴室乾燥機
温水洗浄便座
独立洗面台
玄関
TVモニタ付インターホン
収納
クローゼット
シューズボックス
バルコニー
バルコニー
ルーフバルコニー
室内設備
エアコン
フローリング
床下暖房
室内洗濯機置場
位置・立地
1階
角部屋
南向き
建物設備
駐輪場
バイク置き場
入居条件
オンライン相談可
オンライン内見可
ライフステージ
一人暮らしに人気の設備
カップルに人気の設備
家族に人気の設備
夫婦に人気の設備
三世代で人気の設備
こだわり
外で子どもと遊びたい
雨の日でも洗濯したい
洋室で暮らしたい
趣味
料理が好き
推し活グッズを飾りたい
ガーデニングが好き
お得な条件
駐車場無料
下高井戸4丁目戸建 1号室の賃貸契約情報
毎月支払う |
家賃25万円/月共益費- |
|---|---|
初期費用 |
敷金-礼金1ヶ月 (25万円)保証金-敷引き償却金- |
更新料 |
- |
鍵交換費用 |
- |
室内清掃費用 |
- |
くらしーど24 |
16,500円 |
駐車場料金 |
空有 賃料に含む |
損保・ |
借家賠付きの火災保険にご加入いただきます。 |
保証会社 |
加入要 保証会社利用料:初回保証料:総賃料の100%/月額保証料:総賃料の1.3% |
契約期間 |
定期借家 2028年 3月まで |
入居可能日 |
2026年03月下旬 |
フリーレント期間 |
- |
取引形態 |
一般媒介 |
備考 |
退去時ルームクリーニング費用:1650円/平米、エアコン内部洗浄代:16500円/台 |
下高井戸4丁目戸建 1号室の建物情報
建物名称 |
下高井戸4丁目戸建 |
|---|---|
最寄駅 |
|
所在地 |
東京都杉並区下高井戸 |
階層 |
1階部分(地上2階建) |
構造 |
木造 |
築年数 |
2023年10月(築3年) |
駐車場 |
空有 賃料に含む |
小学校学区 |
高井戸第三小学校 |
中学校学区 |
向陽中学校 |
- 学区データについて
- ※学区データは必ずしも正確とは限りません。詳細に関しては最寄店舗または各自治体の教育委員会に必ずご確認ください。
無料この物件に問い合わせ
- 下高井戸4丁目戸建 1号室

-
25万円
(共益費
-)
- 敷
- -
- 礼
- 1ヶ月
- 保
- -
- 償
- -
下高井戸4丁目戸建 1号室の物件のお問い合わせ先・取り扱い店舗
ハウスコム 明大前店
- アクセス
-
京王線「明大前駅」中央口徒歩1分
京王井の頭線「明大前駅」中央口徒歩1分
- 住所
- 〒156-0043 東京都世田谷区松原2丁目44−1 グランシーン明大前 1階
- 営業時間
- 10:00~18:00
- 定休日
- なし
- 営業エリア
- 世田谷区・杉並区・渋谷区・中野区・新宿区・三鷹市・調布市
- 取引態様
- 賃貸仲介業
















