エイチワイコネクト東大泉 0202号室(2階/1R)の賃貸物件(賃貸アパート)
東京都練馬区にあるエイチワイコネクト東大泉 0202号室は宅配ボックス、シューズボックス、エアコン、角部屋、プロパンガスなどが特徴です。最寄り駅の西武池袋線・豊島線大泉学園駅から徒歩10分です。エイチワイコネクト東大泉 0202号室の詳細はハウスコム 三鷹店までお気軽にお問い合わせください!
情報更新日:
次回更新予定日:
※次回更新予定日について:お店側では順次空室確認を行っていますが、次回更新予定日までに空室確認が行えない場合には、この物件情報は自動的に削除されます。
エイチワイコネクト東大泉 0202号室の賃貸物件部屋概要
家賃 |
7.25万円
初期費用を |
|---|---|
共益費 |
4,000円
入居可能時期 |
敷金/礼金 |
- / 1ヶ月 |
保証金/ |
- / - |
最寄駅 |
|
所在地 |
東京都練馬区東大泉 |
部屋番号 |
0202号室 |
間取り |
1R |
専有面積 |
12.62㎡ |
築年数 |
新築 |
階数 |
2階部分(地上2階建) |
方位・位置 |
北西 / 角部屋 |
物件種別 |
賃貸アパート |
構造 |
木造 |
駐車場 |
- |
小学校学区 |
大泉南小学校 |
中学校学区 |
大泉第二中学校 |
他の空き部屋 |
0101号室 0102号室 0103号室 0105号室 0106号室 0203号室 0205号室 |
- 学区データについて
- ※学区データは必ずしも正確とは限りません。詳細に関しては最寄店舗または各自治体の教育委員会に必ずご確認ください。
エイチワイコネクト東大泉 0202号室の特徴
契約条件
敷金が無料なため、初期費用が比較的安くなる傾向にあります。
セキュリティ
この物件の建物には、防犯カメラや宅配ボックスが設置されております。
室内設備
ガスコンロが備え付けられています。 洗濯に便利な設備として、室内洗濯機置場があります。
居室状況
お部屋の床は、フローリングとなっており、エアコンが設置されています。 インターネットも無料で入居後すぐ生活が始められます。 収納スペースとして、玄関にはシューズボックスがあります。
建物設備共用部分
建物の共用スペースに、いざという時の防犯カメラや、急な外出や不在がちのご家庭の荷物受け取りに便利な宅配ボックスが設置されています。
周辺施設
この物件の学区は、大泉南小学校区・大泉第二中学校区です。
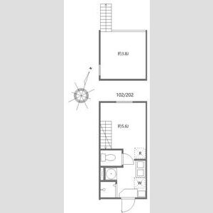
エイチワイコネクト東大泉 0202号室の間取り
間取り:1R
間取詳細:1R
専有面積:12.62㎡
方位:北西
部屋位置:角部屋
エイチワイコネクト東大泉 0202号室の設備
キッチン
ガスコンロ
玄関
宅配ボックス
収納
シューズボックス
室内設備
エアコン
フローリング
室内洗濯機置場
デザイナーズ
位置・立地
2階以上
最上階
角部屋
インフラ
インターネット可
プロパンガス
建物設備
防犯カメラ
入居条件
即入居可
ライフステージ
一人暮らしに人気の設備
カップルに人気の設備
家族に人気の設備
夫婦に人気の設備
三世代で人気の設備
こだわり
雨の日でも洗濯したい
洋室で暮らしたい
趣味
オークション・通販が好き
お得な条件
インターネット無料
エイチワイコネクト東大泉 0202号室の賃貸契約情報
毎月支払う |
家賃7.25万円/月共益費4,000円/月 |
|---|---|
初期費用 |
敷金-礼金1ヶ月 (7.25万円)保証金-敷引き償却金- |
更新料 |
108,750円 |
鍵交換費用 |
- |
室内清掃費用 |
- |
プレミアデスク(2年/税込) |
22,000円 |
契約時ルームクリーニング(税込) |
60,500円 |
町内会費/月額 |
300円 |
駐車場料金 |
- |
損保・ |
借家賠付きの火災保険にご加入いただきます。 |
保証会社 |
加入要 保証会社利用料:【シノケン】月額総賃料の50%~(最低保証料5万円)/次年度以降15000円~※引落とし手数料660円(税込)※別紙申込書有。弊社HP上の申込書タブより申込書をダウンロードし記入の上アップロード下さ |
契約期間 |
2年 |
入居可能日 |
即入居可 |
フリーレント期間 |
- |
取引形態 |
一般媒介 |
備考 |
- |
エイチワイコネクト東大泉 0202号室の建物情報
建物名称 |
エイチワイコネクト東大泉 |
|---|---|
最寄駅 |
|
所在地 |
東京都練馬区東大泉 |
階層 |
2階部分(地上2階建) |
構造 |
木造 |
築年数 |
新築 |
駐車場 |
- |
小学校学区 |
大泉南小学校 |
中学校学区 |
大泉第二中学校 |
- 学区データについて
- ※学区データは必ずしも正確とは限りません。詳細に関しては最寄店舗または各自治体の教育委員会に必ずご確認ください。
無料この物件に問い合わせ
- エイチワイコネクト東大泉 0202号室

-
7.25万円
(共益費
4,000円)
- 敷
- -
- 礼
- 1ヶ月
- 保
- -
- 償
- -
エイチワイコネクト東大泉 0202号室の物件のお問い合わせ先・取り扱い店舗
ハウスコム 三鷹店
- アクセス
-
中央本線(JR東日本)「三鷹駅」南口徒歩1分
- 住所
- 〒181-0013 東京都三鷹市下連雀3丁目45−2 麻沼ビル 1階
- 営業時間
- 10:00~18:00
- 定休日
- なし
- 営業エリア
- 三鷹市、武蔵野市、小金井市、杉並区、調布市、西東京市、練馬区、世田谷区
- 取引態様
- 賃貸仲介業


















