レオパレス原山 105号室(1階/1K)の賃貸物件(賃貸アパート)
東京都武蔵村山市にあるレオパレス原山 105号室はバス・トイレ別、エアコン、ロフト付、インターネット可、即入居可などが特徴です。最寄り駅の中央本線(JR東日本)立川駅からバスで45分、村山医療センター前 から徒歩20分です。レオパレス原山 105号室の詳細はハウスコム 立川店までお気軽にお問い合わせください!
情報更新日:
次回更新予定日:
※次回更新予定日について:お店側では順次空室確認を行っていますが、次回更新予定日までに空室確認が行えない場合には、この物件情報は自動的に削除されます。
レオパレス原山 105号室の賃貸物件部屋概要
家賃 |
4.4万円
初期費用を |
|---|---|
共益費 |
5,000円
入居可能時期 |
敷金/礼金 |
- / 44,000円 |
保証金/ |
- / - |
最寄駅 |
|
所在地 |
東京都武蔵村山市神明 |
部屋番号 |
105号室 |
間取り |
1K |
専有面積 |
20.28㎡ |
築年数 |
2001年5月(築25年) |
階数 |
1階部分(地上2階建) |
方位・位置 |
ー / その他 |
物件種別 |
賃貸アパート |
構造 |
木造 |
駐車場 |
無 |
小学校学区 |
第三小学校 |
中学校学区 |
第三中学校 |
他の空き部屋 |
ー |
- 学区データについて
- ※学区データは必ずしも正確とは限りません。詳細に関しては最寄店舗または各自治体の教育委員会に必ずご確認ください。
レオパレス原山 105号室の特徴
契約条件
敷金が無料なため、初期費用が比較的安くなる傾向にあります。
室内設備
電気コンロが備え付けられています。 トイレは、温水洗浄便座機能付きになります。 洗濯に便利な設備として、室内洗濯機置場があります。
居室状況
居室には、ロフトが設置されており大規模な収納スペースやセパレートされた寝室として活用できます。 エアコンが設置されています。
周辺施設
この物件の学区は、第三小学校区・第三中学校区です。
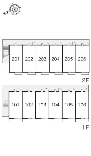
レオパレス原山 105号室の間取り
間取り:1K
間取詳細:1K
専有面積:20.28㎡
方位:ー
部屋位置:その他
レオパレス原山 105号室の設備
キッチン
電気コンロ
バス・トイレ
バス・トイレ別
温水洗浄便座
室内設備
エアコン
室内洗濯機置場
ロフト付
位置・立地
1階
インフラ
インターネット可
入居条件
即入居可
ライフステージ
一人暮らしに人気の設備
カップルに人気の設備
家族に人気の設備
夫婦に人気の設備
三世代で人気の設備
こだわり
雨の日でも洗濯したい
寝るためだけの部屋
レオパレス原山 105号室の賃貸契約情報
毎月支払う |
家賃4.4万円/月共益費5,000円/月 |
|---|---|
初期費用 |
敷金-礼金44,000円保証金-敷引き償却金- |
更新料 |
- |
鍵交換費用 |
16,500円 |
室内清掃費用 |
41,800円 |
抗菌施工(任意) |
23,760円 |
駐車場料金 |
無 |
損保・ |
借家賠付きの火災保険にご加入いただきます。 |
保証会社 |
加入要 保証会社利用料:保証料:67190円(契約内容により100~120%で変動有)※記載金額は120%の場合 |
契約期間 |
- |
入居可能日 |
即入居可 |
フリーレント期間 |
- |
取引形態 |
一般媒介 |
備考 |
鍵交換費10450円、退去時清掃費41800円、抗菌施工(任意)18040円から23760円(税込)/環境維持費550円/月、更新手数料16500円/2年(税込)/退去時清掃費:41800円(税込) |
レオパレス原山 105号室の建物情報
建物名称 |
レオパレス原山 |
|---|---|
最寄駅 |
|
所在地 |
東京都武蔵村山市神明 |
階層 |
1階部分(地上2階建) |
構造 |
木造 |
築年数 |
2001年5月(築25年) |
駐車場 |
無 |
小学校学区 |
第三小学校 |
中学校学区 |
第三中学校 |
- 学区データについて
- ※学区データは必ずしも正確とは限りません。詳細に関しては最寄店舗または各自治体の教育委員会に必ずご確認ください。
無料この物件に問い合わせ
- レオパレス原山 105号室

-
4.4万円
(共益費
5,000円)
- 敷
- -
- 礼
- 44,000円
- 保
- -
- 償
- -
レオパレス原山 105号室の物件のお問い合わせ先・取り扱い店舗
ハウスコム 立川店
水曜日営業
土日営業
年中無休(年末年始などを除く)
- アクセス
-
中央本線(JR東日本)「立川駅」北口徒歩1分
- 住所
- 〒190-0012 東京都立川市曙町2丁目13−1 TE曙ビル 5階
- 営業時間
- 10:00~18:00
- 定休日
- なし
- 営業エリア
- 立川市,国分寺市,小平市,国立市,日野市,昭島市,東大和市,武蔵村山市,青梅市,福生市,あきる野市
- 取引態様
- 賃貸仲介業
お問い合わせNo. HC5-1274399-105-0033




















