T‘s Cuore BLISS 自由が丘 302号室(3階/1R)の賃貸物件(賃貸アパート)
東京都目黒区にあるT‘s Cuore BLISS 自由が丘 302号室はIHコンロ、バス・トイレ別、TVモニタ付インターホン、フローリング、CSなどが特徴です。最寄り駅の東急東横線自由が丘駅から徒歩6分です。T‘s Cuore BLISS 自由が丘 302号室の詳細はハウスコム 自由が丘店までお気軽にお問い合わせください!
情報更新日:
次回更新予定日:
※次回更新予定日について:お店側では順次空室確認を行っていますが、次回更新予定日までに空室確認が行えない場合には、この物件情報は自動的に削除されます。
T‘s Cuore BLISS 自由が丘 302号室の賃貸物件部屋概要
家賃 |
21.3万円
初期費用を |
|---|---|
共益費 |
10,000円
入居可能時期 |
敷金/礼金 |
1ヶ月 / - |
保証金/ |
- / - |
最寄駅 |
|
所在地 |
東京都目黒区自由が丘 |
部屋番号 |
302号室 |
間取り |
1R(洋16.6・他8) |
専有面積 |
33.26㎡ |
築年数 |
新築 |
階数 |
3階部分(地上3階建) |
方位・位置 |
南東 / 角部屋 |
物件種別 |
賃貸アパート |
構造 |
木造 |
駐車場 |
無 |
小学校学区 |
緑ヶ丘小学校 |
中学校学区 |
第十一中学校 |
他の空き部屋 |
101号室 102号室 201号室 202号室 301号室 |
- 学区データについて
- ※学区データは必ずしも正確とは限りません。詳細に関しては最寄店舗または各自治体の教育委員会に必ずご確認ください。
T‘s Cuore BLISS 自由が丘 302号室の特徴
-
一人暮らしに人気の設備

-
カップルに人気の設備

-
家族に人気の設備

-
夫婦に人気の設備

-
三世代で人気の設備

-
外で子どもと遊びたい

-
雨の日でも洗濯したい

-
洋室で暮らしたい

-
料理が好き

-
推し活グッズを飾りたい

-
オークション・通販が好き

-
ガーデニングが好き

契約条件
この物件は、2人入居もご契約できます。 また、ご契約時に保証人は不要です。 礼金が無料なため、初期費用が比較的安くなる傾向にあります。
セキュリティ
この物件の建物には、オートロックや宅配ボックスが設置されており、来客時には居室内のテレビモニターにて訪問者の顔を確認することができます。
室内設備
システムキッチンには、IHコンロが備え付けられています。 お風呂とトイレは別です。お風呂には、追い焚き機能が備わっています。 トイレは、温水洗浄便座機能付きになります。 女性に嬉しい設備の独立した洗面化粧台があります。 洗濯に便利な設備として、室内洗濯機置場があります。浴室乾燥機も設置されているので、梅雨時の生乾き臭も比較的防ぐことができます。
居室状況
お部屋の床は、フローリングとなっており、エアコンが設置されています。 照明器具が備え付けられており、インターネットも無料で入居後すぐ生活が始められます。 収納スペースとして、基本的な居室にクローゼットがあります。
建物設備共用部分
居室外の専有スペースとして、洗濯物を干すなどの用途として利用できるバルコニーがあります。 建物の共用スペースに、急な外出や不在がちのご家庭の荷物受け取りに便利な宅配ボックスが設置されています。
周辺施設
この物件の学区は、緑ヶ丘小学校区・第十一中学校区です。
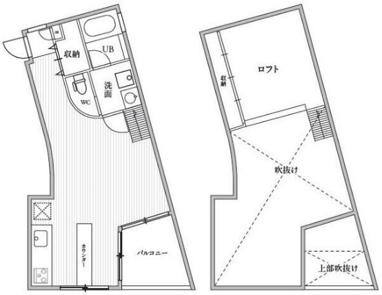
T‘s Cuore BLISS 自由が丘 302号室の間取り
間取り:1R
間取詳細:1R(洋16.6・他8)
専有面積:33.26㎡
方位:南東
部屋位置:角部屋
T‘s Cuore BLISS 自由が丘 302号室の設備
キッチン
システムキッチン
カウンターキッチン
IHコンロ
バス・トイレ
バス・トイレ別
追い焚き
浴室乾燥機
温水洗浄便座
独立洗面台
玄関
TVモニタ付インターホン
オートロック
宅配ボックス
収納
クローゼット
バルコニー
バルコニー
ルーフバルコニー
室内設備
エアコン
フローリング
室内洗濯機置場
照明器具付
デザイナーズ
位置・立地
2階以上
最上階
角部屋
インフラ
インターネット可
CATV
BS
CS
都市ガス
入居条件
2人入居可
オンライン相談可
オンライン内見可
保証人不要
ライフステージ
一人暮らしに人気の設備
カップルに人気の設備
家族に人気の設備
夫婦に人気の設備
三世代で人気の設備
こだわり
外で子どもと遊びたい
雨の日でも洗濯したい
洋室で暮らしたい
趣味
料理が好き
推し活グッズを飾りたい
オークション・通販が好き
ガーデニングが好き
お得な条件
フリーレント
インターネット無料
T‘s Cuore BLISS 自由が丘 302号室の賃貸契約情報
毎月支払う |
家賃21.3万円/月共益費10,000円/月 |
|---|---|
初期費用 |
敷金1ヶ月 (21.3万円)礼金-保証金-敷引き償却金- |
更新料 |
213,000円 |
鍵交換費用 |
- |
室内清掃費用 |
- |
駐車場料金 |
無 |
損保・ |
借家賠付きの火災保険にご加入いただきます。 |
保証会社 |
加入要 保証会社利用料:賃料総額の40% 1年毎10000円 月次1% |
契約期間 |
2年 |
入居可能日 |
2026年04月中旬 |
フリーレント期間 |
1ヶ月 |
取引形態 |
一般媒介 |
備考 |
フリーレント1カ月 鍵交換代あり |
T‘s Cuore BLISS 自由が丘 302号室の建物情報
建物名称 |
T‘s Cuore BLISS 自由が丘 |
|---|---|
最寄駅 |
|
所在地 |
東京都目黒区自由が丘 |
階層 |
3階部分(地上3階建) |
構造 |
木造 |
築年数 |
新築 |
駐車場 |
無 |
小学校学区 |
緑ヶ丘小学校 |
中学校学区 |
第十一中学校 |
- 学区データについて
- ※学区データは必ずしも正確とは限りません。詳細に関しては最寄店舗または各自治体の教育委員会に必ずご確認ください。
無料この物件に問い合わせ
- T‘s Cuore BLISS 自由が丘 302号室

-
21.3万円
(共益費
10,000円)
- 敷
- 1ヶ月
- 礼
- -
- 保
- -
- 償
- -
T‘s Cuore BLISS 自由が丘 302号室の物件のお問い合わせ先・取り扱い店舗
ハウスコム 自由が丘店
- アクセス
-
東急東横線「自由が丘駅」徒歩3分
東急大井町線「自由が丘駅」徒歩3分
- 住所
- 〒152-0035 東京都目黒区自由が丘1丁目14ー14 原田ビル1階
- 営業時間
- 10:00~18:00
- 定休日
- なし
- 営業エリア
- 世田谷区,大田区,目黒区
- 取引態様
- 賃貸仲介業
















