DIPS成増 ***号室(1階/1K)の賃貸物件(賃貸マンション)
東京都板橋区にあるDIPS成増 ***号室はバス・トイレ別、都市ガス、エレベーター、24時間ゴミ出しOK、オンライン相談可などが特徴です。最寄り駅の東京メトロ 有楽町線地下鉄成増駅から徒歩10分です。DIPS成増 ***号室の詳細はハウスコム 成増店までお気軽にお問い合わせください!
情報更新日:
次回更新予定日:
※次回更新予定日について:お店側では順次空室確認を行っていますが、次回更新予定日までに空室確認が行えない場合には、この物件情報は自動的に削除されます。
DIPS成増 ***号室の賃貸物件部屋概要
家賃 |
10.5万円
初期費用を |
|---|---|
共益費 |
12,000円
入居可能時期 |
敷金/礼金 |
- / - |
保証金/ |
1ヶ月 / 105,000円 |
最寄駅 |
|
所在地 |
東京都板橋区赤塚新町 |
部屋番号 |
***号室 |
間取り |
1K(洋8.1) |
専有面積 |
25.65㎡ |
築年数 |
2024年8月(築2年) |
階数 |
1階部分(地上4階建) |
方位・位置 |
北 / その他 |
物件種別 |
賃貸マンション |
構造 |
RC |
駐車場 |
22,000円 |
小学校学区 |
成増小学校 |
中学校学区 |
赤塚第二中学校 |
他の空き部屋 |
104号室 ***号室 ***号室 402号室 |
- 学区データについて
- ※学区データは必ずしも正確とは限りません。詳細に関しては最寄店舗または各自治体の教育委員会に必ずご確認ください。
DIPS成増 ***号室の特徴
-
一人暮らしに人気の設備

-
カップルに人気の設備

-
家族に人気の設備

-
夫婦に人気の設備

-
三世代で人気の設備

-
タイパ重視

-
外で子どもと遊びたい

-
身だしなみに気をつかいたい

-
雨の日でも洗濯したい

-
洋室で暮らしたい

-
オークション・通販が好き

-
ガーデニングが好き

契約条件
この物件は、2人入居もご契約できます。 ペットの飼育もご相談ください。 また、ご契約時に保証人は不要です。 敷金と礼金が無料なため、初期費用が比較的安くなる傾向にあります。
セキュリティ
この物件の建物には、オートロックや宅配ボックスが設置されており、来客時には居室内のテレビモニターにて訪問者の顔を確認することができます。
室内設備
システムキッチンには、2つ以上のガスコンロが備え付けられています。 トイレは、温水洗浄便座機能付きになります。 女性に嬉しい設備のシャワーの付いている洗面化粧台があります。 洗濯に便利な設備として、室内洗濯機置場があります。浴室乾燥機も設置されているので、梅雨時の生乾き臭も比較的防ぐことができます。
居室状況
お部屋の床は、フローリングとなっており、エアコンが設置されています。 インターネットも無料で入居後すぐ生活が始められます。 収納スペースとして、基本的な居室にクローゼットを設置、玄関にはシューズボックスがあります。
建物設備共用部分
居室外の専有スペースとして、洗濯物を干すなどの用途として利用できるバルコニーがあります。 建物の共用スペースに、日々の出入に便利なエレベーターや、急な外出や不在がちのご家庭の荷物受け取りに便利な宅配ボックスや、居室内を常に清潔に保てる24時間利用可能なゴミ捨て置き場が設置されています。 駐輪場が利用できます。
周辺施設
この物件の学区は、成増小学校区・赤塚第二中学校区です。
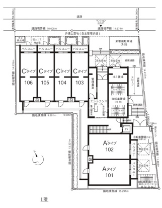
DIPS成増 ***号室の間取り
間取り:1K
間取詳細:1K(洋8.1)
専有面積:25.65㎡
方位:北
部屋位置:その他
DIPS成増 ***号室の設備
キッチン
システムキッチン
ガスコンロ
ガスコンロ二口以上
バス・トイレ
バス・トイレ別
浴室乾燥機
温水洗浄便座
独立洗面台
シャワー付洗面化粧台
玄関
TVモニタ付インターホン
オートロック
宅配ボックス
収納
クローゼット
シューズボックス
バルコニー
バルコニー
ルーフバルコニー
室内設備
エアコン
フローリング
室内洗濯機置場
位置・立地
1階
インフラ
インターネット可
都市ガス
建物設備
エレベーター
24時間ゴミ出しOK
駐輪場
分譲賃貸
入居条件
ペット可・相談
2人入居可
オンライン相談可
オンライン内見可
保証人不要
ライフステージ
一人暮らしに人気の設備
カップルに人気の設備
家族に人気の設備
夫婦に人気の設備
三世代で人気の設備
こだわり
タイパ重視
外で子どもと遊びたい
身だしなみに気をつかいたい
雨の日でも洗濯したい
洋室で暮らしたい
趣味
オークション・通販が好き
ガーデニングが好き
お得な条件
インターネット無料
DIPS成増 ***号室の賃貸契約情報
毎月支払う |
家賃10.5万円/月共益費12,000円/月 |
|---|---|
初期費用 |
敷金-礼金-保証金1ヶ月敷引き償却金105,000円 |
更新料 |
105,000円 |
鍵交換費用 |
24,200円 |
室内清掃費用 |
- |
くらしーど24 |
16,500円 |
駐車場料金 |
22,000円 |
損保・ |
借家賠付きの火災保険にご加入いただきます。 |
保証会社 |
加入要 保証会社:エポスカード 保証会社利用料:初回保証料:月額支払額の50% 月額保証料:月額支払額の1.5% |
契約期間 |
2年 |
入居可能日 |
即入居可 |
フリーレント期間 |
- |
取引形態 |
一般媒介 |
備考 |
解約2ヶ月前予告 短期解約違約金有 ペット飼育の場合保証金1ヶ月追加(犬、猫可(小型2匹まで)) |
DIPS成増 ***号室の建物情報
建物名称 |
DIPS成増 |
|---|---|
最寄駅 |
|
所在地 |
東京都板橋区赤塚新町 |
階層 |
1階部分(地上4階建) |
構造 |
RC |
築年数 |
2024年8月(築2年) |
駐車場 |
22,000円 |
小学校学区 |
成増小学校 |
中学校学区 |
赤塚第二中学校 |
- 学区データについて
- ※学区データは必ずしも正確とは限りません。詳細に関しては最寄店舗または各自治体の教育委員会に必ずご確認ください。
無料この物件に問い合わせ
- DIPS成増 ***号室

-
10.5万円
(共益費
12,000円)
- 敷
- -
- 礼
- -
- 保
- 1ヶ月
- 償
- 105,000円
DIPS成増 ***号室の物件のお問い合わせ先・取り扱い店舗
ハウスコム 成増店
- アクセス
-
東武東上線「成増駅」北口徒歩1分
- 住所
- 〒175-0094 東京都板橋区成増3丁目3−11 成増アクト2 1F
- 営業時間
- 10:00~18:00
- 定休日
- なし
- 営業エリア
- 板橋区,練馬区,和光市,朝霞市,新座市,志木市
- 取引態様
- 賃貸仲介業



















