いろどりの杜 ***号室(3階/2DK)の賃貸物件(賃貸マンション)
東京都足立区にあるいろどりの杜 ***号室はシャワー付洗面化粧台、TVモニタ付インターホン、エアコン、バイク置き場、保証人不要などが特徴です。最寄り駅の東京メトロ 千代田線北綾瀬駅から徒歩15分です。いろどりの杜 ***号室の詳細はハウスコム 亀有店までお気軽にお問い合わせください!
情報更新日:
次回更新予定日:
※次回更新予定日について:お店側では順次空室確認を行っていますが、次回更新予定日までに空室確認が行えない場合には、この物件情報は自動的に削除されます。
いろどりの杜 ***号室の賃貸物件部屋概要
家賃 |
10万円
初期費用を |
|---|---|
共益費 |
10,000円
入居可能時期 |
敷金/礼金 |
1ヶ月 / 1ヶ月 |
保証金/ |
- / - |
最寄駅 |
|
所在地 |
東京都足立区東綾瀬 |
部屋番号 |
***号室 |
間取り |
2DK(洋4.6・洋5.2・DK6) |
専有面積 |
37.35㎡ |
築年数 |
1964年8月(築62年) |
階数 |
3階部分(地上4階建) |
方位・位置 |
南 / 角部屋 |
物件種別 |
賃貸マンション |
構造 |
RC |
駐車場 |
18,710円 |
小学校学区 |
東綾瀬小学校 |
中学校学区 |
蒲原中学校 |
他の空き部屋 |
ー |
- 学区データについて
- ※学区データは必ずしも正確とは限りません。詳細に関しては最寄店舗または各自治体の教育委員会に必ずご確認ください。
いろどりの杜 ***号室の特徴
-
一人暮らしに人気の設備

-
カップルに人気の設備

-
家族に人気の設備

-
夫婦に人気の設備

-
三世代で人気の設備

-
外で子どもと遊びたい

-
雨の日でも洗濯したい

-
洋室で暮らしたい

-
オークション・通販が好き

-
ガーデニングが好き

契約条件
ご契約時に保証人は不要です。
セキュリティ
この物件の建物には、宅配ボックスが設置されており、来客時には居室内のテレビモニターにて訪問者の顔を確認することができます。
室内設備
システムキッチンには、2つ以上のガスコンロが備え付けられています。 トイレは、温水洗浄便座機能付きになります。 女性に嬉しい設備のシャワーの付いている洗面化粧台があります。 洗濯に便利な設備として、室内洗濯機置場があります。
居室状況
お部屋の床は、フローリングとなっており、エアコンが設置されています。 照明器具が備え付けられており、インターネットも無料で入居後すぐ生活が始められます。
建物設備共用部分
居室外の専有スペースとして、洗濯物を干すなどの用途として利用できるバルコニーがあります。 建物の共用スペースに、急な外出や不在がちのご家庭の荷物受け取りに便利な宅配ボックスが設置されています。 平面駐車場があります。駐輪場、バイク置き場が利用できます。
周辺施設
この物件の学区は、東綾瀬小学校区・蒲原中学校区です。
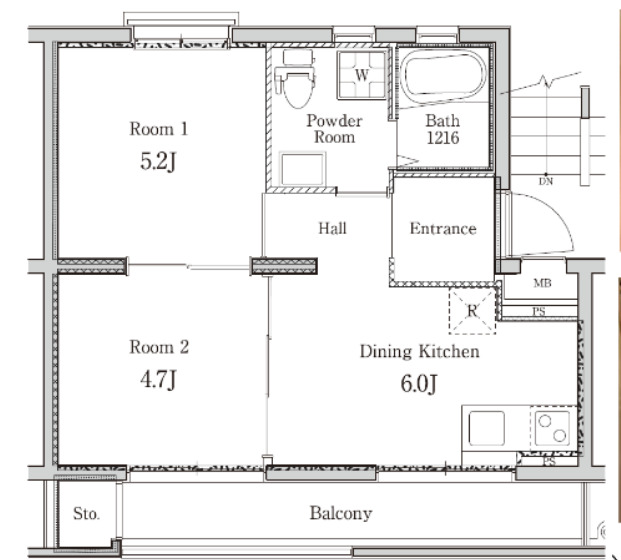
いろどりの杜 ***号室の間取り
間取り:2DK
間取詳細:2DK(洋4.6・洋5.2・DK6)
専有面積:37.35㎡
方位:南
部屋位置:角部屋
いろどりの杜 ***号室の設備
キッチン
システムキッチン
ガスコンロ
ガスコンロ二口以上
バス・トイレ
バス・トイレ別
温水洗浄便座
独立洗面台
シャワー付洗面化粧台
玄関
TVモニタ付インターホン
宅配ボックス
バルコニー
バルコニー
ルーフバルコニー
室内設備
エアコン
フローリング
室内洗濯機置場
照明器具付
デザイナーズ
位置・立地
2階以上
角部屋
南向き
インフラ
インターネット可
都市ガス
建物設備
駐車場
平面駐車場
駐輪場
バイク置き場
入居条件
オンライン相談可
オンライン内見可
保証人不要
ライフステージ
一人暮らしに人気の設備
カップルに人気の設備
家族に人気の設備
夫婦に人気の設備
三世代で人気の設備
こだわり
外で子どもと遊びたい
雨の日でも洗濯したい
洋室で暮らしたい
趣味
オークション・通販が好き
ガーデニングが好き
お得な条件
インターネット無料
いろどりの杜 ***号室の賃貸契約情報
毎月支払う |
家賃10万円/月共益費10,000円/月 |
|---|---|
初期費用 |
敷金1ヶ月 (10万円)礼金1ヶ月 (10万円)保証金-敷引き償却金- |
更新料 |
100,000円 |
鍵交換費用 |
16,500円 |
室内清掃費用 |
- |
駐車場料金 |
18,710円 |
損保・ |
借家賠付きの火災保険にご加入いただきます。 |
保証会社 |
加入要 保証会社利用料:初回保証料:50% 月額保証料:1% |
契約期間 |
定期借家 2年 |
入居可能日 |
2026年05月中旬 |
フリーレント期間 |
- |
取引形態 |
一般媒介 |
備考 |
短期解約違約金有 |
いろどりの杜 ***号室の建物情報
建物名称 |
いろどりの杜 |
|---|---|
最寄駅 |
|
所在地 |
東京都足立区東綾瀬 |
階層 |
3階部分(地上4階建) |
構造 |
RC |
築年数 |
1964年8月(築62年) |
駐車場 |
18,710円 |
小学校学区 |
東綾瀬小学校 |
中学校学区 |
蒲原中学校 |
- 学区データについて
- ※学区データは必ずしも正確とは限りません。詳細に関しては最寄店舗または各自治体の教育委員会に必ずご確認ください。
無料この物件に問い合わせ
- いろどりの杜 ***号室

-
10万円
(共益費
10,000円)
- 敷
- 1ヶ月
- 礼
- 1ヶ月
- 保
- -
- 償
- -
いろどりの杜 ***号室の物件のお問い合わせ先・取り扱い店舗
ハウスコム 亀有店
- アクセス
-
常磐線各駅停車(千代田線直通)「亀有駅」北口徒歩1分
- 住所
- 〒125-0061 東京都葛飾区亀有5丁目32−10 マリコビル 2階
- 営業時間
- 10:00~18:00
- 定休日
- 水曜日
- 営業エリア
- 葛飾区・足立区・八潮市・三郷市・松戸市など
- 取引態様
- 賃貸仲介業


























