クレイノグランメゾン若葉 207号室(2階/1K)の賃貸物件(賃貸マンション)
埼玉県鶴ヶ島市にあるクレイノグランメゾン若葉 207号室は電気コンロ、バス・トイレ別、温水洗浄便座、2階以上、インターネット可などが特徴です。最寄り駅の東武東上線若葉駅から徒歩9分です。クレイノグランメゾン若葉 207号室の詳細はハウスコム 川越店までお気軽にお問い合わせください!
情報更新日:
次回更新予定日:
※次回更新予定日について:お店側では順次空室確認を行っていますが、次回更新予定日までに空室確認が行えない場合には、この物件情報は自動的に削除されます。
クレイノグランメゾン若葉 207号室の賃貸物件部屋概要
家賃 |
7.5万円
初期費用を |
|---|---|
共益費 |
5,000円
入居可能時期 |
敷金/礼金 |
- / 75,000円 |
保証金/ |
- / - |
最寄駅 |
|
所在地 |
埼玉県鶴ヶ島市富士見 |
部屋番号 |
207号室 |
間取り |
1K |
専有面積 |
26.08㎡ |
築年数 |
2016年5月(築10年) |
階数 |
2階部分(地上3階建) |
方位・位置 |
ー / その他 |
物件種別 |
賃貸マンション |
構造 |
鉄骨造 |
駐車場 |
無 |
小学校学区 |
栄小学校 |
中学校学区 |
富士見中学校 |
他の空き部屋 |
103号室 |
- 学区データについて
- ※学区データは必ずしも正確とは限りません。詳細に関しては最寄店舗または各自治体の教育委員会に必ずご確認ください。
クレイノグランメゾン若葉 207号室の特徴
契約条件
敷金が無料なため、初期費用が比較的安くなる傾向にあります。
室内設備
電気コンロが備え付けられています。 トイレは、温水洗浄便座機能付きになります。 女性に嬉しい設備の独立した洗面化粧台があります。 洗濯に便利な設備として、室内洗濯機置場があります。
居室状況
エアコンが設置されています。
建物設備共用部分
居室外の専有スペースとして、洗濯物を干すなどの用途として利用できるバルコニーがあります。
周辺施設
この物件の学区は、栄小学校区・富士見中学校区です。
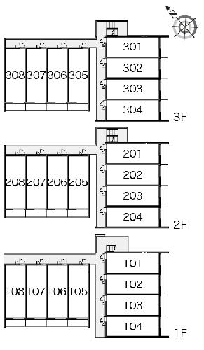
クレイノグランメゾン若葉 207号室の間取り
間取り:1K
間取詳細:1K
専有面積:26.08㎡
方位:ー
部屋位置:その他
クレイノグランメゾン若葉 207号室の設備
キッチン
電気コンロ
バス・トイレ
バス・トイレ別
温水洗浄便座
独立洗面台
バルコニー
バルコニー
ルーフバルコニー
室内設備
エアコン
室内洗濯機置場
位置・立地
2階以上
インフラ
インターネット可
ライフステージ
一人暮らしに人気の設備
カップルに人気の設備
家族に人気の設備
夫婦に人気の設備
三世代で人気の設備
こだわり
外で子どもと遊びたい
雨の日でも洗濯したい
趣味
ガーデニングが好き
クレイノグランメゾン若葉 207号室の賃貸契約情報
毎月支払う |
家賃7.5万円/月共益費5,000円/月 |
|---|---|
初期費用 |
敷金-礼金75,000円保証金-敷引き償却金- |
更新料 |
- |
鍵交換費用 |
16,500円 |
室内清掃費用 |
41,800円 |
抗菌施工(任意) |
23,760円 |
駐車場料金 |
無 |
損保・ |
借家賠付きの火災保険にご加入いただきます。 |
保証会社 |
加入要 保証会社利用料:保証料:83990円(契約内容により100~120%で変動有)※記載金額は120%の場合 |
契約期間 |
- |
入居可能日 |
即入居可 |
フリーレント期間 |
- |
取引形態 |
一般媒介 |
備考 |
- |
クレイノグランメゾン若葉 207号室の建物情報
建物名称 |
クレイノグランメゾン若葉 |
|---|---|
最寄駅 |
|
所在地 |
埼玉県鶴ヶ島市富士見 |
階層 |
2階部分(地上3階建) |
構造 |
鉄骨造 |
築年数 |
2016年5月(築10年) |
駐車場 |
無 |
小学校学区 |
栄小学校 |
中学校学区 |
富士見中学校 |
1/9 外観
- 学区データについて
- ※学区データは必ずしも正確とは限りません。詳細に関しては最寄店舗または各自治体の教育委員会に必ずご確認ください。
無料この物件に問い合わせ
- クレイノグランメゾン若葉 207号室

-
7.5万円
(共益費
5,000円)
- 敷
- -
- 礼
- 75,000円
- 保
- -
- 償
- -
クレイノグランメゾン若葉 207号室の物件のお問い合わせ先・取り扱い店舗
ハウスコム 川越店
水曜日営業
土日営業
年中無休(年末年始などを除く)
- アクセス
-
東武東上線「川越駅」東口徒歩3分
- 住所
- 〒350-1122 埼玉県川越市脇田町16−6 岡村ビル 1階
- 営業時間
- 10:00~18:00
- 定休日
- なし
- 営業エリア
- ふじみ野市,坂戸市,川越市,日高市,狭山市,鶴ヶ島市,東松山市,さいたま市、上尾市、富士見市、川島町、秩父方面、寄居町
- 取引態様
- 賃貸仲介業
お問い合わせNo. HC5-2320289-207-0001




























