MAISON SENZOKUIKE ***号室(2階/1LDK)の賃貸物件(賃貸マンション)
東京都大田区にあるMAISON SENZOKUIKE ***号室は独立洗面台、エアコン、室内洗濯機置場、都市ガス、保証人不要などが特徴です。最寄り駅の東急池上線洗足池駅から徒歩3分です。MAISON SENZOKUIKE ***号室の詳細はハウスコム 大岡山店までお気軽にお問い合わせください!
情報更新日:
次回更新予定日:
※次回更新予定日について:お店側では順次空室確認を行っていますが、次回更新予定日までに空室確認が行えない場合には、この物件情報は自動的に削除されます。
MAISON SENZOKUIKE ***号室の賃貸物件部屋概要
家賃 |
17.5万円
初期費用を |
|---|---|
共益費 |
10,000円
入居可能時期 |
敷金/礼金 |
1ヶ月 / 1.5ヶ月 |
保証金/ |
- / - |
最寄駅 |
|
所在地 |
東京都大田区上池台 |
部屋番号 |
***号室 |
間取り |
1LDK(LDK14.7・洋4.9) |
専有面積 |
48.06㎡ |
築年数 |
2016年11月(築10年) |
階数 |
2階部分(地上3階建) |
方位・位置 |
北西 / 角部屋 |
物件種別 |
賃貸マンション |
構造 |
RC |
駐車場 |
無 |
小学校学区 |
小池小学校 |
中学校学区 |
大森第六中学校 |
他の空き部屋 |
***号室 |
- 学区データについて
- ※学区データは必ずしも正確とは限りません。詳細に関しては最寄店舗または各自治体の教育委員会に必ずご確認ください。
MAISON SENZOKUIKE ***号室の特徴
-
一人暮らしに人気の設備

-
カップルに人気の設備

-
家族に人気の設備

-
夫婦に人気の設備

-
三世代で人気の設備

-
セキュリティ対策重視

-
外で子どもと遊びたい

-
雨の日でも洗濯したい

-
洋室で暮らしたい

-
服やおしゃれが好き

-
ガーデニングが好き

契約条件
この物件は、2人入居もご契約できます。 また、ご契約時に保証人は不要です。
セキュリティ
この物件の建物には、オートロックや防犯カメラや宅配ボックスが設置されており、来客時には居室内のテレビモニターにて訪問者の顔を確認することができます。
室内設備
システムキッチンが備え付けられています。 お風呂とトイレは別です。お風呂には、追い焚き機能が備わっています。 トイレは、温水洗浄便座機能付きになります。 女性に嬉しい設備のシャワーの付いている洗面化粧台があります。 洗濯に便利な設備として、室内洗濯機置場があります。浴室乾燥機も設置されているので、梅雨時の生乾き臭も比較的防ぐことができます。
居室状況
お部屋の床は、フローリングとなっており、エアコンと一部床下暖房が設置されています。 収納スペースとして、基本的な居室にクローゼットを設置、通常よりも収納力の高いウォークインクローゼット、玄関にはシューズボックスがあります。
建物設備共用部分
居室外の専有スペースとして、洗濯物を干すなどの用途として利用できるバルコニーがあります。 建物の共用スペースに、日々の出入に便利なエレベーターや、いざという時の防犯カメラや、急な外出や不在がちのご家庭の荷物受け取りに便利な宅配ボックスが設置されています。 駐輪場が利用できます。
周辺施設
この物件の学区は、小池小学校区・大森第六中学校区です。
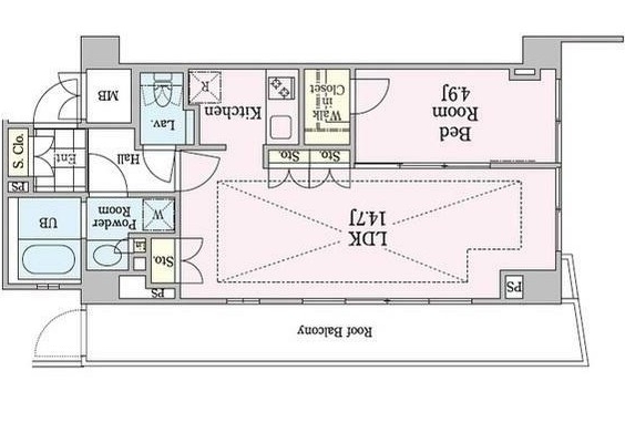
MAISON SENZOKUIKE ***号室の間取り
間取り:1LDK
間取詳細:1LDK(LDK14.7・洋4.9)
専有面積:48.06㎡
方位:北西
部屋位置:角部屋
MAISON SENZOKUIKE ***号室の設備
キッチン
システムキッチン
バス・トイレ
バス・トイレ別
追い焚き
浴室乾燥機
温水洗浄便座
独立洗面台
シャワー付洗面化粧台
玄関
TVモニタ付インターホン
オートロック
宅配ボックス
収納
クローゼット
ウォークインクローゼット
シューズボックス
バルコニー
バルコニー
ルーフバルコニー
室内設備
エアコン
フローリング
床下暖房
室内洗濯機置場
位置・立地
2階以上
角部屋
インフラ
CATV
BS
都市ガス
建物設備
エレベーター
防犯カメラ
駐輪場
入居条件
2人入居可
オンライン相談可
オンライン内見可
保証人不要
ライフステージ
一人暮らしに人気の設備
カップルに人気の設備
家族に人気の設備
夫婦に人気の設備
三世代で人気の設備
こだわり
セキュリティ対策重視
外で子どもと遊びたい
雨の日でも洗濯したい
洋室で暮らしたい
趣味
服やおしゃれが好き
ガーデニングが好き
MAISON SENZOKUIKE ***号室の賃貸契約情報
毎月支払う |
家賃17.5万円/月共益費10,000円/月 |
|---|---|
初期費用 |
敷金1ヶ月 (17.5万円)礼金1.5ヶ月 (26.25万円)保証金-敷引き償却金- |
更新料 |
175,000円 |
鍵交換費用 |
44,000円 |
室内清掃費用 |
73,920円 |
駐車場料金 |
無 |
損保・ |
借家賠付きの火災保険にご加入いただきます。 |
保証会社 |
加入要 保証会社利用料:保証料:賃料等の50%(最低2万)、月額手数料:賃料等の1%(更新料無) |
契約期間 |
2年 |
入居可能日 |
2026年05月中旬 |
フリーレント期間 |
- |
取引形態 |
一般媒介 |
備考 |
エアコンクリーニング費用:33000円 |
MAISON SENZOKUIKE ***号室の建物情報
建物名称 |
MAISON SENZOKUIKE |
|---|---|
最寄駅 |
|
所在地 |
東京都大田区上池台 |
階層 |
2階部分(地上3階建) |
構造 |
RC |
築年数 |
2016年11月(築10年) |
駐車場 |
無 |
小学校学区 |
小池小学校 |
中学校学区 |
大森第六中学校 |
- 学区データについて
- ※学区データは必ずしも正確とは限りません。詳細に関しては最寄店舗または各自治体の教育委員会に必ずご確認ください。
無料この物件に問い合わせ
- MAISON SENZOKUIKE ***号室

-
17.5万円
(共益費
10,000円)
- 敷
- 1ヶ月
- 礼
- 1.5ヶ月
- 保
- -
- 償
- -
MAISON SENZOKUIKE ***号室の物件のお問い合わせ先・取り扱い店舗
ハウスコム 大岡山店
- アクセス
-
東急目黒線「大岡山駅」徒歩1分
- 住所
- 〒145-0062 東京都大田区北千束1丁目51−6 サンルミナスA 1階
- 営業時間
- 10:00~18:00
- 定休日
- なし
- 営業エリア
- 大田区,目黒区,品川区,世田谷区
- 取引態様
- 賃貸仲介業

















