レオネクストジュエル ***号室(2階/1K)の賃貸物件(賃貸マンション)
東京都大田区にあるレオネクストジュエル ***号室は電気コンロ、温水洗浄便座、オートロック、ルーフバルコニー、室内洗濯機置場などが特徴です。最寄り駅の京急空港線大鳥居駅から徒歩10分です。レオネクストジュエル ***号室の詳細はハウスコム 蒲田店までお気軽にお問い合わせください!
情報更新日:
次回更新予定日:
※次回更新予定日について:お店側では順次空室確認を行っていますが、次回更新予定日までに空室確認が行えない場合には、この物件情報は自動的に削除されます。
レオネクストジュエル ***号室の賃貸物件部屋概要
家賃 |
9.9万円
初期費用を |
|---|---|
共益費 |
7,500円
入居可能時期 |
敷金/礼金 |
- / 99,000円 |
保証金/ |
- / - |
最寄駅 |
|
所在地 |
東京都大田区西糀谷 |
部屋番号 |
***号室 |
間取り |
1K |
専有面積 |
26.08㎡ |
築年数 |
2010年6月(築16年) |
階数 |
2階部分(地上4階建) |
方位・位置 |
ー / その他 |
物件種別 |
賃貸マンション |
構造 |
鉄骨造 |
駐車場 |
無 |
小学校学区 |
糀谷小学校 |
中学校学区 |
糀谷中学校 |
他の空き部屋 |
401号室 |
- 学区データについて
- ※学区データは必ずしも正確とは限りません。詳細に関しては最寄店舗または各自治体の教育委員会に必ずご確認ください。
レオネクストジュエル ***号室の特徴
契約条件
敷金が無料なため、初期費用が比較的安くなる傾向にあります。
セキュリティ
この物件の建物には、オートロックが設置されており、来客時には居室内のテレビモニターにて訪問者の顔を確認することができます。
室内設備
電気コンロが備え付けられています。 トイレは、温水洗浄便座機能付きになります。 洗濯に便利な設備として、室内洗濯機置場があります。
居室状況
エアコンが設置されています。
建物設備共用部分
居室外の専有スペースとして、洗濯物を干すなどの用途として利用できるバルコニーがあります。
周辺施設
この物件の学区は、糀谷小学校区・糀谷中学校区です。
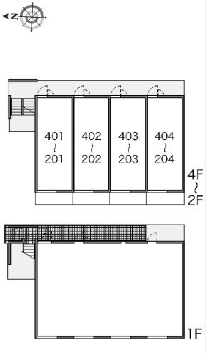
レオネクストジュエル ***号室の間取り
間取り:1K
間取詳細:1K
専有面積:26.08㎡
方位:ー
部屋位置:その他
レオネクストジュエル ***号室の設備
キッチン
電気コンロ
バス・トイレ
バス・トイレ別
温水洗浄便座
玄関
TVモニタ付インターホン
オートロック
バルコニー
バルコニー
ルーフバルコニー
室内設備
エアコン
室内洗濯機置場
位置・立地
2階以上
インフラ
インターネット可
入居条件
即入居可
ライフステージ
一人暮らしに人気の設備
カップルに人気の設備
家族に人気の設備
夫婦に人気の設備
三世代で人気の設備
こだわり
外で子どもと遊びたい
雨の日でも洗濯したい
趣味
ガーデニングが好き
レオネクストジュエル ***号室の賃貸契約情報
毎月支払う |
家賃9.9万円/月共益費7,500円/月 |
|---|---|
初期費用 |
敷金-礼金99,000円保証金-敷引き償却金- |
更新料 |
- |
鍵交換費用 |
16,500円 |
室内清掃費用 |
41,800円 |
抗菌施工(任意) |
23,760円 |
駐車場料金 |
無 |
損保・ |
借家賠付きの火災保険にご加入いただきます。 |
保証会社 |
加入要 保証会社利用料:保証料:95390円(契約内容により100~120%で変動有)※記載金額は120%の場合 |
契約期間 |
- |
入居可能日 |
即入居可 |
フリーレント期間 |
- |
取引形態 |
一般媒介 |
備考 |
- |
レオネクストジュエル ***号室の建物情報
建物名称 |
レオネクストジュエル |
|---|---|
最寄駅 |
|
所在地 |
東京都大田区西糀谷 |
階層 |
2階部分(地上4階建) |
構造 |
鉄骨造 |
築年数 |
2010年6月(築16年) |
駐車場 |
無 |
小学校学区 |
糀谷小学校 |
中学校学区 |
糀谷中学校 |
- 学区データについて
- ※学区データは必ずしも正確とは限りません。詳細に関しては最寄店舗または各自治体の教育委員会に必ずご確認ください。
無料この物件に問い合わせ
- レオネクストジュエル ***号室

-
9.9万円
(共益費
7,500円)
- 敷
- -
- 礼
- 99,000円
- 保
- -
- 償
- -
レオネクストジュエル ***号室の物件のお問い合わせ先・取り扱い店舗
ハウスコム 蒲田店
- アクセス
-
京浜東北・根岸線「蒲田駅」西口徒歩1分
- 住所
- 〒144-0051 東京都大田区西蒲田7丁目5−8 コパンビル 1階
- 営業時間
- 10:00~18:00
- 定休日
- なし
- 営業エリア
- 大田区、品川区、川崎市
- 取引態様
- 賃貸仲介業




















