クレイシアIDZ大泉学園 302号室(3階/2K)の賃貸物件(賃貸マンション)
東京都練馬区にあるクレイシアIDZ大泉学園 302号室は浴室乾燥機、TVモニタ付インターホン、インターネット可、都市ガス、2人入居可などが特徴です。最寄り駅の西武池袋線・豊島線大泉学園駅から徒歩10分です。クレイシアIDZ大泉学園 302号室の詳細はハウスコム 和光店までお気軽にお問い合わせください!
情報更新日:
次回更新予定日:
※次回更新予定日について:お店側では順次空室確認を行っていますが、次回更新予定日までに空室確認が行えない場合には、この物件情報は自動的に削除されます。
クレイシアIDZ大泉学園 302号室の賃貸物件部屋概要
家賃 |
10.35万円
初期費用を |
|---|---|
共益費 |
12,000円
入居可能時期 |
敷金/礼金 |
1ヶ月 / 1ヶ月 |
保証金/ |
- / - |
最寄駅 |
|
所在地 |
東京都練馬区東大泉 |
部屋番号 |
302号室 |
間取り |
2K(洋4.4・洋3.8) |
専有面積 |
25.54㎡ |
築年数 |
新築 |
階数 |
3階部分(地上5階建) |
方位・位置 |
西 / その他 |
物件種別 |
賃貸マンション |
構造 |
RC |
駐車場 |
- |
小学校学区 |
ー |
中学校学区 |
ー |
他の空き部屋 |
101号室 102号室 103号室 104号室 105号室 106号室 107号室 108号室 109号室 207号室 208号室 209号室 210号室 211号室 303号室 304号室 305号室 |
- 学区データについて
- ※学区データは必ずしも正確とは限りません。詳細に関しては最寄店舗または各自治体の教育委員会に必ずご確認ください。
クレイシアIDZ大泉学園 302号室の特徴
-
一人暮らしに人気の設備

-
カップルに人気の設備

-
家族に人気の設備

-
夫婦に人気の設備

-
三世代で人気の設備

-
セキュリティ対策重視

-
外で子どもと遊びたい

-
雨の日でも洗濯したい

-
オークション・通販が好き

-
ガーデニングが好き

契約条件
この物件は、2人入居もご契約できます。
セキュリティ
この物件の建物には、オートロックや防犯カメラや宅配ボックスが設置されており、来客時には居室内のテレビモニターにて訪問者の顔を確認することができます。
室内設備
2つ以上のガスコンロが備え付けられています。 トイレは、温水洗浄便座機能付きになります。 女性に嬉しい設備のシャワーの付いている洗面化粧台があります。 洗濯に便利な設備として、室内洗濯機置場があります。浴室乾燥機も設置されているので、梅雨時の生乾き臭も比較的防ぐことができます。
居室状況
エアコンが設置されています。 インターネットも無料で入居後すぐ生活が始められます。 収納スペースとして、基本的な居室にクローゼットを設置、玄関にはシューズボックスがあります。
建物設備共用部分
居室外の専有スペースとして、洗濯物を干すなどの用途として利用できるバルコニーがあります。 建物の共用スペースに、日々の出入に便利なエレベーターや、いざという時の防犯カメラや、急な外出や不在がちのご家庭の荷物受け取りに便利な宅配ボックスが設置されています。
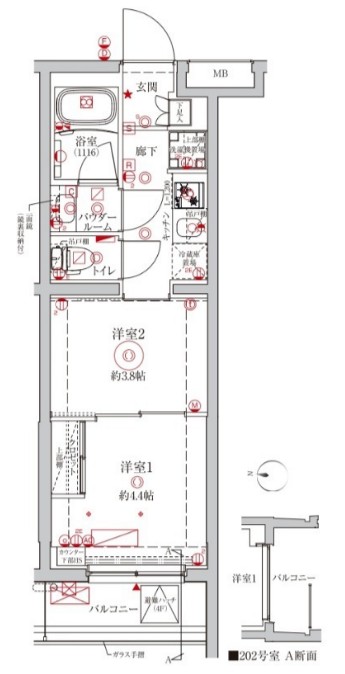
クレイシアIDZ大泉学園 302号室の間取り
間取り:2K
間取詳細:2K(洋4.4・洋3.8)
専有面積:25.54㎡
方位:西
部屋位置:その他
クレイシアIDZ大泉学園 302号室の設備
キッチン
ガスコンロ
ガスコンロ二口以上
バス・トイレ
バス・トイレ別
浴室乾燥機
温水洗浄便座
独立洗面台
シャワー付洗面化粧台
玄関
TVモニタ付インターホン
オートロック
宅配ボックス
収納
クローゼット
シューズボックス
バルコニー
バルコニー
ルーフバルコニー
室内設備
エアコン
室内洗濯機置場
位置・立地
2階以上
インフラ
インターネット可
都市ガス
建物設備
エレベーター
防犯カメラ
入居条件
2人入居可
オンライン相談可
オンライン内見可
即入居可
ライフステージ
一人暮らしに人気の設備
カップルに人気の設備
家族に人気の設備
夫婦に人気の設備
三世代で人気の設備
こだわり
セキュリティ対策重視
外で子どもと遊びたい
雨の日でも洗濯したい
趣味
オークション・通販が好き
ガーデニングが好き
お得な条件
インターネット無料
クレイシアIDZ大泉学園 302号室の賃貸契約情報
毎月支払う |
家賃10.35万円/月共益費12,000円/月 |
|---|---|
初期費用 |
敷金1ヶ月 (10.35万円)礼金1ヶ月 (10.35万円)保証金-敷引き償却金- |
更新料 |
103,500円 |
鍵交換費用 |
- |
室内清掃費用 |
- |
駐車場料金 |
- |
損保・ |
借家賠付きの火災保険にご加入いただきます。 |
保証会社 |
加入要 保証会社利用料:初回:総賃料の40% 年間保証料:10000円 |
契約期間 |
2年 |
入居可能日 |
即入居可 |
フリーレント期間 |
- |
取引形態 |
一般媒介 |
備考 |
1年未満の解約の場合賃料1か月分の短期違約金あり |
クレイシアIDZ大泉学園 302号室の建物情報
建物名称 |
クレイシアIDZ大泉学園 |
|---|---|
最寄駅 |
|
所在地 |
東京都練馬区東大泉 |
階層 |
3階部分(地上5階建) |
構造 |
RC |
築年数 |
新築 |
駐車場 |
- |
小学校学区 |
ー |
中学校学区 |
ー |
- 学区データについて
- ※学区データは必ずしも正確とは限りません。詳細に関しては最寄店舗または各自治体の教育委員会に必ずご確認ください。
無料この物件に問い合わせ
- クレイシアIDZ大泉学園 302号室

-
10.35万円
(共益費
12,000円)
- 敷
- 1ヶ月
- 礼
- 1ヶ月
- 保
- -
- 償
- -
クレイシアIDZ大泉学園 302号室の物件のお問い合わせ先・取り扱い店舗
ハウスコム 和光店
- アクセス
-
東武東上線「和光市駅」南口徒歩1分
- 住所
- 〒351-0114 埼玉県和光市本町6−8 大澤ビル 1階
- 営業時間
- 10:00~18:00
- 定休日
- 水曜日
- 営業エリア
- 和光市、朝霞市、新座市、志木市、富士見市、ふじみ野市、板橋区、練馬区
- 取引態様
- 賃貸仲介業













