MELDIA CREST TAPP NAMBA-WEST 1006号室(10階/1R)の賃貸物件(賃貸マンション)
大阪府大阪市浪速区にあるMELDIA CREST TAPP NAMBA-WEST 1006号室はシステムキッチン、宅配ボックス、フローリング、2階以上、BSなどが特徴です。最寄り駅の大阪環状線芦原橋駅から徒歩1分です。MELDIA CREST TAPP NAMBA-WEST 1006号室の詳細はミニミニ FC心斎橋店までお気軽にお問い合わせください!
情報更新日:
次回更新予定日:
※次回更新予定日について:お店側では順次空室確認を行っていますが、次回更新予定日までに空室確認が行えない場合には、この物件情報は自動的に削除されます。
MELDIA CREST TAPP NAMBA-WEST 1006号室の賃貸物件部屋概要
家賃 |
7.28万円
初期費用を |
|---|---|
共益費 |
7,000円
入居可能時期 |
敷金/礼金 |
- / 119,700円 |
保証金/ |
- / - |
最寄駅 |
|
所在地 |
大阪府大阪市浪速区浪速東 |
部屋番号 |
1006号室 |
間取り |
1R(洋10.1) |
専有面積 |
26.67㎡ |
築年数 |
2023年3月(築3年) |
階数 |
10階部分(地上15階建) |
方位・位置 |
北 / その他 |
物件種別 |
賃貸マンション |
構造 |
RC |
駐車場 |
- |
小学校学区 |
栄小学校 |
中学校学区 |
難波中学校 |
他の空き部屋 |
1003号室 1014号室 1107号室 |
- 学区データについて
- ※学区データは必ずしも正確とは限りません。詳細に関しては最寄店舗または各自治体の教育委員会に必ずご確認ください。
MELDIA CREST TAPP NAMBA-WEST 1006号室の特徴
-
一人暮らしに人気の設備

-
カップルに人気の設備

-
家族に人気の設備

-
夫婦に人気の設備

-
三世代で人気の設備

-
セキュリティ対策重視

-
バリアフリー重視

-
外で子どもと遊びたい

-
雨の日でも洗濯したい

-
洋室で暮らしたい

-
推し活グッズを飾りたい

-
オークション・通販が好き

-
ガーデニングが好き

契約条件
ペットの飼育もご相談ください。 敷金が無料なため、初期費用が比較的安くなる傾向にあります。
セキュリティ
この物件の建物には、オートロックや防犯カメラや宅配ボックスが設置されており、来客時には居室内のテレビモニターにて訪問者の顔を確認することができます。
室内設備
システムキッチンが備え付けられています。 トイレは、温水洗浄便座機能付きになります。 女性に嬉しい設備のシャワーの付いている洗面化粧台があります。 洗濯に便利な設備として、室内洗濯機置場があります。浴室乾燥機も設置されているので、梅雨時の生乾き臭も比較的防ぐことができます。
居室状況
お部屋の床は、フローリングとなっており、エアコンが設置されています。 インターネットも無料で入居後すぐ生活が始められます。 収納スペースとして、基本的な居室にクローゼットがあります。
建物設備共用部分
居室外の専有スペースとして、洗濯物を干すなどの用途として利用できるバルコニーがあります。 建物の共用スペースに、日々の出入に便利なエレベーターや、いざという時の防犯カメラや、急な外出や不在がちのご家庭の荷物受け取りに便利な宅配ボックスが設置されています。 駐輪場、バイク置き場が利用できます。
周辺施設
この物件の学区は、栄小学校区・難波中学校区です。
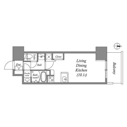
MELDIA CREST TAPP NAMBA-WEST 1006号室の間取り
間取り:1R
間取詳細:1R(洋10.1)
専有面積:26.67㎡
方位:北
部屋位置:その他
MELDIA CREST TAPP NAMBA-WEST 1006号室の設備
キッチン
システムキッチン
カウンターキッチン
バス・トイレ
バス・トイレ別
浴室乾燥機
温水洗浄便座
独立洗面台
シャワー付洗面化粧台
玄関
TVモニタ付インターホン
オートロック
宅配ボックス
収納
クローゼット
バルコニー
バルコニー
ルーフバルコニー
室内設備
エアコン
フローリング
室内洗濯機置場
バリアフリー
位置・立地
2階以上
インフラ
インターネット可
BS
CS
都市ガス
建物設備
エレベーター
防犯カメラ
駐輪場
バイク置き場
入居条件
ペット可・相談
オンライン相談可
オンライン内見可
ライフステージ
一人暮らしに人気の設備
カップルに人気の設備
家族に人気の設備
夫婦に人気の設備
三世代で人気の設備
こだわり
セキュリティ対策重視
バリアフリー重視
外で子どもと遊びたい
雨の日でも洗濯したい
洋室で暮らしたい
趣味
推し活グッズを飾りたい
オークション・通販が好き
ガーデニングが好き
お得な条件
インターネット無料
MELDIA CREST TAPP NAMBA-WEST 1006号室の賃貸契約情報
毎月支払う |
家賃7.28万円/月共益費7,000円/月 |
|---|---|
初期費用 |
敷金-礼金119,700円保証金-敷引き償却金- |
更新料 |
- |
鍵交換費用 |
30,800円 |
室内清掃費用 |
33,000円 |
スマサポコンシェル入会金 |
5,500円 |
駐車場料金 |
- |
損保・ |
借家賠付きの火災保険にご加入いただきます。 |
保証会社 |
加入要 保証会社利用料:初回保証料:月額総賃料の50%、月額保証料:月額総賃料の1%/月、更新時:20,000円/年 |
契約期間 |
1年 |
入居可能日 |
2026年05月下旬 |
フリーレント期間 |
- |
取引形態 |
一般媒介 |
備考 |
違約金1年未満の解約時は総賃料1ヶ月分要 バイク置き場:有料 駐輪場:有料 |
MELDIA CREST TAPP NAMBA-WEST 1006号室の建物情報
建物名称 |
MELDIA CREST TAPP NAMBA-WEST |
|---|---|
最寄駅 |
|
所在地 |
大阪府大阪市浪速区浪速東 |
階層 |
10階部分(地上15階建) |
構造 |
RC |
築年数 |
2023年3月(築3年) |
駐車場 |
- |
小学校学区 |
栄小学校 |
中学校学区 |
難波中学校 |
- 学区データについて
- ※学区データは必ずしも正確とは限りません。詳細に関しては最寄店舗または各自治体の教育委員会に必ずご確認ください。
無料この物件に問い合わせ
- MELDIA CREST TAPP NAMBA-WEST 1006号室

-
7.28万円
(共益費
7,000円)
- 敷
- -
- 礼
- 119,700円
- 保
- -
- 償
- -
MELDIA CREST TAPP NAMBA-WEST 1006号室の物件のお問い合わせ先・取り扱い店舗
ミニミニ FC心斎橋店
- アクセス
-
大阪メトロ 御堂筋線「心斎橋駅」徒歩2分
大阪メトロ 長堀鶴見緑地線「心斎橋駅」徒歩2分
- 住所
- 〒542-0081 大阪府大阪市中央区南船場3-11-6 アルファビル1F
- 営業時間
- 10:00~18:00
- 定休日
- なし
- 営業エリア
- 大阪市中央区,大阪市西区、大阪市北区、大阪市浪速区、大阪市城東区、大阪市港区、大阪市福島区
- 取引態様
- 賃貸仲介業










