堂島ザ・レジデンスマークタワー ***号室(13階/2LDK)の賃貸物件(賃貸マンション)
大阪府大阪市北区にある堂島ザ・レジデンスマークタワー ***号室は独立洗面台、オートロック、宅配ボックス、2階以上、エレベーターなどが特徴です。最寄り駅の大阪メトロ 四つ橋線西梅田駅から徒歩5分です。堂島ザ・レジデンスマークタワー ***号室の詳細はミニミニ FC南森町店までお気軽にお問い合わせください!
情報更新日:
次回更新予定日:
※次回更新予定日について:お店側では順次空室確認を行っていますが、次回更新予定日までに空室確認が行えない場合には、この物件情報は自動的に削除されます。
堂島ザ・レジデンスマークタワー ***号室の賃貸物件部屋概要
家賃 |
30万円
初期費用を |
|---|---|
共益費 |
20,000円
入居可能時期 |
敷金/礼金 |
- / 2ヶ月 |
保証金/ |
- / - |
最寄駅 |
|
所在地 |
大阪府大阪市北区堂島 |
部屋番号 |
***号室 |
間取り |
2LDK(LDK15.2・洋6.5) |
専有面積 |
58.52㎡ |
築年数 |
2013年9月(築13年) |
階数 |
13階部分(地上39階建) |
方位・位置 |
北 / その他 |
物件種別 |
賃貸マンション |
構造 |
RC |
駐車場 |
21,000円 |
小学校学区 |
中之島小学校 |
中学校学区 |
中之島中学校 |
他の空き部屋 |
605号室 |
- 学区データについて
- ※学区データは必ずしも正確とは限りません。詳細に関しては最寄店舗または各自治体の教育委員会に必ずご確認ください。
堂島ザ・レジデンスマークタワー ***号室の特徴
-
一人暮らしに人気の設備

-
カップルに人気の設備

-
家族に人気の設備

-
夫婦に人気の設備

-
三世代で人気の設備

-
セキュリティ対策重視

-
外で子どもと遊びたい

-
身だしなみに気をつかいたい

-
雨の日でも洗濯したい

-
洋室で暮らしたい

-
服やおしゃれが好き

-
靴やスニーカーが好き

-
ガーデニングが好き

契約条件
この物件は、2人入居もご契約できます。 敷金が無料なため、初期費用が比較的安くなる傾向にあります。
セキュリティ
この物件の建物には、オートロックや防犯カメラや宅配ボックスが設置されており、来客時には居室内のテレビモニターにて訪問者の顔を確認することができます。
室内設備
システムキッチンには、ガスコンロが備え付けられています。 お風呂とトイレは別です。お風呂には、追い焚き機能が備わっています。 トイレは、温水洗浄便座機能付きになります。 女性に嬉しい設備の独立した洗面化粧台があります。 洗濯に便利な設備として、室内洗濯機置場があります。浴室乾燥機も設置されているので、梅雨時の生乾き臭も比較的防ぐことができます。
居室状況
お部屋の床は、フローリングとなっています。収納スペースとして、通常よりも収納力の高いウォークインクローゼット、玄関にはシューズインクローゼットがあります。
建物設備共用部分
居室外の専有スペースとして、洗濯物を干すなどの用途として利用できるバルコニーがあります。 建物の共用スペースに、日々の出入に便利なエレベーターや、いざという時の防犯カメラや、急な外出や不在がちのご家庭の荷物受け取りに便利な宅配ボックスが設置されています。 駐輪場、バイク置き場が利用できます。
周辺施設
この物件の学区は、中之島小学校区・中之島中学校区です。
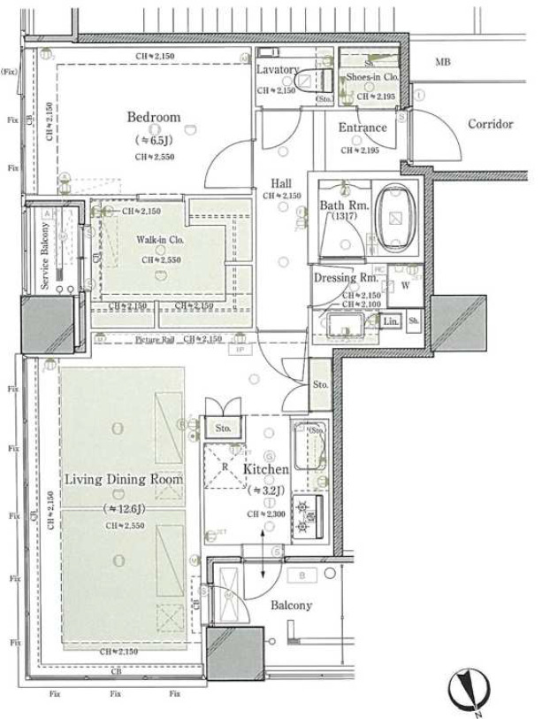
堂島ザ・レジデンスマークタワー ***号室の間取り
間取り:2LDK
間取詳細:2LDK(LDK15.2・洋6.5)
専有面積:58.52㎡
方位:北
部屋位置:その他
堂島ザ・レジデンスマークタワー ***号室の設備
キッチン
システムキッチン
ガスコンロ
バス・トイレ
バス・トイレ別
追い焚き
浴室乾燥機
温水洗浄便座
独立洗面台
玄関
TVモニタ付インターホン
オートロック
宅配ボックス
収納
ウォークインクローゼット
シューズインクローゼット
バルコニー
バルコニー
ルーフバルコニー
室内設備
フローリング
室内洗濯機置場
位置・立地
2階以上
インフラ
インターネット可
CATV
都市ガス
建物設備
エレベーター
防犯カメラ
駐輪場
バイク置き場
分譲賃貸
入居条件
2人入居可
オンライン相談可
オンライン内見可
ライフステージ
一人暮らしに人気の設備
カップルに人気の設備
家族に人気の設備
夫婦に人気の設備
三世代で人気の設備
こだわり
セキュリティ対策重視
外で子どもと遊びたい
身だしなみに気をつかいたい
雨の日でも洗濯したい
洋室で暮らしたい
趣味
服やおしゃれが好き
靴やスニーカーが好き
ガーデニングが好き
堂島ザ・レジデンスマークタワー ***号室の賃貸契約情報
毎月支払う |
家賃30万円/月共益費20,000円/月 |
|---|---|
初期費用 |
敷金-礼金2ヶ月 (60万円)保証金-敷引き償却金- |
更新料 |
300,000円 |
鍵交換費用 |
44,000円 |
室内清掃費用 |
66,000円 |
エアコン清掃代1台ごと |
11,000円 |
駐車場料金 |
21,000円 |
損保・ |
借家賠付きの火災保険にご加入いただきます。 |
保証会社 |
加入要 保証会社利用料:保証会社日本セーフティ 審査内容による |
契約期間 |
2年 |
入居可能日 |
2026年04月下旬 |
フリーレント期間 |
- |
取引形態 |
一般媒介 |
備考 |
- |
堂島ザ・レジデンスマークタワー ***号室の建物情報
建物名称 |
堂島ザ・レジデンスマークタワー |
|---|---|
最寄駅 |
|
所在地 |
大阪府大阪市北区堂島 |
階層 |
13階部分(地上39階建) |
構造 |
RC |
築年数 |
2013年9月(築13年) |
駐車場 |
21,000円 |
小学校学区 |
中之島小学校 |
中学校学区 |
中之島中学校 |
- 学区データについて
- ※学区データは必ずしも正確とは限りません。詳細に関しては最寄店舗または各自治体の教育委員会に必ずご確認ください。
無料この物件に問い合わせ
- 堂島ザ・レジデンスマークタワー ***号室

-
30万円
(共益費
20,000円)
- 敷
- -
- 礼
- 2ヶ月
- 保
- -
- 償
- -
堂島ザ・レジデンスマークタワー ***号室の物件のお問い合わせ先・取り扱い店舗
ミニミニ FC南森町店
- アクセス
-
大阪メトロ 谷町線「南森町駅」徒歩1分
大阪メトロ 堺筋線「南森町駅」徒歩1分
JR東西線「大阪天満宮駅」徒歩2分
- 住所
- 〒530-0041 大阪府大阪市北区天神橋2-3-19 AXIS南森町ⅢBLD. 1F
- 営業時間
- 10:00~18:00
- 定休日
- なし
- 営業エリア
- 大阪市北区,大阪市都島区,大阪市中央区,大阪市旭区,大阪市淀川区,大阪市福島区,大阪市西区,大阪市東淀川区
- 取引態様
- 賃貸仲介業









