タイニーヴィレッジ津田沼 105号室(1階/1K)の賃貸物件(賃貸アパート)
千葉県習志野市にあるタイニーヴィレッジ津田沼 105号室はシステムキッチン、追い焚き、ウォークインクローゼット、バルコニー、保証人不要などが特徴です。最寄り駅の総武本線津田沼駅から徒歩5分です。タイニーヴィレッジ津田沼 105号室の詳細はハウスコム 津田沼店までお気軽にお問い合わせください!
情報更新日:
次回更新予定日:
※次回更新予定日について:お店側では順次空室確認を行っていますが、次回更新予定日までに空室確認が行えない場合には、この物件情報は自動的に削除されます。
タイニーヴィレッジ津田沼 105号室の賃貸物件部屋概要
家賃 |
8.2万円
初期費用を |
|---|---|
共益費 |
4,000円
入居可能時期 |
敷金/礼金 |
- / 123,000円 |
保証金/ |
- / - |
最寄駅 |
|
所在地 |
千葉県習志野市谷津 |
部屋番号 |
105号室 |
間取り |
1K(洋8.3・K2.8) |
専有面積 |
28.26㎡ |
築年数 |
2014年9月(築12年) |
階数 |
1階部分(地上3階建) |
方位・位置 |
西 / その他 |
物件種別 |
賃貸アパート |
構造 |
軽量鉄骨 |
駐車場 |
無 |
小学校学区 |
谷津小学校 |
中学校学区 |
第一中学校 |
他の空き部屋 |
307号室 |
- 学区データについて
- ※学区データは必ずしも正確とは限りません。詳細に関しては最寄店舗または各自治体の教育委員会に必ずご確認ください。
タイニーヴィレッジ津田沼 105号室の特徴
契約条件
ご契約時に保証人は不要です。 敷金が無料なため、初期費用が比較的安くなる傾向にあります。
セキュリティ
この物件の建物には、オートロックが設置されており、来客時には居室内のテレビモニターにて訪問者の顔を確認することができます。
室内設備
システムキッチンが備え付けられています。 お風呂とトイレは別です。お風呂には、追い焚き機能が備わっています。 トイレは、温水洗浄便座機能付きになります。 女性に嬉しい設備の独立した洗面化粧台があります。 洗濯に便利な設備として、室内洗濯機置場があります。
居室状況
エアコンが設置されています。 収納スペースとして、通常よりも収納力の高いウォークインクローゼット、玄関にはシューズボックスがあります。
建物設備共用部分
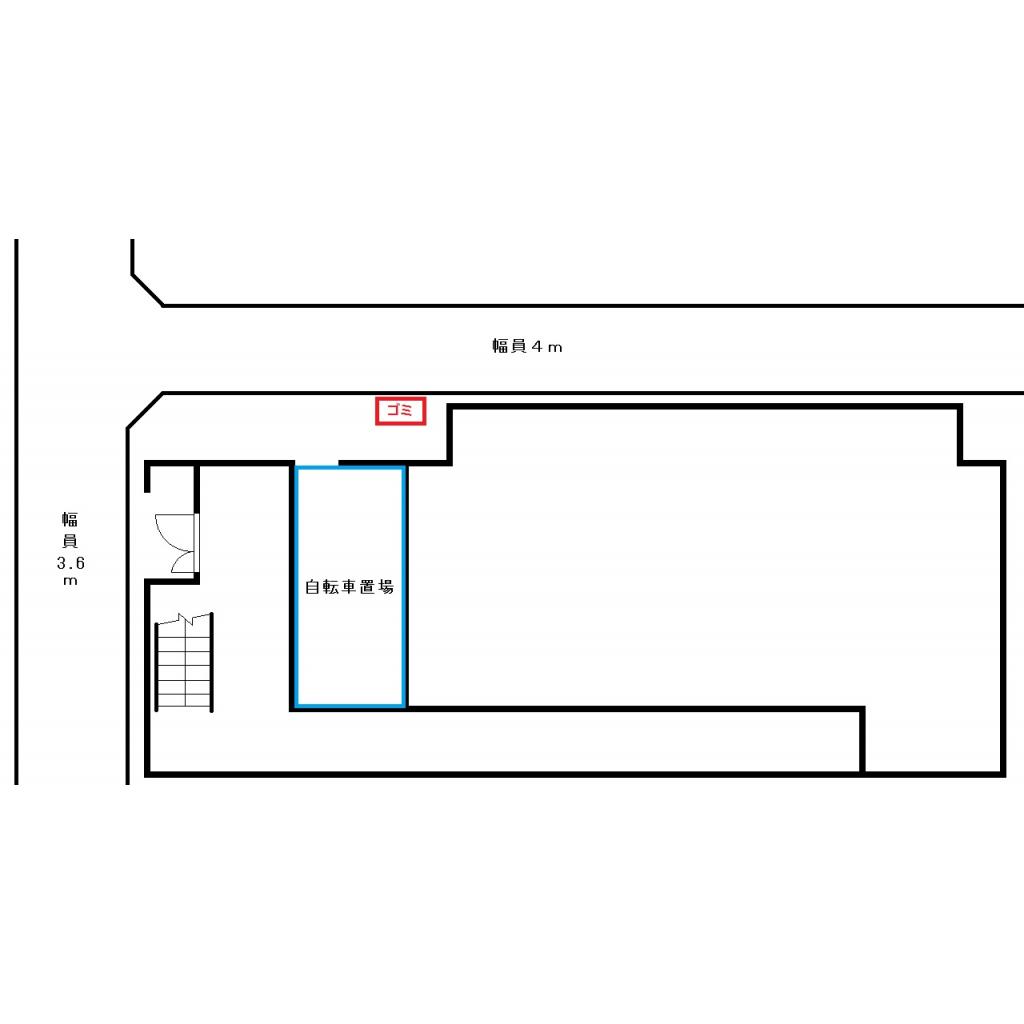
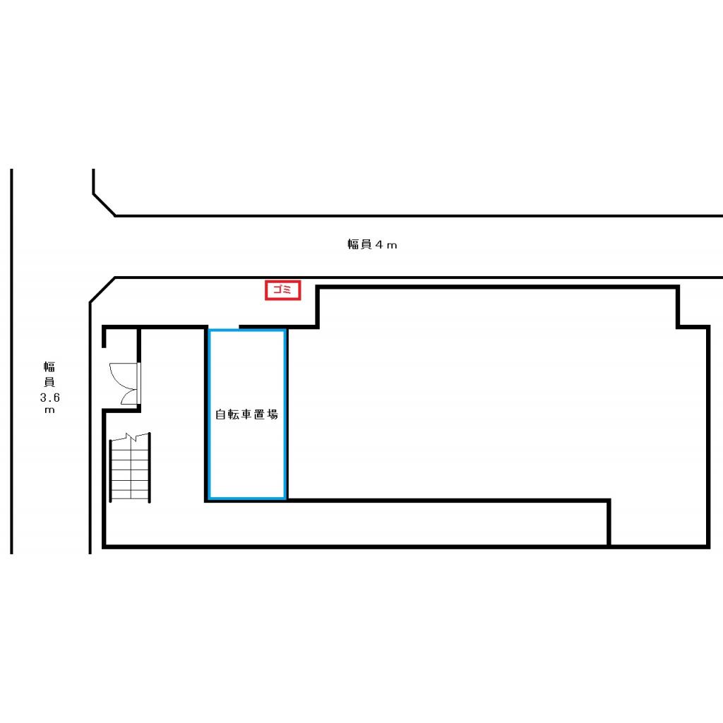
居室外の専有スペースとして、洗濯物を干すなどの用途として利用できるバルコニーがあります。 駐輪場が利用できます。
周辺施設
この物件の学区は、谷津小学校区・第一中学校区です。
タイニーヴィレッジ津田沼 105号室の間取り
間取り:1K
間取詳細:1K(洋8.3・K2.8)
専有面積:28.26㎡
方位:西
部屋位置:その他
タイニーヴィレッジ津田沼 105号室の設備
キッチン
システムキッチン
バス・トイレ
バス・トイレ別
追い焚き
温水洗浄便座
独立洗面台
玄関
TVモニタ付インターホン
オートロック
収納
ウォークインクローゼット
シューズボックス
バルコニー
バルコニー
ルーフバルコニー
室内設備
エアコン
室内洗濯機置場
位置・立地
1階
インフラ
CATV
都市ガス
建物設備
駐輪場
入居条件
保証人不要
ライフステージ
一人暮らしに人気の設備
カップルに人気の設備
家族に人気の設備
夫婦に人気の設備
三世代で人気の設備
こだわり
外で子どもと遊びたい
雨の日でも洗濯したい
趣味
服やおしゃれが好き
ガーデニングが好き
タイニーヴィレッジ津田沼 105号室の賃貸契約情報
毎月支払う |
家賃8.2万円/月共益費4,000円/月 |
|---|---|
初期費用 |
敷金-礼金123,000円保証金-敷引き償却金- |
更新料 |
- |
鍵交換費用 |
- |
室内清掃費用 |
- |
鍵交換代(契約時) |
33,000円 |
害虫防除費(契約時) |
19,800円 |
クリーニング(契約時) |
57,200円 |
駐車場料金 |
無 |
損保・ |
借家賠付きの火災保険にご加入いただきます。 |
保証会社 |
加入要 保証会社利用料:初回保証加入料:月支払総額の50%(家賃・共益費・駐車場等の付帯料含む)/月額事務手数料:月々のご請求金額の2%(消費税込、契約更新月は更新料含む) |
契約期間 |
2年 |
入居可能日 |
相談 |
フリーレント期間 |
- |
取引形態 |
一般媒介 |
備考 |
- |
タイニーヴィレッジ津田沼 105号室の建物情報
建物名称 |
タイニーヴィレッジ津田沼 |
|---|---|
最寄駅 |
|
所在地 |
千葉県習志野市谷津 |
階層 |
1階部分(地上3階建) |
構造 |
軽量鉄骨 |
築年数 |
2014年9月(築12年) |
駐車場 |
無 |
小学校学区 |
谷津小学校 |
中学校学区 |
第一中学校 |
- 学区データについて
- ※学区データは必ずしも正確とは限りません。詳細に関しては最寄店舗または各自治体の教育委員会に必ずご確認ください。
無料この物件に問い合わせ
- タイニーヴィレッジ津田沼 105号室

-
8.2万円
(共益費
4,000円)
- 敷
- -
- 礼
- 123,000円
- 保
- -
- 償
- -
タイニーヴィレッジ津田沼 105号室の物件のお問い合わせ先・取り扱い店舗
ハウスコム 津田沼店
- アクセス
-
総武線・中央線各駅停車「津田沼駅」北口徒歩1分
京成松戸線「新津田沼駅」徒歩1分
- 住所
- 〒275-0016 千葉県習志野市津田沼1丁目2−1 トミビル 1階 ・2階
- 営業時間
- 10:00~18:00
- 定休日
- なし
- 営業エリア
- 習志野市、船橋市、千葉市花見川区、稲毛区、美浜区、鎌ヶ谷市、八千代市、白井市、印西市
- 取引態様
- 賃貸仲介業





















