STAGE21 A号室(2階/3LDK)の賃貸物件(賃貸マンション)
神奈川県横浜市瀬谷区にあるSTAGE21 A号室はガスコンロ、温水洗浄便座、照明器具付、インターネット可、バイク置き場などが特徴です。最寄り駅の相鉄本線瀬谷駅からバスで8分、上瀬谷小学校入口から徒歩4分です。STAGE21 A号室の詳細はハウスコム 中央林間店までお気軽にお問い合わせください!
情報更新日:
次回更新予定日:
※次回更新予定日について:お店側では順次空室確認を行っていますが、次回更新予定日までに空室確認が行えない場合には、この物件情報は自動的に削除されます。
STAGE21 A号室の賃貸物件部屋概要
家賃 |
8.6万円
初期費用を |
|---|---|
共益費 |
4,000円
入居可能時期 |
敷金/礼金 |
2ヶ月 / - |
保証金/ |
- / - |
最寄駅 |
|
所在地 |
神奈川県横浜市瀬谷区上瀬谷町 |
部屋番号 |
A号室 |
間取り |
3LDK |
専有面積 |
65.02㎡ |
築年数 |
1996年3月(築30年) |
階数 |
2階部分(地上3階建) |
方位・位置 |
南 / その他 |
物件種別 |
賃貸マンション |
構造 |
RC |
駐車場 |
8,800円 |
小学校学区 |
上瀬谷小学校 |
中学校学区 |
瀬谷中学校 |
他の空き部屋 |
ー |
- 学区データについて
- ※学区データは必ずしも正確とは限りません。詳細に関しては最寄店舗または各自治体の教育委員会に必ずご確認ください。
STAGE21 A号室の特徴
契約条件
礼金が無料なため、初期費用が比較的安くなる傾向にあります。
セキュリティ
この物件の建物には、防犯カメラが設置されており、来客時には居室内のテレビモニターにて訪問者の顔を確認することができます。
室内設備
2つ以上のガスコンロが備え付けられています。 お風呂とトイレは別です。お風呂には、追い焚き機能が備わっています。 トイレは、温水洗浄便座機能付きになります。 洗濯に便利な設備として、室内洗濯機置場があります。
居室状況
照明器具が備え付けられており、入居後すぐ生活が始められます。 収納スペースとして、玄関にはシューズボックスがあります。
建物設備共用部分
居室外の専有スペースとして、洗濯物を干すなどの用途として利用できるバルコニーがあります。 建物の共用スペースに、いざという時の防犯カメラが設置されています。 駐輪場、バイク置き場が利用できます。
周辺施設
この物件の学区は、上瀬谷小学校区・瀬谷中学校区です。
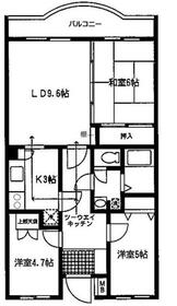
STAGE21 A号室の間取り
間取り:3LDK
間取詳細:3LDK
専有面積:65.02㎡
方位:南
部屋位置:その他
STAGE21 A号室の設備
キッチン
ガスコンロ
ガスコンロ二口以上
バス・トイレ
バス・トイレ別
追い焚き
温水洗浄便座
玄関
TVモニタ付インターホン
収納
シューズボックス
バルコニー
バルコニー
ルーフバルコニー
室内設備
室内洗濯機置場
照明器具付
位置・立地
2階以上
南向き
インフラ
インターネット可
プロパンガス
建物設備
防犯カメラ
駐輪場
バイク置き場
入居条件
即入居可
ライフステージ
一人暮らしに人気の設備
カップルに人気の設備
家族に人気の設備
夫婦に人気の設備
三世代で人気の設備
こだわり
外で子どもと遊びたい
雨の日でも洗濯したい
趣味
ガーデニングが好き
STAGE21 A号室の賃貸契約情報
毎月支払う |
家賃8.6万円/月共益費4,000円/月 |
|---|---|
初期費用 |
敷金2ヶ月 (17.2万円)礼金-保証金-敷引き償却金- |
更新料 |
- |
鍵交換費用 |
- |
室内清掃費用 |
- |
鍵交換費用(U9) |
13,750円 |
鍵交換費用(ディンプル) |
15,950円 |
駐車場料金 |
8,800円 |
損保・ |
借家賠付きの火災保険にご加入いただきます。 |
保証会社 |
加入要 保証会社利用料:1.総賃料の30%/初回、以降2年毎30% 2.総賃料の67.5%/初回、以降1年毎2,000円※2は別途新規契約時のみ審査事務手数料負担有(個人契約1,100円、法人契約2,200円※どちらも税込 |
契約期間 |
2年 |
入居可能日 |
即入居可 |
フリーレント期間 |
- |
取引形態 |
一般媒介 |
備考 |
- |
STAGE21 A号室の建物情報
建物名称 |
STAGE21 |
|---|---|
最寄駅 |
|
所在地 |
神奈川県横浜市瀬谷区上瀬谷町 |
階層 |
2階部分(地上3階建) |
構造 |
RC |
築年数 |
1996年3月(築30年) |
駐車場 |
8,800円 |
小学校学区 |
上瀬谷小学校 |
中学校学区 |
瀬谷中学校 |
- 学区データについて
- ※学区データは必ずしも正確とは限りません。詳細に関しては最寄店舗または各自治体の教育委員会に必ずご確認ください。
無料この物件に問い合わせ
- STAGE21 A号室

-
8.6万円
(共益費
4,000円)
- 敷
- 2ヶ月
- 礼
- -
- 保
- -
- 償
- -
STAGE21 A号室の物件のお問い合わせ先・取り扱い店舗
ハウスコム 中央林間店
- アクセス
-
小田急江ノ島線「中央林間駅」北口徒歩1分
- 住所
- 〒242-0007 神奈川県大和市中央林間3-4-13 リオデラパス2階
- 営業時間
- 10:00~18:00
- 定休日
- 水曜日
- 営業エリア
- 大和市、相模原市南区、町田市、座間市、綾瀬市、横浜市瀬谷区・緑区
- 取引態様
- 賃貸仲介業























