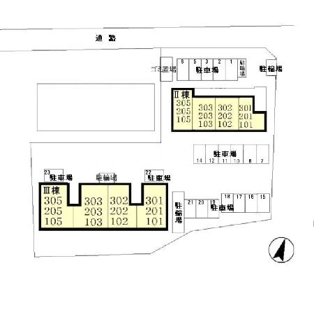
グラン・ヴェルジェⅢ 302号室(3階/1LDK)の賃貸物件(賃貸アパート)
千葉県流山市にあるグラン・ヴェルジェⅢ 302号室はガスコンロ、ウォークインクローゼット、ルーフバルコニー、2階以上、南向きなどが特徴です。最寄り駅の東武アーバンパークライン・野田線初石駅から徒歩6分です。グラン・ヴェルジェⅢ 302号室の詳細はハウスコム 柏店までお気軽にお問い合わせください!
情報更新日:
次回更新予定日:
※次回更新予定日について:お店側では順次空室確認を行っていますが、次回更新予定日までに空室確認が行えない場合には、この物件情報は自動的に削除されます。
グラン・ヴェルジェⅢ 302号室の賃貸物件部屋概要
家賃 |
8.8万円
初期費用を |
|---|---|
共益費 |
6,000円
入居可能時期 |
敷金/礼金 |
- / 1ヶ月 |
保証金/ |
- / - |
最寄駅 |
|
所在地 |
千葉県流山市東初石 |
部屋番号 |
302号室 |
間取り |
1LDK(洋6・LDK12) |
専有面積 |
47.60㎡ |
築年数 |
2008年9月(築18年) |
階数 |
3階部分(地上3階建) |
方位・位置 |
南 / その他 |
物件種別 |
賃貸アパート |
構造 |
軽量鉄骨 |
駐車場 |
6,600円 |
小学校学区 |
八木北小学校 |
中学校学区 |
常盤松中学校 |
他の空き部屋 |
ー |
- 学区データについて
- ※学区データは必ずしも正確とは限りません。詳細に関しては最寄店舗または各自治体の教育委員会に必ずご確認ください。
グラン・ヴェルジェⅢ 302号室の特徴
-
一人暮らしに人気の設備

-
カップルに人気の設備

-
家族に人気の設備

-
夫婦に人気の設備

-
三世代で人気の設備

-
外で子どもと遊びたい

-
雨の日でも洗濯したい

-
洋室で暮らしたい

-
服やおしゃれが好き

-
ガーデニングが好き

契約条件
この物件は、2人入居もご契約できます。 また、ご契約時に保証人は不要です。 敷金が無料なため、初期費用が比較的安くなる傾向にあります。 お支払いは、家賃がクレジットカードにて決済できます。
セキュリティ
この物件の建物には、オートロックが設置されており、来客時には居室内のテレビモニターにて訪問者の顔を確認することができます。
室内設備
ガスコンロが備え付けられています。 お風呂とトイレは別です。お風呂には、追い焚き機能が備わっています。 トイレは、温水洗浄便座機能付きになります。 女性に嬉しい設備のシャワーの付いている洗面化粧台があります。 洗濯に便利な設備として、室内洗濯機置場があります。浴室乾燥機も設置されているので、梅雨時の生乾き臭も比較的防ぐことができます。
居室状況
お部屋の床は、フローリングとなっており、エアコンが設置されています。 インターネットも無料で入居後すぐ生活が始められます。 収納スペースとして、基本的な居室にクローゼットを設置、通常よりも収納力の高いウォークインクローゼット、玄関にはシューズボックスがあります。
建物設備共用部分
居室外の専有スペースとして、洗濯物を干すなどの用途として利用できるバルコニーがあります。 駐輪場が利用できます。
周辺施設
この物件の学区は、八木北小学校区・常盤松中学校区です。近くには、徒歩9分(675m)でマルエツ初石店があります。
グラン・ヴェルジェⅢ 302号室の間取り
間取り:1LDK
間取詳細:1LDK(洋6・LDK12)
専有面積:47.60㎡
方位:南
部屋位置:その他
グラン・ヴェルジェⅢ 302号室の設備
キッチン
ガスコンロ
バス・トイレ
バス・トイレ別
追い焚き
浴室乾燥機
温水洗浄便座
独立洗面台
シャワー付洗面化粧台
玄関
TVモニタ付インターホン
オートロック
収納
クローゼット
ウォークインクローゼット
シューズボックス
バルコニー
バルコニー
ルーフバルコニー
室内設備
エアコン
フローリング
室内洗濯機置場
位置・立地
2階以上
最上階
南向き
インフラ
インターネット可
CATV
プロパンガス
建物設備
駐輪場
入居条件
2人入居可
LGBTフレンドリー
オンライン相談可
オンライン内見可
保証人不要
ライフステージ
一人暮らしに人気の設備
カップルに人気の設備
家族に人気の設備
夫婦に人気の設備
三世代で人気の設備
こだわり
外で子どもと遊びたい
雨の日でも洗濯したい
洋室で暮らしたい
趣味
服やおしゃれが好き
ガーデニングが好き
お得な条件
インターネット無料
家賃カード決済可
グラン・ヴェルジェⅢ 302号室の賃貸契約情報
毎月支払う |
家賃8.8万円/月共益費6,000円/月 |
|---|---|
初期費用 |
敷金-礼金1ヶ月 (8.8万円)保証金-敷引き償却金- |
更新料 |
88,000円 |
鍵交換費用 |
- |
室内清掃費用 |
- |
駐車場料金 |
6,600円 |
損保・ |
借家賠付きの火災保険にご加入いただきます。 |
保証会社 |
加入要 保証会社利用料:・初回保証料35000円、月額保証料1%+800円(口座振替)or・初回保証料なし、月額保証料3.4%+800円(クレカ決済、口座振替) |
契約期間 |
2年 |
入居可能日 |
2026年04月 |
フリーレント期間 |
- |
取引形態 |
一般媒介 |
備考 |
更新料1ヶ月、ルームクリーニング料金60500円、町会費333円 |
グラン・ヴェルジェⅢ 302号室の建物情報
建物名称 |
グラン・ヴェルジェⅢ |
|---|---|
最寄駅 |
|
所在地 |
千葉県流山市東初石 |
階層 |
3階部分(地上3階建) |
構造 |
軽量鉄骨 |
築年数 |
2008年9月(築18年) |
駐車場 |
6,600円 |
小学校学区 |
八木北小学校 |
中学校学区 |
常盤松中学校 |
- 学区データについて
- ※学区データは必ずしも正確とは限りません。詳細に関しては最寄店舗または各自治体の教育委員会に必ずご確認ください。
無料この物件に問い合わせ
- グラン・ヴェルジェⅢ 302号室

-
8.8万円
(共益費
6,000円)
- 敷
- -
- 礼
- 1ヶ月
- 保
- -
- 償
- -
グラン・ヴェルジェⅢ 302号室の物件のお問い合わせ先・取り扱い店舗
ハウスコム 柏店
- アクセス
-
常磐線「柏駅」西口徒歩2分
東武アーバンパークライン・野田線「柏駅」西口徒歩2分
- 住所
- 〒277-0842 千葉県柏市末広町4-5 金子ビル1階
- 営業時間
- 10:00~18:00
- 定休日
- なし
- 営業エリア
- 柏市・流山市・野田市・我孫子市・松戸市・鎌ヶ谷市、白井市、印西市
- 取引態様
- 賃貸仲介業
















