プレール中延 502号室(5階/1K)の賃貸物件(賃貸マンション)
東京都品川区にあるプレール中延 502号室は浴室乾燥機、オートロック、ルーフバルコニー、南向き、CATVなどが特徴です。最寄り駅の都営浅草線中延駅から徒歩6分です。プレール中延 502号室の詳細はハウスコム 大岡山店までお気軽にお問い合わせください!
情報更新日:
次回更新予定日:
※次回更新予定日について:お店側では順次空室確認を行っていますが、次回更新予定日までに空室確認が行えない場合には、この物件情報は自動的に削除されます。
プレール中延 502号室の賃貸物件部屋概要
家賃 |
8.2万円
初期費用を |
|---|---|
共益費 |
8,000円
入居可能時期 |
敷金/礼金 |
- / 82,000円 |
保証金/ |
- / - |
最寄駅 |
|
所在地 |
東京都品川区二葉 |
部屋番号 |
502号室 |
間取り |
1K(洋0・K0) |
専有面積 |
21.70㎡ |
築年数 |
2001年11月(築25年) |
階数 |
5階部分(地上5階建) |
方位・位置 |
南 / その他 |
物件種別 |
賃貸マンション |
構造 |
RC |
駐車場 |
27,500円 |
小学校学区 |
上神明小学校 |
中学校学区 |
冨士見台中学校 |
他の空き部屋 |
ー |
- 学区データについて
- ※学区データは必ずしも正確とは限りません。詳細に関しては最寄店舗または各自治体の教育委員会に必ずご確認ください。
プレール中延 502号室の特徴
契約条件
敷金が無料なため、初期費用が比較的安くなる傾向にあります。
セキュリティ
この物件の建物には、オートロックが設置されており、来客時には居室内のテレビモニターにて訪問者の顔を確認することができます。
室内設備
トイレは、温水洗浄便座機能付きになります。 洗濯に便利な設備として、室内洗濯機置場があります。浴室乾燥機も設置されているので、梅雨時の生乾き臭も比較的防ぐことができます。
居室状況
お部屋の床は、フローリングとなっており、エアコンが設置されています。
建物設備共用部分
居室外の専有スペースとして、洗濯物を干すなどの用途として利用できるバルコニーがあります。
周辺施設
この物件の学区は、上神明小学校区・冨士見台中学校区です。
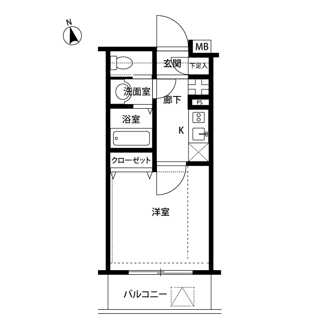
プレール中延 502号室の間取り
間取り:1K
間取詳細:1K(洋0・K0)
専有面積:21.70㎡
方位:南
部屋位置:その他
プレール中延 502号室の設備
バス・トイレ
バス・トイレ別
浴室乾燥機
温水洗浄便座
玄関
TVモニタ付インターホン
オートロック
バルコニー
バルコニー
ルーフバルコニー
室内設備
エアコン
フローリング
室内洗濯機置場
位置・立地
2階以上
最上階
南向き
インフラ
CATV
BS
ライフステージ
一人暮らしに人気の設備
カップルに人気の設備
家族に人気の設備
夫婦に人気の設備
三世代で人気の設備
こだわり
外で子どもと遊びたい
雨の日でも洗濯したい
洋室で暮らしたい
趣味
ガーデニングが好き
プレール中延 502号室の賃貸契約情報
毎月支払う |
家賃8.2万円/月共益費8,000円/月 |
|---|---|
初期費用 |
敷金-礼金82,000円保証金-敷引き償却金- |
更新料 |
- |
鍵交換費用 |
- |
室内清掃費用 |
- |
駐車場料金 |
27,500円 |
損保・ |
借家賠付きの火災保険にご加入いただきます。 |
保証会社 |
加入要 保証会社利用料:初回保証料月額総費用の80%、利用手数料550円、継続保証料20,000円(2 |
契約期間 |
- |
入居可能日 |
即入居可 |
フリーレント期間 |
- |
取引形態 |
一般媒介 |
備考 |
- |
プレール中延 502号室の建物情報
建物名称 |
プレール中延 |
|---|---|
最寄駅 |
|
所在地 |
東京都品川区二葉 |
階層 |
5階部分(地上5階建) |
構造 |
RC |
築年数 |
2001年11月(築25年) |
駐車場 |
27,500円 |
小学校学区 |
上神明小学校 |
中学校学区 |
冨士見台中学校 |
- 学区データについて
- ※学区データは必ずしも正確とは限りません。詳細に関しては最寄店舗または各自治体の教育委員会に必ずご確認ください。
無料この物件に問い合わせ
- プレール中延 502号室

-
8.2万円
(共益費
8,000円)
- 敷
- -
- 礼
- 82,000円
- 保
- -
- 償
- -
プレール中延 502号室の物件のお問い合わせ先・取り扱い店舗
ハウスコム 大岡山店
- アクセス
-
東急目黒線「大岡山駅」徒歩1分
- 住所
- 〒145-0062 東京都大田区北千束1丁目51−6 サンルミナスA 1階
- 営業時間
- 10:00~18:00
- 定休日
- なし
- 営業エリア
- 大田区,目黒区,品川区,世田谷区
- 取引態様
- 賃貸仲介業


























